Your email has been sent.
265 James St N 1,200 SF of Retail Space Available in Hamilton, ON L8R 2L2



Highlights
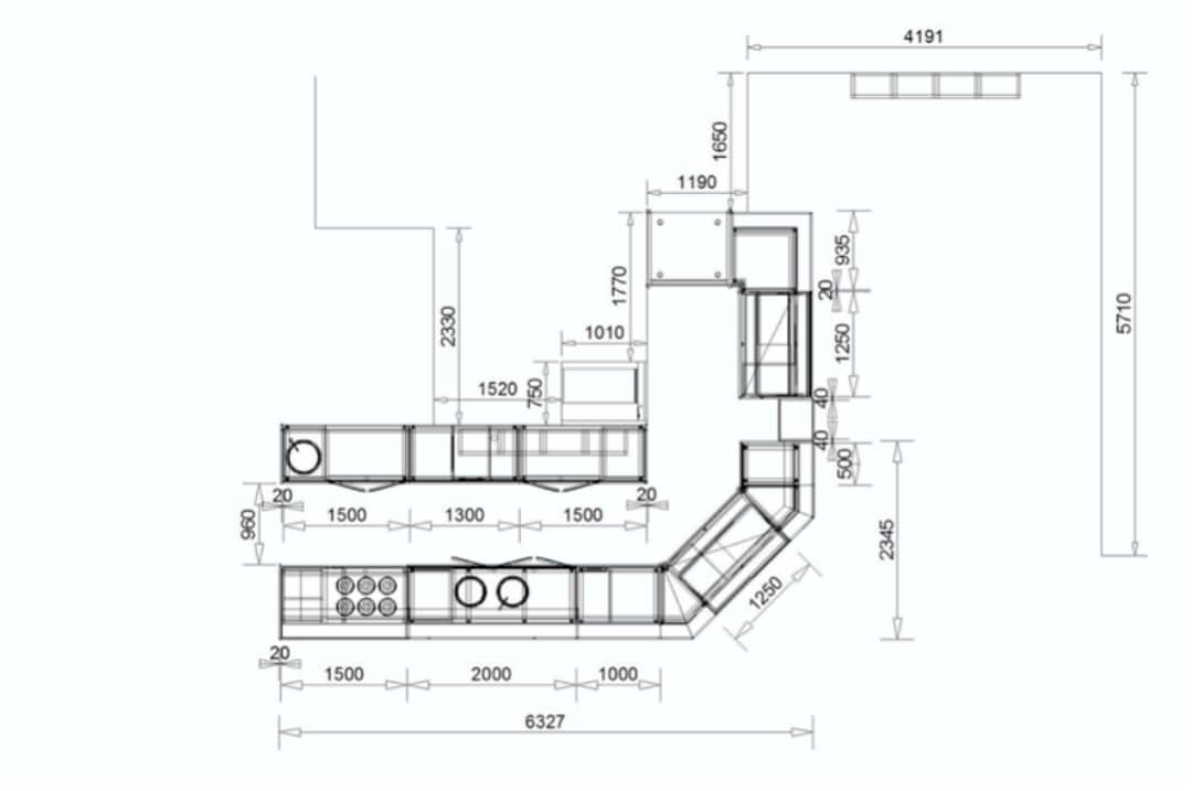
- The retail space was formerly designed for a cafe.
- Subject site is located in the heart of Central Hamilton and has a high traffic & vehicle count.
- has endless opportunities for the right retailer.
Space Availability (1)
Display Rental Rate as
- Space
- Size
- Term
- Rental Rate
- Rent Type
| Space | Size | Term | Rental Rate | Rent Type | ||
| 1st Floor | 1,200 SF | Negotiable | Upon Request Upon Request Upon Request Upon Request | Triple Net (NNN) |
1st Floor
265 James Street North is three storey corner building that has a vacant ground floor and basement and is available For Lease. The retail space was formerly designed for a cafe and has endless opportunities for the right retailer. Recently Renovated Corner Retail Space; Approx. 1,200 sq. ft on Ground Floor + Basement; Ground Floor: Renovations Mostly Complete; Two Bathrooms Included; Full Basement with New Epoxy Flooring; Basement Rough-in for Prep Kitchen and Staff Restroom; Ideal for cafe, restaurant, QSR, general retail and professional services.
- Lease rate does not include utilities, property expenses or building services
- Partially Built-Out as a Restaurant or Café Space
- Basement
- Close proximity to Liuna Station, West Harbour GO
- Recently Renovated
- Formerly designed for a cafe
- Equipment for Cafe Available for Purchase
Rent Types
The rent amount and type that the tenant (lessee) will be responsible to pay to the landlord (lessor) throughout the lease term is negotiated prior to both parties signing a lease agreement. The rent type will vary depending upon the services provided. For example, triple net rents are typically lower than full service rents due to additional expenses the tenant is required to pay in addition to the base rent. Contact the listing broker for a full understanding of any associated costs or additional expenses for each rent type.
1. Full Service: A rental rate that includes normal building standard services as provided by the landlord within a base year rental.
2. Double Net (NN): Tenant pays for only two of the building expenses; the landlord and tenant determine the specific expenses prior to signing the lease agreement.
3. Triple Net (NNN): A lease in which the tenant is responsible for all expenses associated with their proportional share of occupancy of the building.
4. Modified Gross: Modified Gross is a general type of lease rate where typically the tenant will be responsible for their proportional share of one or more of the expenses. The landlord will pay the remaining expenses. See the below list of common Modified Gross rental rate structures: 4. Plus All Utilities: A type of Modified Gross Lease where the tenant is responsible for their proportional share of utilities in addition to the rent. 4. Plus Cleaning: A type of Modified Gross Lease where the tenant is responsible for their proportional share of cleaning in addition to the rent. 4. Plus Electric: A type of Modified Gross Lease where the tenant is responsible for their proportional share of the electrical cost in addition to the rent. 4. Plus Electric & Cleaning: A type of Modified Gross Lease where the tenant is responsible for their proportional share of the electrical and cleaning cost in addition to the rent. 4. Plus Utilities and Char: A type of Modified Gross Lease where the tenant is responsible for their proportional share of the utilities and cleaning cost in addition to the rent. 4. Industrial Gross: A type of Modified Gross lease where the tenant pays one or more of the expenses in addition to the rent. The landlord and tenant determine these prior to signing the lease agreement.
5. Tenant Electric: The landlord pays for all services and the tenant is responsible for their usage of lights and electrical outlets in the space they occupy.
6. Negotiable or Upon Request: Used when the leasing contact does not provide the rent or service type.
7. TBD: To be determined; used for buildings for which no rent or service type is known, commonly utilized when the buildings are not yet built.
Property Facts
| Total Space Available | 1,200 SF | Gross Leasable Area | 20,163 SF |
| Property Type | Retail | Year Built | 1900 |
| Property Subtype | Storefront Retail/Residential |
| Total Space Available | 1,200 SF |
| Property Type | Retail |
| Property Subtype | Storefront Retail/Residential |
| Gross Leasable Area | 20,163 SF |
| Year Built | 1900 |
About the Property
265 James Street North is three storey corner building that has a vacant ground floor and basement and is available For Lease. Subject site is located in the heart of Central Hamilton and has a high traffic & vehicle count. The retail space was formerly designed for a cafe and has endless opportunities for the right retailer.
Nearby Major Retailers
Presented by
265 James St N
Hmm, there seems to have been an error sending your message. Please try again.
Thanks! Your message was sent.


