Your email has been sent.
Two Art Studios in Warehouse Art District 2655 6th Ave S 794 - 1,944 SF of Industrial Space Available in Saint Petersburg, FL 33712


Highlights
- In the Heart of St Pete's Warehouse Art District
Features
All Available Spaces(2)
Display Rental Rate as
- Space
- Size
- Term
- Rental Rate
- Space Use
- Build-Out
- Available
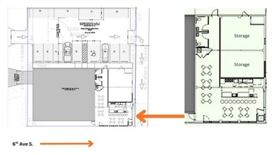
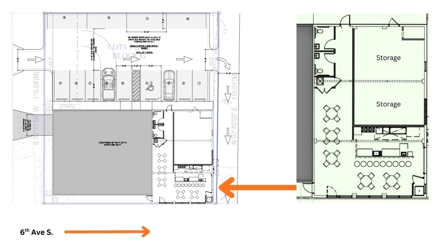
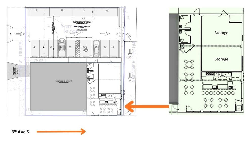
ART STUDIO SPACES FOR LEASE Create • Teach • Collaborate Two flexible, light-filled art studio spaces are now available for lease, ideal for artists, makers, instructors, creative collectives, and shared workspace users. Studio 1: 1,150 SF for $1,950/month + utilities Studio 2: 794 SF for $1,350/month + utilities Combined: 1,944 SF for $3,300/month + utilities These open studio spaces offer the flexibility to create, teach, display, collaborate, and build community without the corporate feel. Studio 1 features a roll-up garage door for easy access, making it ideal for loading materials, equipment, or larger works. Available on month-to-month terms, with a maximum lease term of six months, this is a great short-term option for working artists, pop-up concepts, group studios, workshops, or creative teams looking for adaptable space.
- Listed lease rate plus proportional share of utilities
- Drop Ceilings
- Central Air Conditioning
- In the Heart of St Pete's Warehouse Art District
ART STUDIO SPACES FOR LEASE Create • Teach • Collaborate Two flexible, light-filled art studio spaces are now available for lease, ideal for artists, makers, instructors, creative collectives, and shared workspace users. Studio 1: 1,150 SF for $1,950/month + utilities Studio 2: 794 SF for $1,350/month + utilities Combined: 1,944 SF for $3,300/month + utilities These open studio spaces offer the flexibility to create, teach, display, collaborate, and build community without the corporate feel. Studio 1 features a roll-up garage door for easy access, making it ideal for loading materials, equipment, or larger works. Available on month-to-month terms, with a maximum lease term of six months, this is a great short-term option for working artists, pop-up concepts, group studios, workshops, or creative teams looking for adaptable space.
- Listed lease rate plus proportional share of utilities
- Private Restrooms
- In the Heart of St. Pete's Warehouse Arts District
- Central Air and Heating
- Drop Ceilings
| Space | Size | Term | Rental Rate | Space Use | Build-Out | Available |
| 1st Floor | 794 SF | Negotiable | $27.91 CAD/SF/YR $2.33 CAD/SF/MO $22,158 CAD/YR $1,847 CAD/MO | Industrial | Shell Space | Now |
| 1st Floor | 1,150 SF | Negotiable | $27.84 CAD/SF/YR $2.32 CAD/SF/MO $32,015 CAD/YR $2,668 CAD/MO | Industrial | Shell Space | Now |
1st Floor
| Size |
| 794 SF |
| Term |
| Negotiable |
| Rental Rate |
| $27.91 CAD/SF/YR $2.33 CAD/SF/MO $22,158 CAD/YR $1,847 CAD/MO |
| Space Use |
| Industrial |
| Build-Out |
| Shell Space |
| Available |
| Now |
1st Floor
| Size |
| 1,150 SF |
| Term |
| Negotiable |
| Rental Rate |
| $27.84 CAD/SF/YR $2.32 CAD/SF/MO $32,015 CAD/YR $2,668 CAD/MO |
| Space Use |
| Industrial |
| Build-Out |
| Shell Space |
| Available |
| Now |
1st Floor
| Size | 794 SF |
| Term | Negotiable |
| Rental Rate | $27.91 CAD/SF/YR |
| Space Use | Industrial |
| Build-Out | Shell Space |
| Available | Now |
ART STUDIO SPACES FOR LEASE Create • Teach • Collaborate Two flexible, light-filled art studio spaces are now available for lease, ideal for artists, makers, instructors, creative collectives, and shared workspace users. Studio 1: 1,150 SF for $1,950/month + utilities Studio 2: 794 SF for $1,350/month + utilities Combined: 1,944 SF for $3,300/month + utilities These open studio spaces offer the flexibility to create, teach, display, collaborate, and build community without the corporate feel. Studio 1 features a roll-up garage door for easy access, making it ideal for loading materials, equipment, or larger works. Available on month-to-month terms, with a maximum lease term of six months, this is a great short-term option for working artists, pop-up concepts, group studios, workshops, or creative teams looking for adaptable space.
- Listed lease rate plus proportional share of utilities
- Central Air Conditioning
- Drop Ceilings
- In the Heart of St Pete's Warehouse Art District
1st Floor
| Size | 1,150 SF |
| Term | Negotiable |
| Rental Rate | $27.84 CAD/SF/YR |
| Space Use | Industrial |
| Build-Out | Shell Space |
| Available | Now |
ART STUDIO SPACES FOR LEASE Create • Teach • Collaborate Two flexible, light-filled art studio spaces are now available for lease, ideal for artists, makers, instructors, creative collectives, and shared workspace users. Studio 1: 1,150 SF for $1,950/month + utilities Studio 2: 794 SF for $1,350/month + utilities Combined: 1,944 SF for $3,300/month + utilities These open studio spaces offer the flexibility to create, teach, display, collaborate, and build community without the corporate feel. Studio 1 features a roll-up garage door for easy access, making it ideal for loading materials, equipment, or larger works. Available on month-to-month terms, with a maximum lease term of six months, this is a great short-term option for working artists, pop-up concepts, group studios, workshops, or creative teams looking for adaptable space.
- Listed lease rate plus proportional share of utilities
- Central Air and Heating
- Private Restrooms
- Drop Ceilings
- In the Heart of St. Pete's Warehouse Arts District
Property Overview
ART STUDIO SPACES FOR LEASE Create • Teach • Collaborate Two flexible, light-filled art studio spaces are now available for lease, ideal for artists, makers, instructors, creative collectives, and shared workspace users. Studio 1: 1,150 SF for $1,950/month + utilities Studio 2: 794 SF for $1,350/month + utilities Combined: 1,944 SF for $3,300/month + utilities These open studio spaces offer the flexibility to create, teach, display, collaborate, and build community without the corporate feel. Studio 1 features a roll-up garage door for easy access, making it ideal for loading materials, equipment, or larger works. Available on month-to-month terms, with a maximum lease term of six months, this is a great short-term option for working artists, pop-up concepts, group studios, workshops, or creative teams looking for adaptable space.
Manufacturing Facility Facts
Presented by
Two Art Studios in Warehouse Art District | 2655 6th Ave S
Hmm, there seems to have been an error sending your message. Please try again.
Thanks! Your message was sent.
