Your email has been sent.
Park Highlights
- Situated in a High-Demand Tech Corridor with Excellent Visibility and Access.
- Interior & Exterior Improvements Complete
- Ample Parking Onsite
- Convenient Access to Highway 101 & Interstate 880
- Close to Numerous Retail Amenities
- Call Brokers for More Information
Park Facts
| Total Space Available | 18,237 SF | Park Type | Office Park |
| Total Space Available | 18,237 SF |
| Park Type | Office Park |
All Available Spaces(3)
Display Rental Rate as
- Space
- Size
- Term
- Rental Rate
- Space Use
- Condition
- Available
Excellent North San Jose Location; Interior & Exterior Improvements Complete; Adjacent to Light Rail Station; Close to Numerous Retail Amenities; Ample Parking; Convenient Access to Highway 101 & Interstate 880; Near San Jose International Airport
- Rate includes utilities, building services and property expenses
- Fits 17 - 52 People
- 1 Conference Room
- Kitchenette Included
- Mostly Open Floor Plan Layout
- 3 Private Offices
- Multiple Private Offices
- Easy Access to Highway 101 and Interstate 880
Excellent North San Jose Location; Interior & Exterior Improvements Complete; Adjacent to Light Rail Station; Close to Numerous Retail Amenities; Ample Parking; Within an Enterprise Zone and Eligible for Tax Incentives; Convenient Access to Highway 101 & Interstate 880; Near San Jose International Airport.
- Rate includes utilities, building services and property expenses
- Mostly Open Floor Plan Layout
- Fully Built-Out as Standard Office
- Fits 17 - 52 People
| Space | Size | Term | Rental Rate | Space Use | Condition | Available |
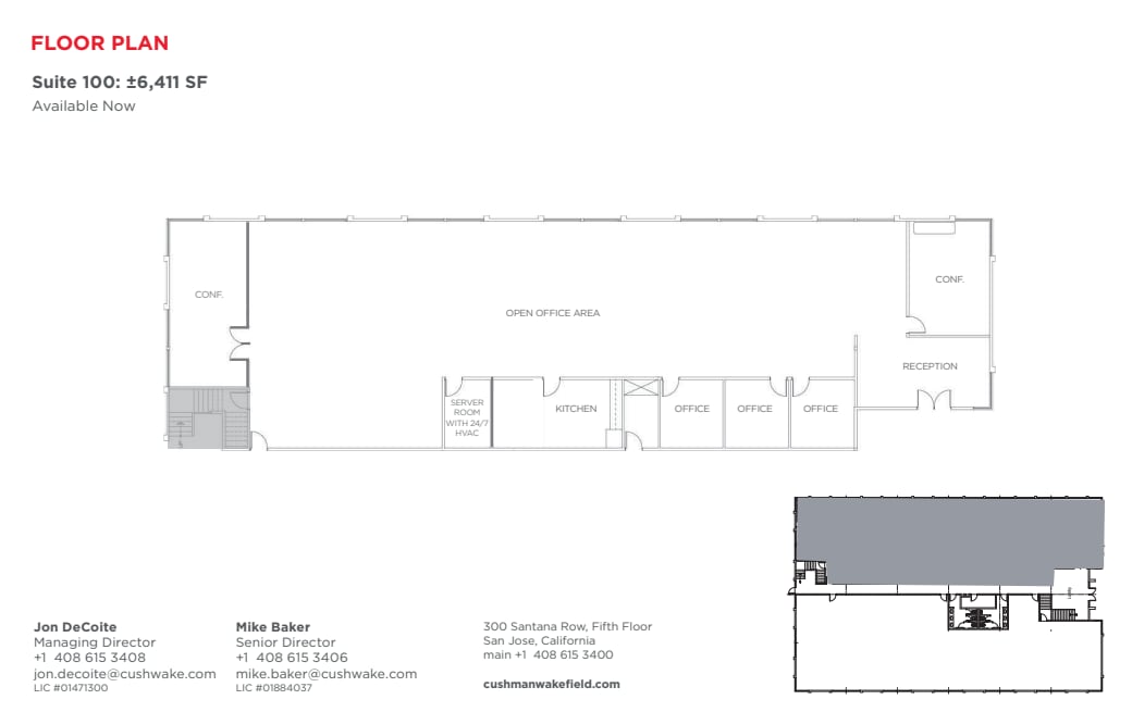
| 1st Floor, Ste 100 | 6,411 SF | Negotiable | $48.54 CAD/SF/YR $4.04 CAD/SF/MO $311,159 CAD/YR $25,930 CAD/MO | Office | - | Now |
| 2nd Floor, Ste 200 | 6,403 SF | Negotiable | $48.54 CAD/SF/YR $4.04 CAD/SF/MO $310,771 CAD/YR $25,898 CAD/MO | Office | Full Build-Out | Now |
2674 N 1st St - 1st Floor - Ste 100
2674 N 1st St - 2nd Floor - Ste 200
- Space
- Size
- Term
- Rental Rate
- Space Use
- Condition
- Available
Excellent North San Jose Location; Interior & Exterior Improvements Complete; Adjacent to Light Rail Station; Close to Numerous Retail Amenities; Ample Parking; Within an Enterprise Zone and Eligible for Tax Incentives; Convenient Access to Highway 101 & Interstate 880; Near San Jose International Airport.
- Rate includes utilities, building services and property expenses
- Mostly Open Floor Plan Layout
- Call listing brokers for more information
- Fully Built-Out as Standard Office
- Fits 14 - 44 People
| Space | Size | Term | Rental Rate | Space Use | Condition | Available |
| 1st Floor, Ste 150 | 5,423 SF | Negotiable | $48.54 CAD/SF/YR $4.04 CAD/SF/MO $263,206 CAD/YR $21,934 CAD/MO | Office | Full Build-Out | Now |
2680 N 1st St - 1st Floor - Ste 150
2674 N 1st St - 1st Floor - Ste 100
| Size | 6,411 SF |
| Term | Negotiable |
| Rental Rate | $48.54 CAD/SF/YR |
| Space Use | Office |
| Condition | - |
| Available | Now |
Excellent North San Jose Location; Interior & Exterior Improvements Complete; Adjacent to Light Rail Station; Close to Numerous Retail Amenities; Ample Parking; Convenient Access to Highway 101 & Interstate 880; Near San Jose International Airport
- Rate includes utilities, building services and property expenses
- Mostly Open Floor Plan Layout
- Fits 17 - 52 People
- 3 Private Offices
- 1 Conference Room
- Multiple Private Offices
- Kitchenette Included
- Easy Access to Highway 101 and Interstate 880
2674 N 1st St - 2nd Floor - Ste 200
| Size | 6,403 SF |
| Term | Negotiable |
| Rental Rate | $48.54 CAD/SF/YR |
| Space Use | Office |
| Condition | Full Build-Out |
| Available | Now |
Excellent North San Jose Location; Interior & Exterior Improvements Complete; Adjacent to Light Rail Station; Close to Numerous Retail Amenities; Ample Parking; Within an Enterprise Zone and Eligible for Tax Incentives; Convenient Access to Highway 101 & Interstate 880; Near San Jose International Airport.
- Rate includes utilities, building services and property expenses
- Fully Built-Out as Standard Office
- Mostly Open Floor Plan Layout
- Fits 17 - 52 People
2680 N 1st St - 1st Floor - Ste 150
| Size | 5,423 SF |
| Term | Negotiable |
| Rental Rate | $48.54 CAD/SF/YR |
| Space Use | Office |
| Condition | Full Build-Out |
| Available | Now |
Excellent North San Jose Location; Interior & Exterior Improvements Complete; Adjacent to Light Rail Station; Close to Numerous Retail Amenities; Ample Parking; Within an Enterprise Zone and Eligible for Tax Incentives; Convenient Access to Highway 101 & Interstate 880; Near San Jose International Airport.
- Rate includes utilities, building services and property expenses
- Fully Built-Out as Standard Office
- Mostly Open Floor Plan Layout
- Fits 14 - 44 People
- Call listing brokers for more information
Park Overview
2674–2680 North First Street offers a premier leasing opportunity in the heart of North San Jose, one of Silicon Valley’s most dynamic business corridors. This professionally managed office complex features recently completed interior and exterior improvements, providing modern, move-in-ready suites ranging from ±3,755 to ±6,411 square feet. Strategically located adjacent to a Light Rail station and just minutes from San Jose International Airport, the property offers unparalleled connectivity and convenience. Tenants benefit from proximity to major highways, abundant parking, and a wealth of nearby retail, dining, and hospitality amenities!
Presented by
N 1st Street | San Jose, CA 95134
Hmm, there seems to have been an error sending your message. Please try again.
Thanks! Your message was sent.





