Log In/Sign Up
Your email has been sent.
2675 Washtenaw Ave 1.54 Acres of Commercial Land Offered at $1,914,752 CAD in Ypsilanti, MI 48197



Investment Highlights
- 107' frontage on Washtenaw Avenue
- Between Golfside and Hewitt
- Easy access to I-94 and US-23
- Over 20,000 vehicles per day
Executive Summary
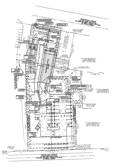
Prime redevelopment opportunity in Ypsilanti Township along the high-visibility Washtenaw Avenue corridor. This 1.54-acre site sits within the RC (Regional Corridor) zoning district, offering broad commercial flexibility and strong support for auto-oriented, retail, and service uses. The property benefits from an approved site plan for a modern car wash, giving a buyer a major head start on development timelines and municipal approvals. Positioned between Golfside Road and Hewitt Road, the site enjoys excellent traffic volumes, strong surrounding retail synergy, and direct connectivity to the region’s major arterials. I-94 and US-23 are just minutes away, providing efficient access for customers and commuters across Washtenaw County and the broader southeast Michigan region. With its combination of zoning, frontage, access, and ready-to-execute approvals, this location is well suited for a car wash, QSR, retail, medical, or other high-demand commercial redevelopment.
Property Facts
| Price | $1,914,752 CAD | Property Subtype | Commercial |
| Sale Type | Investment | Proposed Use | |
| No. Lots | 1 | Total Lot Size | 1.54 AC |
| Property Type | Land | ||
| Zoning | RC - Regional Corridor | ||
| Price | $1,914,752 CAD |
| Sale Type | Investment |
| No. Lots | 1 |
| Property Type | Land |
| Property Subtype | Commercial |
| Proposed Use | |
| Total Lot Size | 1.54 AC |
| Zoning | RC - Regional Corridor |
1 Lot Available
Lot
| Price | $1,914,752 CAD | Lot Size | 1.54 AC |
| Price Per AC | $1,243,345.41 CAD |
| Price | $1,914,752 CAD |
| Price Per AC | $1,243,345.41 CAD |
| Lot Size | 1.54 AC |
Redevelopment opportunity in Ypsilanti Township
1 1
Moderately walkable
60/100
Very drivable
80/100
Limited public transit
30/100
Fairly bikeable
50/100
1 of 5
Videos
Matterport 3D Exterior
Matterport 3D Tour
Photos
Street View
Street
Map
1 of 1
Presented by
2675 Washtenaw Ave
Already a member? Log In
Hmm, there seems to have been an error sending your message. Please try again.
Thanks! Your message was sent.
