Your email has been sent.
Highlights
- Ground and lower ground floor trading areas
- Nearby occupiers include Nandos, Costa, Greggs. KFC and Superdrug
- Major throughfare road with high levels of footfall
Space Availability (1)
Display Rental Rate as
- Space
- Size
- Term
- Rental Rate
- Type
| Space | Size | Term | Rental Rate | Rent Type | ||
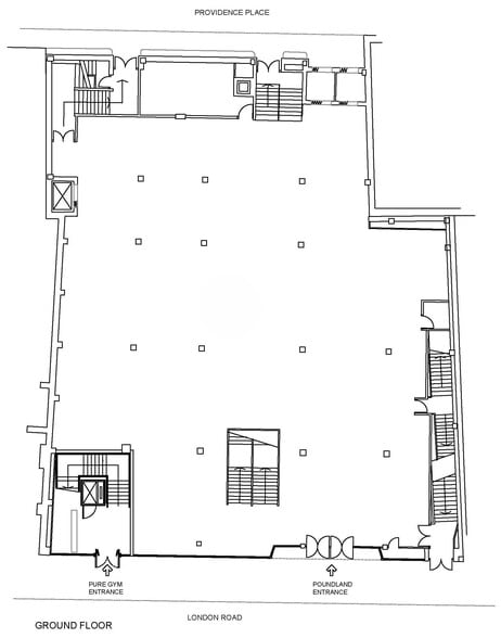
| Ground | 14,731 SF | Negotiable | $20.87 CAD/SF/YR $1.74 CAD/SF/MO $307,395 CAD/YR $25,616 CAD/MO | Fully Repairing & Insuring |
Ground
Offered by way of a new lease with a passing rent of £165,000 per annum, exclusive.
- Use Class: E
- Located in-line with other retail
- Loading to rear
- Splitting considered
- Across ground and basement
Service Types
The rent amount and service type that the tenant (lessee) will be responsible to pay to the landlord (lessor) throughout the lease term is negotiated prior to both parties signing a lease agreement. The service type will vary depending upon the services provided. Contact the listing broker for a full understanding of any associated costs or additional expenses for each service type.
1. Fully Repairing & Insuring: All obligations for repairing and insuring the property (or their share of the property) both internally and externally.
2. Internal Repairing Only: The tenant is responsible for internal repairs only. The landlord is responsible for structural and external repairs.
3. Internal Repairing & Insuring: The tenant is responsible for internal repairs and insurance for internal parts of the property only. The landlord is responsible for structural and external repairs.
4. Negotiable or TBD: This is used when the leasing contact does not provide the service type.
Select Tenants at 27-31 London Rd, Brighton, ESX BN1 4LE
- Tenant
- Description
- UK Locations
- Reach
- Poundland
- Dollar/Variety/Thrift
- 922
- International
- Pure Gym
- Fitness
- 686
- International
| Tenant | Description | UK Locations | Reach |
| Poundland | Dollar/Variety/Thrift | 922 | International |
| Pure Gym | Fitness | 686 | International |
Property Facts
| Total Space Available | 14,731 SF | Gross Leasable Area | 35,864 SF |
| Property Type | Retail | Year Built | 1969 |
| Property Subtype | Storefront |
| Total Space Available | 14,731 SF |
| Property Type | Retail |
| Property Subtype | Storefront |
| Gross Leasable Area | 35,864 SF |
| Year Built | 1969 |
About the Property
The property is a substantial mid terrace art deco building with prominent street frontage. The upper floors occupied by PureGym and the ground and lower ground floors offer an open plan trading area. There is a loading point to the rear located in Providence Place. The landlord will consider splitting the premises into two separate units.
Nearby Major Retailers
Presented by
27-31 London Rd
Hmm, there seems to have been an error sending your message. Please try again.
Thanks! Your message was sent.






