Your email has been sent.
Corona Commerce Center 2717 E Corona Rd 12,416 - 122,141 SF of 4-Star Industrial Space Available in Tucson, AZ 85756



Highlights
- New high cube warehouse building permitted, and ready for construction.
- Close proximity to I-10 and I-19 adjacent to Tucson International Airport.
- Approximately 2 hours to Phoenix through I-10.
- 6 Leasing options ranging from ±12,416 SF to the remainder of building at ±122,141 SF.
- Less than 1 hour from Mexico border through I-19.
- Highly desirable location for distribution and manufacturing zoned I-1.
Features
All Available Spaces(5)
Display Rental Rate as
- Space
- Size
- Term
- Rental Rate
- Space Use
- Build-Out
- Available
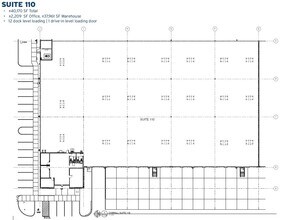
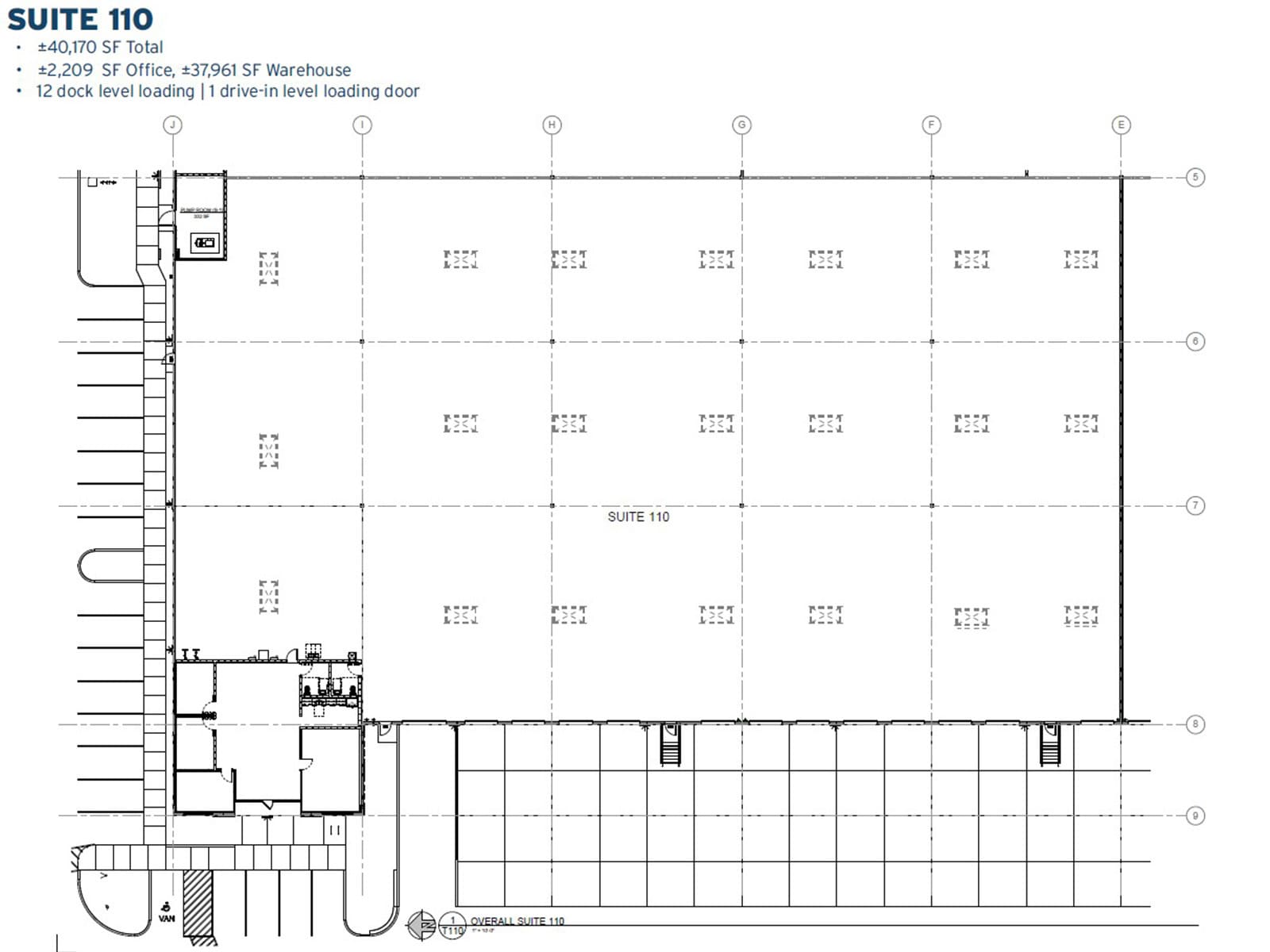
Ready for Occupancy January 2026. The Corona Commerce Center offers up ±122,141 SF of available new industrial divisible down to various leasing options and includes 35 dock doors, 6 drive-in doors, a 32' clear height, and heavy power with 3,000 Amps 277/480V. The site will be tilt-up construction with an R-38 roof insulation, offer ESFR sprinklers, and ample parking with 190 stalls. Please review marketing for leasing options, call for pricing and additional project details. 6 Leasing options ranging from ±12,416 SF to the remainder of building at ±122,141 SF.
- Includes 2,209 SF of dedicated office space
- Space is in Excellent Condition
- 12 Loading Docks
- Located within close proximity to I-10 and I-19.
- Less than 1 hour from Mexico border through I-19.
- 1 Drive Bay
- Can be combined with additional space(s) for up to 72,829 SF of adjacent space
- Reception Area
- Adjacent to Tucson International Airport.
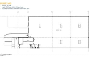
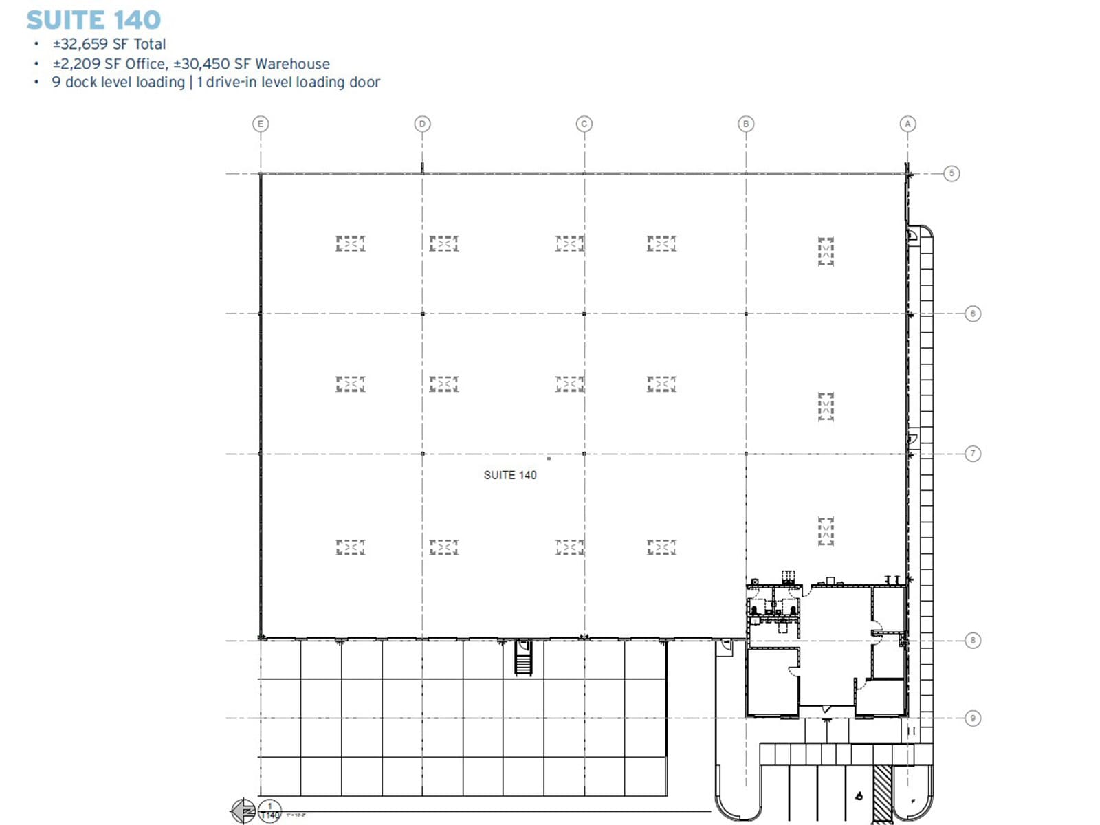
Ready for Occupancy November 2025. The Corona Commerce Center offers up ±122,141 SF of available new industrial divisible down to various leasing options and includes 35 dock doors, 6 drive-in doors, a 32' clear height, and heavy power with 3,000 Amps 277/480V. The site will be tilt-up construction with an R-38 roof insulation, offer ESFR sprinklers, and ample parking with 190 stalls. Please review marketing for leasing options, call for pricing and additional project details. 6 Leasing options ranging from ±12,416 SF to the remainder of building at ±122,141 SF.
- Includes 2,209 SF of dedicated office space
- Space is in Excellent Condition
- 9 Loading Docks
- Located within close proximity to I-10 and I-19.
- Less than 1 hour from Mexico border through I-19.
- 1 Drive Bay
- Can be combined with additional space(s) for up to 72,829 SF of adjacent space
- Reception Area
- Adjacent to Tucson International Airport.
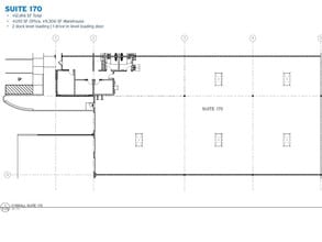
Ready for Occupancy November 2025. The Corona Commerce Center offers up ±122,141 SF of available new industrial divisible down to various leasing options and includes 35 dock doors, 6 drive-in doors, a 32' clear height, and heavy power with 3,000 Amps 277/480V. The site will be tilt-up construction with an R-38 roof insulation, offer ESFR sprinklers, and ample parking with 190 stalls. Please review marketing for leasing options, call for pricing and additional project details. 6 Leasing options ranging from ±12,416 SF to the remainder of building at ±122,141 SF.
- Includes 1,110 SF of dedicated office space
- Space is in Excellent Condition
- Reception Area
- Adjacent to Tucson International Airport.
- 1 Drive Bay
- 2 Loading Docks
- Located within close proximity to I-10 and I-19.
- Less than 1 hour from Mexico border through I-19.
Ready for Occupancy November 2025. The Corona Commerce Center offers up ±122,141 SF of available new industrial divisible down to various leasing options and includes 35 dock doors, 6 drive-in doors, a 32' clear height, and heavy power with 3,000 Amps 277/480V. The site will be tilt-up construction with an R-38 roof insulation, offer ESFR sprinklers, and ample parking with 190 stalls. Please review marketing for leasing options, call for pricing and additional project details. 6 Leasing options ranging from ±12,416 SF to the remainder of building at ±122,141 SF.
- Includes 1,110 SF of dedicated office space
- Space is in Excellent Condition
- Reception Area
- Adjacent to Tucson International Airport.
- 1 Drive Bay
- 2 Loading Docks
- Located within close proximity to I-10 and I-19.
- Less than 1 hour from Mexico border through I-19.
Ready for Occupancy November 2025. The Corona Commerce Center offers up ±122,141 SF of available new industrial divisible down to various leasing options and includes 35 dock doors, 6 drive-in doors, a 32' clear height, and heavy power with 3,000 Amps 277/480V. The site will be tilt-up construction with an R-38 roof insulation, offer ESFR sprinklers, and ample parking with 190 stalls. Please review marketing for leasing options, call for pricing and additional project details. 6 Leasing options ranging from ±12,416 SF to the remainder of building at ±122,141 SF.
- Includes 2,209 SF of dedicated office space
- Space is in Excellent Condition
- Reception Area
- Adjacent to Tucson International Airport.
- 1 Drive Bay
- 5 Loading Docks
- Located within close proximity to I-10 and I-19.
- Less than 1 hour from Mexico border through I-19.
| Space | Size | Term | Rental Rate | Space Use | Build-Out | Available |
| 1st Floor - 110 | 40,170 SF | Negotiable | Upon Request Upon Request Upon Request Upon Request | Industrial | Full Build-Out | Now |
| 1st Floor - 140 | 32,659 SF | Negotiable | Upon Request Upon Request Upon Request Upon Request | Industrial | Full Build-Out | Now |
| 1st Floor - 160 | 12,416 SF | Negotiable | Upon Request Upon Request Upon Request Upon Request | Industrial | Full Build-Out | Now |
| 1st Floor - 170 | 12,416 SF | Negotiable | Upon Request Upon Request Upon Request Upon Request | Industrial | Full Build-Out | Now |
| 1st Floor - 190 | 24,480 SF | Negotiable | Upon Request Upon Request Upon Request Upon Request | Industrial | Full Build-Out | Now |
1st Floor - 110
| Size |
| 40,170 SF |
| Term |
| Negotiable |
| Rental Rate |
| Upon Request Upon Request Upon Request Upon Request |
| Space Use |
| Industrial |
| Build-Out |
| Full Build-Out |
| Available |
| Now |
1st Floor - 140
| Size |
| 32,659 SF |
| Term |
| Negotiable |
| Rental Rate |
| Upon Request Upon Request Upon Request Upon Request |
| Space Use |
| Industrial |
| Build-Out |
| Full Build-Out |
| Available |
| Now |
1st Floor - 160
| Size |
| 12,416 SF |
| Term |
| Negotiable |
| Rental Rate |
| Upon Request Upon Request Upon Request Upon Request |
| Space Use |
| Industrial |
| Build-Out |
| Full Build-Out |
| Available |
| Now |
1st Floor - 170
| Size |
| 12,416 SF |
| Term |
| Negotiable |
| Rental Rate |
| Upon Request Upon Request Upon Request Upon Request |
| Space Use |
| Industrial |
| Build-Out |
| Full Build-Out |
| Available |
| Now |
1st Floor - 190
| Size |
| 24,480 SF |
| Term |
| Negotiable |
| Rental Rate |
| Upon Request Upon Request Upon Request Upon Request |
| Space Use |
| Industrial |
| Build-Out |
| Full Build-Out |
| Available |
| Now |
1st Floor - 110
| Size | 40,170 SF |
| Term | Negotiable |
| Rental Rate | Upon Request |
| Space Use | Industrial |
| Build-Out | Full Build-Out |
| Available | Now |
Ready for Occupancy January 2026. The Corona Commerce Center offers up ±122,141 SF of available new industrial divisible down to various leasing options and includes 35 dock doors, 6 drive-in doors, a 32' clear height, and heavy power with 3,000 Amps 277/480V. The site will be tilt-up construction with an R-38 roof insulation, offer ESFR sprinklers, and ample parking with 190 stalls. Please review marketing for leasing options, call for pricing and additional project details. 6 Leasing options ranging from ±12,416 SF to the remainder of building at ±122,141 SF.
- Includes 2,209 SF of dedicated office space
- 1 Drive Bay
- Space is in Excellent Condition
- Can be combined with additional space(s) for up to 72,829 SF of adjacent space
- 12 Loading Docks
- Reception Area
- Located within close proximity to I-10 and I-19.
- Adjacent to Tucson International Airport.
- Less than 1 hour from Mexico border through I-19.
1st Floor - 140
| Size | 32,659 SF |
| Term | Negotiable |
| Rental Rate | Upon Request |
| Space Use | Industrial |
| Build-Out | Full Build-Out |
| Available | Now |
Ready for Occupancy November 2025. The Corona Commerce Center offers up ±122,141 SF of available new industrial divisible down to various leasing options and includes 35 dock doors, 6 drive-in doors, a 32' clear height, and heavy power with 3,000 Amps 277/480V. The site will be tilt-up construction with an R-38 roof insulation, offer ESFR sprinklers, and ample parking with 190 stalls. Please review marketing for leasing options, call for pricing and additional project details. 6 Leasing options ranging from ±12,416 SF to the remainder of building at ±122,141 SF.
- Includes 2,209 SF of dedicated office space
- 1 Drive Bay
- Space is in Excellent Condition
- Can be combined with additional space(s) for up to 72,829 SF of adjacent space
- 9 Loading Docks
- Reception Area
- Located within close proximity to I-10 and I-19.
- Adjacent to Tucson International Airport.
- Less than 1 hour from Mexico border through I-19.
1st Floor - 160
| Size | 12,416 SF |
| Term | Negotiable |
| Rental Rate | Upon Request |
| Space Use | Industrial |
| Build-Out | Full Build-Out |
| Available | Now |
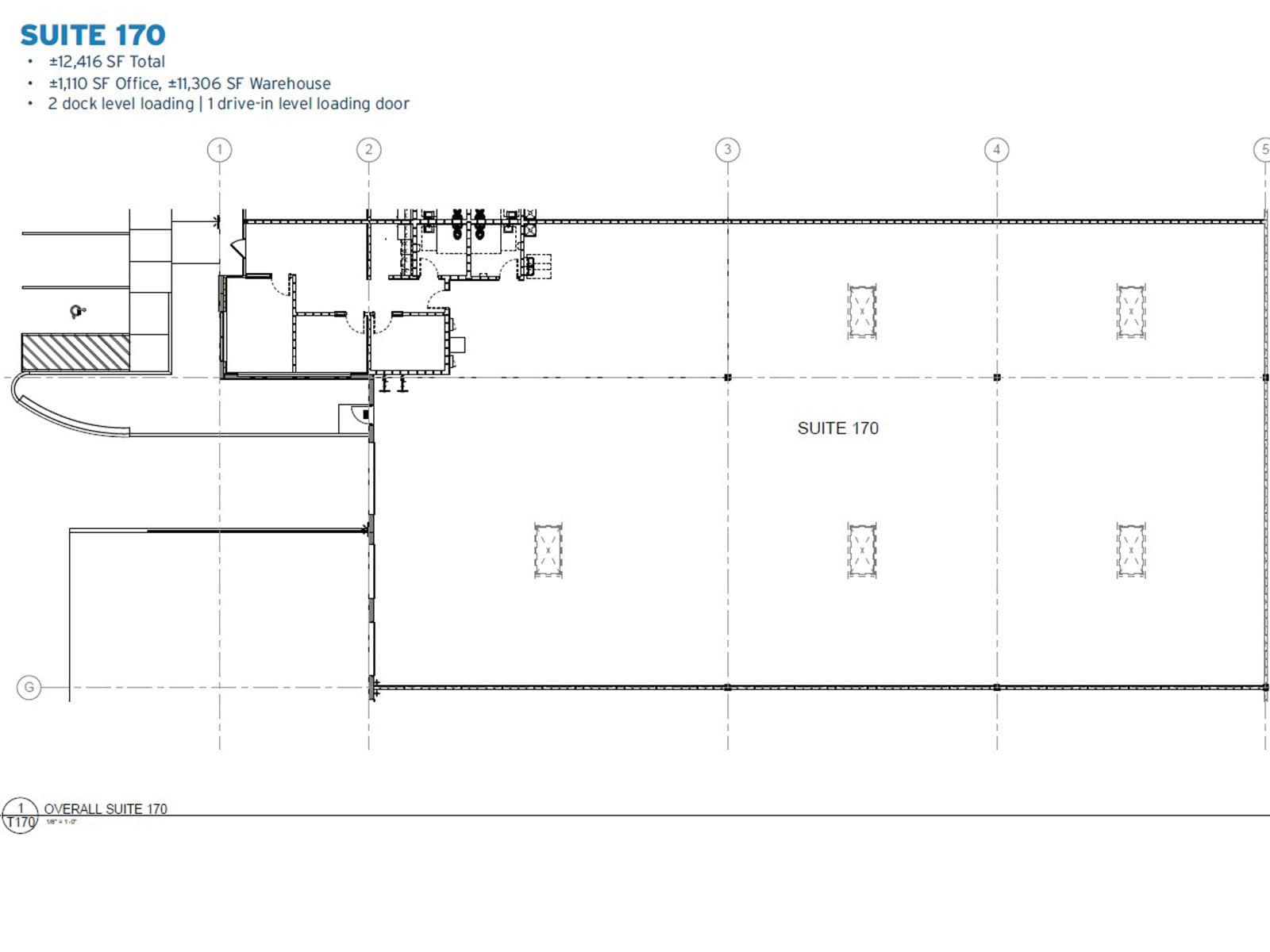
Ready for Occupancy November 2025. The Corona Commerce Center offers up ±122,141 SF of available new industrial divisible down to various leasing options and includes 35 dock doors, 6 drive-in doors, a 32' clear height, and heavy power with 3,000 Amps 277/480V. The site will be tilt-up construction with an R-38 roof insulation, offer ESFR sprinklers, and ample parking with 190 stalls. Please review marketing for leasing options, call for pricing and additional project details. 6 Leasing options ranging from ±12,416 SF to the remainder of building at ±122,141 SF.
- Includes 1,110 SF of dedicated office space
- 1 Drive Bay
- Space is in Excellent Condition
- 2 Loading Docks
- Reception Area
- Located within close proximity to I-10 and I-19.
- Adjacent to Tucson International Airport.
- Less than 1 hour from Mexico border through I-19.
1st Floor - 170
| Size | 12,416 SF |
| Term | Negotiable |
| Rental Rate | Upon Request |
| Space Use | Industrial |
| Build-Out | Full Build-Out |
| Available | Now |
Ready for Occupancy November 2025. The Corona Commerce Center offers up ±122,141 SF of available new industrial divisible down to various leasing options and includes 35 dock doors, 6 drive-in doors, a 32' clear height, and heavy power with 3,000 Amps 277/480V. The site will be tilt-up construction with an R-38 roof insulation, offer ESFR sprinklers, and ample parking with 190 stalls. Please review marketing for leasing options, call for pricing and additional project details. 6 Leasing options ranging from ±12,416 SF to the remainder of building at ±122,141 SF.
- Includes 1,110 SF of dedicated office space
- 1 Drive Bay
- Space is in Excellent Condition
- 2 Loading Docks
- Reception Area
- Located within close proximity to I-10 and I-19.
- Adjacent to Tucson International Airport.
- Less than 1 hour from Mexico border through I-19.
1st Floor - 190
| Size | 24,480 SF |
| Term | Negotiable |
| Rental Rate | Upon Request |
| Space Use | Industrial |
| Build-Out | Full Build-Out |
| Available | Now |
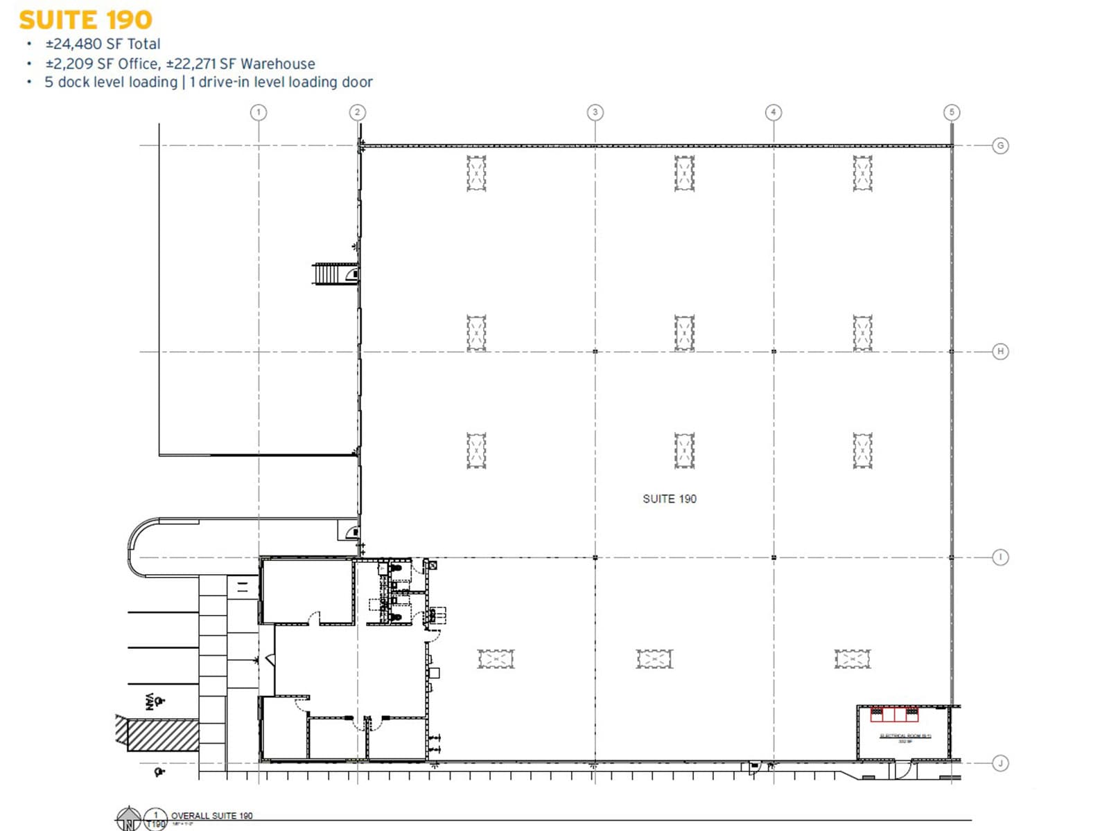
Ready for Occupancy November 2025. The Corona Commerce Center offers up ±122,141 SF of available new industrial divisible down to various leasing options and includes 35 dock doors, 6 drive-in doors, a 32' clear height, and heavy power with 3,000 Amps 277/480V. The site will be tilt-up construction with an R-38 roof insulation, offer ESFR sprinklers, and ample parking with 190 stalls. Please review marketing for leasing options, call for pricing and additional project details. 6 Leasing options ranging from ±12,416 SF to the remainder of building at ±122,141 SF.
- Includes 2,209 SF of dedicated office space
- 1 Drive Bay
- Space is in Excellent Condition
- 5 Loading Docks
- Reception Area
- Located within close proximity to I-10 and I-19.
- Adjacent to Tucson International Airport.
- Less than 1 hour from Mexico border through I-19.
Property Overview
Project Completion: January 2026 Schnitzer Properties presents a new ±146,963 square foot single or multi-tenant industrial building strategically located adjacent to Tucson International Airport and located within the largest and most active sub-market within Tucson metro area. This site is approximately an hour from the Mariposa Port of Entry. The Mariposa Port of Entry was opened in 1973 as a commercial port of entry and was expanded in 2014 at a cost of $244 M. This port can now handle upward of 4,000 commercial trucks per day. Located approximately 7 miles from the Port of Tucson a full service inland port with rail yard and intermodal and transload facility. This port services multiple steam ship lines.
Warehouse Facility Facts
Presented by
Corona Commerce Center | 2717 E Corona Rd
Hmm, there seems to have been an error sending your message. Please try again.
Thanks! Your message was sent.











