Your email has been sent.
Colonial Office Center 2728 Colonial Ave SW 120 - 3,831 SF of Office Space Available in Roanoke, VA 24015



Highlights
- Prime Location Just Off Interstate 581
- Between Towers Shopping Center and VA Western College
All Available Spaces(10)
Display Rental Rate as
- Space
- Size
- Term
- Rental Rate
- Space Use
- Build-Out
- Available
Suite 103 is 540 square feet of usable space and 594 square feet of rentable space. This is one large open room that measures 30' x 18'. To this space we can add an additional room that is 10' x 10' and another additional room that is 12' x 10'.
- Rate includes utilities, building services and property expenses
- Open Floor Plan Layout
- Fully Built-Out as Standard Office
- Space is in Excellent Condition
This space is 481 square feet of usable space and 504 square feet of rentable space. There is a reception room and a large office area.
- Rate includes utilities, building services and property expenses
- Space is in Excellent Condition
This is a one room office that measures 12' x 10'. It is 120 square feet of usable space and 132 square feet of rentable space. The rent is $17.95 per square foot or $197.45 per month. This office does not have any window space.
- Rate includes utilities, building services and property expenses
- Open Floor Plan Layout
- Fully Built-Out as Standard Office
- Space is in Excellent Condition
Excellent space just as you walk in the main entrance of the building. See the attached floor plan. Nice large windows on the front of the space. 3 private offices and open central core.
- Rate includes utilities, building services and property expenses
- Location Right Off Of Building Entrance
- Open Floor Plan Layout
This is a nice one room office that measures 14' x 10'. The usable square footage is 140 square feet and the rentable square footage is 154 square feet after the common area factor.
- Rate includes utilities, building services and property expenses
- Open Floor Plan Layout
- Full service lease with utilities and janitorial
- Fully Built-Out as Standard Office
- Space is in Excellent Condition
- Full service lease with utilities and janitorial
This space is a one room office that measures 12' x 10'. There is a 10% common area factor at Colonial so the rent is based on 120 usable square feet and 132 square feet of rentable space.
- Rate includes utilities, building services and property expenses
- Open Floor Plan Layout
- Space is in Excellent Condition
- Fully Built-Out as Standard Office
- 1 Private Office
This is a large one room office at Colonial Office Center. The space is 260 square feet of usable space and 296 square feet of rentable space.
- Rate includes utilities, building services and property expenses
- Open Floor Plan Layout
- Large Open Room
- Fully Built-Out as Standard Office
- Space is in Excellent Condition
- Large Open Room
This is a nice two room suite. The usable square footage is 304 square feet. The rentable square footage is 335 square feet. The monthly rent is $445.27
- Rate includes utilities, building services and property expenses
This space is located on the front of the building with a great window. Reception area, conference area and 1 private office. A great small office space located just off of I-581. This space is 437 square feet of usable space and 481 square feet of rentable space.
- Rate includes utilities, building services and property expenses
- Large Windows
- Mostly Open Floor Plan Layout
This is a two room suite with amazing windows. The space is 442 square feet of usable space and 486 square feet of rentable space. Rent is $727 per month and all utilities and janitor service is included. The layout is a reception area and a large office area that is 23' x 12'.
- Rate includes utilities, building services and property expenses
- Mostly Open Floor Plan Layout
- Exceptional Window Space
- Fully Built-Out as Professional Services Office
- Space is in Excellent Condition
| Space | Size | Term | Rental Rate | Space Use | Build-Out | Available |
| 1st Floor, Ste 103 | 540-760 SF | 1-10 Years | $20.49 CAD/SF/YR $1.71 CAD/SF/MO $15,571 CAD/YR $1,298 CAD/MO | Office | Full Build-Out | Now |
| 1st Floor, Ste 104 & 106 | 458 SF | 1 Year | $21.86 CAD/SF/YR $1.82 CAD/SF/MO $10,011 CAD/YR $834.25 CAD/MO | Office | - | Now |
| 1st Floor, Ste 115 | 120 SF | 1-10 Years | $24.60 CAD/SF/YR $2.05 CAD/SF/MO $2,952 CAD/YR $245.99 CAD/MO | Office | Full Build-Out | Now |
| 1st Floor, Ste 12 | 790 SF | 1 Year | $21.86 CAD/SF/YR $1.82 CAD/SF/MO $17,268 CAD/YR $1,439 CAD/MO | Office | - | 30 Days |
| 1st Floor, Ste 120 | 140 SF | 1-10 Years | $24.60 CAD/SF/YR $2.05 CAD/SF/MO $3,444 CAD/YR $286.99 CAD/MO | Office | Full Build-Out | Now |
| 1st Floor, Ste 121 | 120 SF | 1-10 Years | $24.60 CAD/SF/YR $2.05 CAD/SF/MO $2,952 CAD/YR $245.99 CAD/MO | Office | Full Build-Out | Now |
| 1st Floor, Ste 123 | 260 SF | 1-10 Years | $24.60 CAD/SF/YR $2.05 CAD/SF/MO $6,396 CAD/YR $532.98 CAD/MO | Office | Full Build-Out | Now |
| 1st Floor, Ste 15 | 304 SF | 1-10 Years | $21.86 CAD/SF/YR $1.82 CAD/SF/MO $6,645 CAD/YR $553.74 CAD/MO | Office | - | Now |
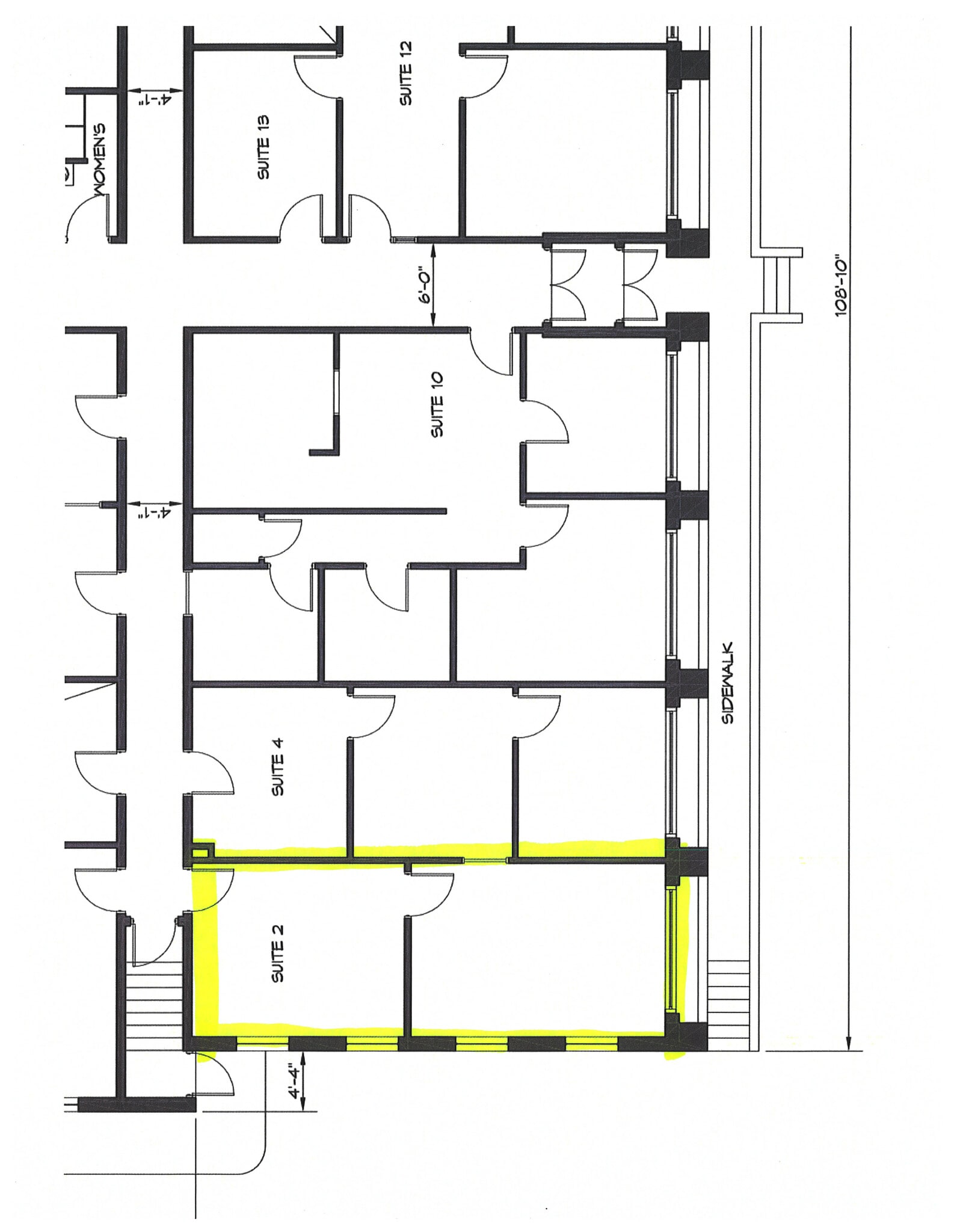
| 1st Floor, Ste 2 | 437 SF | 1-10 Years | $24.60 CAD/SF/YR $2.05 CAD/SF/MO $10,750 CAD/YR $895.81 CAD/MO | Office | - | 30 Days |
| 1st Floor, Ste 20 | 442 SF | 1-10 Years | $24.60 CAD/SF/YR $2.05 CAD/SF/MO $10,873 CAD/YR $906.06 CAD/MO | Office | Full Build-Out | Now |
1st Floor, Ste 103
| Size |
| 540-760 SF |
| Term |
| 1-10 Years |
| Rental Rate |
| $20.49 CAD/SF/YR $1.71 CAD/SF/MO $15,571 CAD/YR $1,298 CAD/MO |
| Space Use |
| Office |
| Build-Out |
| Full Build-Out |
| Available |
| Now |
1st Floor, Ste 104 & 106
| Size |
| 458 SF |
| Term |
| 1 Year |
| Rental Rate |
| $21.86 CAD/SF/YR $1.82 CAD/SF/MO $10,011 CAD/YR $834.25 CAD/MO |
| Space Use |
| Office |
| Build-Out |
| - |
| Available |
| Now |
1st Floor, Ste 115
| Size |
| 120 SF |
| Term |
| 1-10 Years |
| Rental Rate |
| $24.60 CAD/SF/YR $2.05 CAD/SF/MO $2,952 CAD/YR $245.99 CAD/MO |
| Space Use |
| Office |
| Build-Out |
| Full Build-Out |
| Available |
| Now |
1st Floor, Ste 12
| Size |
| 790 SF |
| Term |
| 1 Year |
| Rental Rate |
| $21.86 CAD/SF/YR $1.82 CAD/SF/MO $17,268 CAD/YR $1,439 CAD/MO |
| Space Use |
| Office |
| Build-Out |
| - |
| Available |
| 30 Days |
1st Floor, Ste 120
| Size |
| 140 SF |
| Term |
| 1-10 Years |
| Rental Rate |
| $24.60 CAD/SF/YR $2.05 CAD/SF/MO $3,444 CAD/YR $286.99 CAD/MO |
| Space Use |
| Office |
| Build-Out |
| Full Build-Out |
| Available |
| Now |
1st Floor, Ste 121
| Size |
| 120 SF |
| Term |
| 1-10 Years |
| Rental Rate |
| $24.60 CAD/SF/YR $2.05 CAD/SF/MO $2,952 CAD/YR $245.99 CAD/MO |
| Space Use |
| Office |
| Build-Out |
| Full Build-Out |
| Available |
| Now |
1st Floor, Ste 123
| Size |
| 260 SF |
| Term |
| 1-10 Years |
| Rental Rate |
| $24.60 CAD/SF/YR $2.05 CAD/SF/MO $6,396 CAD/YR $532.98 CAD/MO |
| Space Use |
| Office |
| Build-Out |
| Full Build-Out |
| Available |
| Now |
1st Floor, Ste 15
| Size |
| 304 SF |
| Term |
| 1-10 Years |
| Rental Rate |
| $21.86 CAD/SF/YR $1.82 CAD/SF/MO $6,645 CAD/YR $553.74 CAD/MO |
| Space Use |
| Office |
| Build-Out |
| - |
| Available |
| Now |
1st Floor, Ste 2
| Size |
| 437 SF |
| Term |
| 1-10 Years |
| Rental Rate |
| $24.60 CAD/SF/YR $2.05 CAD/SF/MO $10,750 CAD/YR $895.81 CAD/MO |
| Space Use |
| Office |
| Build-Out |
| - |
| Available |
| 30 Days |
1st Floor, Ste 20
| Size |
| 442 SF |
| Term |
| 1-10 Years |
| Rental Rate |
| $24.60 CAD/SF/YR $2.05 CAD/SF/MO $10,873 CAD/YR $906.06 CAD/MO |
| Space Use |
| Office |
| Build-Out |
| Full Build-Out |
| Available |
| Now |
1st Floor, Ste 103
| Size | 540-760 SF |
| Term | 1-10 Years |
| Rental Rate | $20.49 CAD/SF/YR |
| Space Use | Office |
| Build-Out | Full Build-Out |
| Available | Now |
Suite 103 is 540 square feet of usable space and 594 square feet of rentable space. This is one large open room that measures 30' x 18'. To this space we can add an additional room that is 10' x 10' and another additional room that is 12' x 10'.
- Rate includes utilities, building services and property expenses
- Fully Built-Out as Standard Office
- Open Floor Plan Layout
- Space is in Excellent Condition
1st Floor, Ste 104 & 106
| Size | 458 SF |
| Term | 1 Year |
| Rental Rate | $21.86 CAD/SF/YR |
| Space Use | Office |
| Build-Out | - |
| Available | Now |
This space is 481 square feet of usable space and 504 square feet of rentable space. There is a reception room and a large office area.
- Rate includes utilities, building services and property expenses
- Space is in Excellent Condition
1st Floor, Ste 115
| Size | 120 SF |
| Term | 1-10 Years |
| Rental Rate | $24.60 CAD/SF/YR |
| Space Use | Office |
| Build-Out | Full Build-Out |
| Available | Now |
This is a one room office that measures 12' x 10'. It is 120 square feet of usable space and 132 square feet of rentable space. The rent is $17.95 per square foot or $197.45 per month. This office does not have any window space.
- Rate includes utilities, building services and property expenses
- Fully Built-Out as Standard Office
- Open Floor Plan Layout
- Space is in Excellent Condition
1st Floor, Ste 12
| Size | 790 SF |
| Term | 1 Year |
| Rental Rate | $21.86 CAD/SF/YR |
| Space Use | Office |
| Build-Out | - |
| Available | 30 Days |
Excellent space just as you walk in the main entrance of the building. See the attached floor plan. Nice large windows on the front of the space. 3 private offices and open central core.
- Rate includes utilities, building services and property expenses
- Open Floor Plan Layout
- Location Right Off Of Building Entrance
1st Floor, Ste 120
| Size | 140 SF |
| Term | 1-10 Years |
| Rental Rate | $24.60 CAD/SF/YR |
| Space Use | Office |
| Build-Out | Full Build-Out |
| Available | Now |
This is a nice one room office that measures 14' x 10'. The usable square footage is 140 square feet and the rentable square footage is 154 square feet after the common area factor.
- Rate includes utilities, building services and property expenses
- Fully Built-Out as Standard Office
- Open Floor Plan Layout
- Space is in Excellent Condition
- Full service lease with utilities and janitorial
- Full service lease with utilities and janitorial
1st Floor, Ste 121
| Size | 120 SF |
| Term | 1-10 Years |
| Rental Rate | $24.60 CAD/SF/YR |
| Space Use | Office |
| Build-Out | Full Build-Out |
| Available | Now |
This space is a one room office that measures 12' x 10'. There is a 10% common area factor at Colonial so the rent is based on 120 usable square feet and 132 square feet of rentable space.
- Rate includes utilities, building services and property expenses
- Fully Built-Out as Standard Office
- Open Floor Plan Layout
- 1 Private Office
- Space is in Excellent Condition
1st Floor, Ste 123
| Size | 260 SF |
| Term | 1-10 Years |
| Rental Rate | $24.60 CAD/SF/YR |
| Space Use | Office |
| Build-Out | Full Build-Out |
| Available | Now |
This is a large one room office at Colonial Office Center. The space is 260 square feet of usable space and 296 square feet of rentable space.
- Rate includes utilities, building services and property expenses
- Fully Built-Out as Standard Office
- Open Floor Plan Layout
- Space is in Excellent Condition
- Large Open Room
- Large Open Room
1st Floor, Ste 15
| Size | 304 SF |
| Term | 1-10 Years |
| Rental Rate | $21.86 CAD/SF/YR |
| Space Use | Office |
| Build-Out | - |
| Available | Now |
This is a nice two room suite. The usable square footage is 304 square feet. The rentable square footage is 335 square feet. The monthly rent is $445.27
- Rate includes utilities, building services and property expenses
1st Floor, Ste 2
| Size | 437 SF |
| Term | 1-10 Years |
| Rental Rate | $24.60 CAD/SF/YR |
| Space Use | Office |
| Build-Out | - |
| Available | 30 Days |
This space is located on the front of the building with a great window. Reception area, conference area and 1 private office. A great small office space located just off of I-581. This space is 437 square feet of usable space and 481 square feet of rentable space.
- Rate includes utilities, building services and property expenses
- Mostly Open Floor Plan Layout
- Large Windows
1st Floor, Ste 20
| Size | 442 SF |
| Term | 1-10 Years |
| Rental Rate | $24.60 CAD/SF/YR |
| Space Use | Office |
| Build-Out | Full Build-Out |
| Available | Now |
This is a two room suite with amazing windows. The space is 442 square feet of usable space and 486 square feet of rentable space. Rent is $727 per month and all utilities and janitor service is included. The layout is a reception area and a large office area that is 23' x 12'.
- Rate includes utilities, building services and property expenses
- Fully Built-Out as Professional Services Office
- Mostly Open Floor Plan Layout
- Space is in Excellent Condition
- Exceptional Window Space
Property Overview
Located on Colonial Avenue just off the Colonial exit on Interstate 581 between Towers Shopping Center and Virginia Western College. This building offers the convenience to your clients that is difficult to find in office space. The rental rate is $15.95-$17.95 per square foot based on the rentable square feet and this includes utilities and janitorial service. There is a 10% common area factor added to the usable square footage to determine rentable square footage.
- Bus Line
Property Facts
Presented by
Colonial Office Center | 2728 Colonial Ave SW
Hmm, there seems to have been an error sending your message. Please try again.
Thanks! Your message was sent.








