Your email has been sent.
Suite 1303 Bldg 13 2743 Smith Ranch Rd 154 - 1,798 SF of Office/Retail Space Available in Pearland, TX 77584



Highlights
- Ideal for medical, professional, or general office use- Built in 2021 – newer construction - 3 assigned parking- Convenient access to Highway 288
All Available Spaces(4)
Display Rental Rate as
- Space
- Size
- Term
- Rental Rate
- Space Use
- Build-Out
- Available
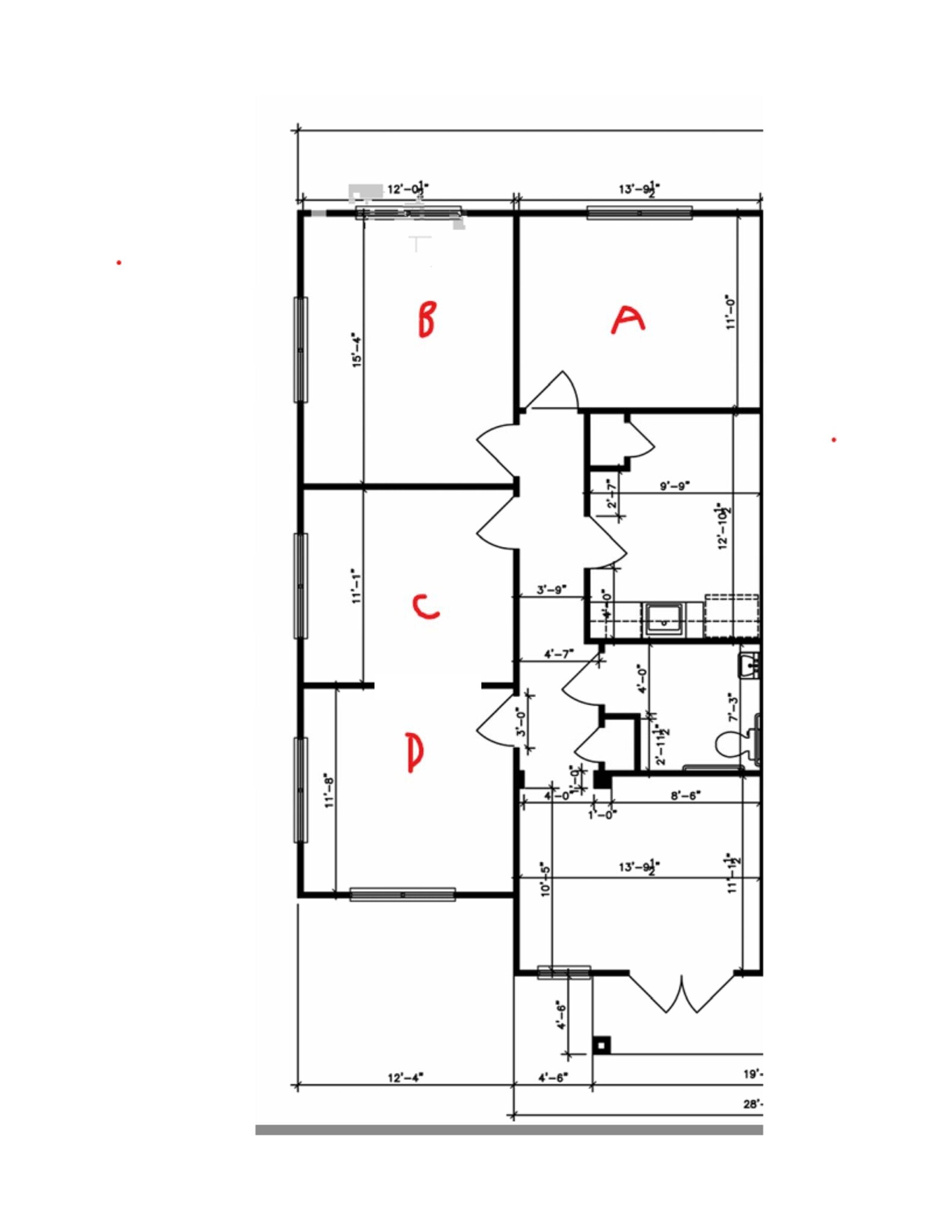
Room A is 11'x11', room B 15'x11', room C &D connected together so it is 22'x11 We can coshare the rent and office can be cosharing space. The price will be given upon request.
- Lease rate does not include utilities, property expenses or building services
- 3 Private Offices
- Can be combined with additional space(s) for up to 1,798 SF of adjacent space
- Fully Built-Out as Professional Services Office
- Space is in Excellent Condition
Work Office like at home. Large Kitchen. Custom Built. Bright Lighting. Custom Trim Moldings throughout office. Room A is 11'x11', Room B 15'x11', room C &D connected together so it is 22'x11 Cosharing Pricing below Room A is 11'x11' $900/mn (CAM is calculated on renewal rate) Room B is 15'x11' $1,000/mn (CAM is calculated on renewal rate) Room C &D connected together 22'x11' $1,600/ mn (CAM is calculated on renewal rate)
- Rate includes utilities, building services and property expenses
- Office intensive layout
- Fully Built-Out as Standard Office
- Can be combined with additional space(s) for up to 1,798 SF of adjacent space
Work Office like at home. Large Kitchen. Custom Built. Bright Lighting. Custom Trim Moldings throughout office. Room A is 11'x11', Room B 15'x11', room C &D connected together so it is 22'x11 Cosharing Pricing below Room A is 11'x11' $900/mn (CAM is calculated on renewal rate) Room B is 15'x11' $1,000/mn (CAM is calculated on renewal rate) Room C &D connected together 22'x11' $1,600/ mn (CAM is calculated on renewal rate)
- Rate includes utilities, building services and property expenses
- Office intensive layout
- Fully Built-Out as Standard Office
- Can be combined with additional space(s) for up to 1,798 SF of adjacent space
Work Office like at home. Large Kitchen. Custom Built. Bright Lighting. Custom Trim Moldings throughout office. Room A is 11'x11', Room B 15'x11', room C &D connected together so it is 22'x11 Cosharing Pricing below Room A is 11'x11' $900/mn (CAM is calculated on renewal rate) Room B is 15'x11' $1,000/mn (CAM is calculated on renewal rate) Room C &D connected together 22'x11' $1,600/ mn (CAM is calculated on renewal rate)
- Rate includes utilities, building services and property expenses
- 1 Private Office
- Can be combined with additional space(s) for up to 1,798 SF of adjacent space
- Fully Built-Out as Standard Office
- Space is in Excellent Condition
| Space | Size | Term | Rental Rate | Space Use | Build-Out | Available |
| 1st Floor, Ste 1303 | 1,200 SF | Negotiable | $34.20 CAD/SF/YR $2.85 CAD/SF/MO $41,035 CAD/YR $3,420 CAD/MO | Office/Retail | Full Build-Out | Now |
| 1st Floor, Ste A | 154 SF | Negotiable | $95.75 CAD/SF/YR $7.98 CAD/SF/MO $14,745 CAD/YR $1,229 CAD/MO | Office/Retail | Full Build-Out | Now |
| 1st Floor, Ste B | 180 SF | Negotiable | $95.75 CAD/SF/YR $7.98 CAD/SF/MO $17,235 CAD/YR $1,436 CAD/MO | Office/Retail | Full Build-Out | Now |
| 1st Floor, Ste C-D | 264 SF | Negotiable | $95.75 CAD/SF/YR $7.98 CAD/SF/MO $25,278 CAD/YR $2,106 CAD/MO | Office/Retail | Full Build-Out | Now |
1st Floor, Ste 1303
| Size |
| 1,200 SF |
| Term |
| Negotiable |
| Rental Rate |
| $34.20 CAD/SF/YR $2.85 CAD/SF/MO $41,035 CAD/YR $3,420 CAD/MO |
| Space Use |
| Office/Retail |
| Build-Out |
| Full Build-Out |
| Available |
| Now |
1st Floor, Ste A
| Size |
| 154 SF |
| Term |
| Negotiable |
| Rental Rate |
| $95.75 CAD/SF/YR $7.98 CAD/SF/MO $14,745 CAD/YR $1,229 CAD/MO |
| Space Use |
| Office/Retail |
| Build-Out |
| Full Build-Out |
| Available |
| Now |
1st Floor, Ste B
| Size |
| 180 SF |
| Term |
| Negotiable |
| Rental Rate |
| $95.75 CAD/SF/YR $7.98 CAD/SF/MO $17,235 CAD/YR $1,436 CAD/MO |
| Space Use |
| Office/Retail |
| Build-Out |
| Full Build-Out |
| Available |
| Now |
1st Floor, Ste C-D
| Size |
| 264 SF |
| Term |
| Negotiable |
| Rental Rate |
| $95.75 CAD/SF/YR $7.98 CAD/SF/MO $25,278 CAD/YR $2,106 CAD/MO |
| Space Use |
| Office/Retail |
| Build-Out |
| Full Build-Out |
| Available |
| Now |
1st Floor, Ste 1303
| Size | 1,200 SF |
| Term | Negotiable |
| Rental Rate | $34.20 CAD/SF/YR |
| Space Use | Office/Retail |
| Build-Out | Full Build-Out |
| Available | Now |
Room A is 11'x11', room B 15'x11', room C &D connected together so it is 22'x11 We can coshare the rent and office can be cosharing space. The price will be given upon request.
- Lease rate does not include utilities, property expenses or building services
- Fully Built-Out as Professional Services Office
- 3 Private Offices
- Space is in Excellent Condition
- Can be combined with additional space(s) for up to 1,798 SF of adjacent space
1st Floor, Ste A
| Size | 154 SF |
| Term | Negotiable |
| Rental Rate | $95.75 CAD/SF/YR |
| Space Use | Office/Retail |
| Build-Out | Full Build-Out |
| Available | Now |
Work Office like at home. Large Kitchen. Custom Built. Bright Lighting. Custom Trim Moldings throughout office. Room A is 11'x11', Room B 15'x11', room C &D connected together so it is 22'x11 Cosharing Pricing below Room A is 11'x11' $900/mn (CAM is calculated on renewal rate) Room B is 15'x11' $1,000/mn (CAM is calculated on renewal rate) Room C &D connected together 22'x11' $1,600/ mn (CAM is calculated on renewal rate)
- Rate includes utilities, building services and property expenses
- Fully Built-Out as Standard Office
- Office intensive layout
- Can be combined with additional space(s) for up to 1,798 SF of adjacent space
1st Floor, Ste B
| Size | 180 SF |
| Term | Negotiable |
| Rental Rate | $95.75 CAD/SF/YR |
| Space Use | Office/Retail |
| Build-Out | Full Build-Out |
| Available | Now |
Work Office like at home. Large Kitchen. Custom Built. Bright Lighting. Custom Trim Moldings throughout office. Room A is 11'x11', Room B 15'x11', room C &D connected together so it is 22'x11 Cosharing Pricing below Room A is 11'x11' $900/mn (CAM is calculated on renewal rate) Room B is 15'x11' $1,000/mn (CAM is calculated on renewal rate) Room C &D connected together 22'x11' $1,600/ mn (CAM is calculated on renewal rate)
- Rate includes utilities, building services and property expenses
- Fully Built-Out as Standard Office
- Office intensive layout
- Can be combined with additional space(s) for up to 1,798 SF of adjacent space
1st Floor, Ste C-D
| Size | 264 SF |
| Term | Negotiable |
| Rental Rate | $95.75 CAD/SF/YR |
| Space Use | Office/Retail |
| Build-Out | Full Build-Out |
| Available | Now |
Work Office like at home. Large Kitchen. Custom Built. Bright Lighting. Custom Trim Moldings throughout office. Room A is 11'x11', Room B 15'x11', room C &D connected together so it is 22'x11 Cosharing Pricing below Room A is 11'x11' $900/mn (CAM is calculated on renewal rate) Room B is 15'x11' $1,000/mn (CAM is calculated on renewal rate) Room C &D connected together 22'x11' $1,600/ mn (CAM is calculated on renewal rate)
- Rate includes utilities, building services and property expenses
- Fully Built-Out as Standard Office
- 1 Private Office
- Space is in Excellent Condition
- Can be combined with additional space(s) for up to 1,798 SF of adjacent space
Property Overview
This modern office condominium is available for lease in a well-maintained professional complex in Pearland, Texas. Built in 2021, the unit offers approximately 1,200 square feet of efficient office space suitable for a variety of professional uses, including medical, accounting, insurance, legal, real estate, and general office. The suite includes three (3) assigned parking spaces and is located in a secure building with 24-hour access and onsite property management. A staffed reception area enhances the professional setting and provides a welcoming environment for clients and visitors. Interior features include high-speed internet (Wi-Fi), a kitchen/break area, and a private shower, allowing flexibility for extended business hours. A security system is in place for added safety and peace of mind. The property is conveniently located near Highway 288, offering excellent access to surrounding retail, dining, and residential areas. Room A is 11'x11', room B 15'x11', room C &D connected together so it is 22'x11 We can coshare the rent and office can be cosharing space. The price will be given upon request.
- 24 Hour Access
- Reception
- Central Heating
- Natural Light
- Drop Ceiling
- Wi-Fi
- Air Conditioning
Property Facts
Presented by
Suite 1303 Bldg 13 | 2743 Smith Ranch Rd
Hmm, there seems to have been an error sending your message. Please try again.
Thanks! Your message was sent.


