Your email has been sent.
Ten Mile Crossing Building 2760 W Excursion Dr 11,571 - 41,308 SF of 4-Star Office Space Available in Meridian, ID 83642



Sublease Highlights
- Furniture available. On site cafeteria and auditorium amenities. Full or partial floors available.
All Available Spaces(2)
Display Rental Rate as
- Space
- Size
- Term
- Rental Rate
- Space Use
- Build-Out
- Available
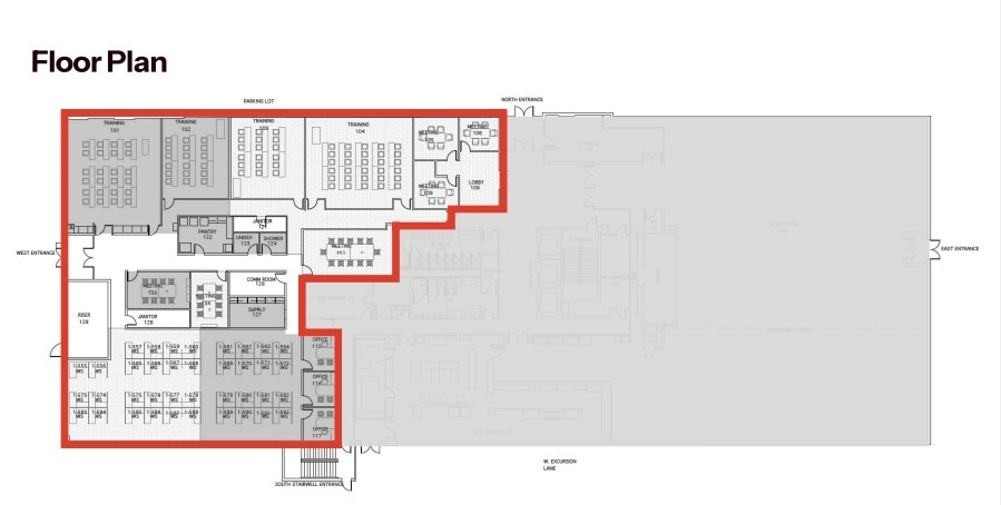
Initial term of original lease is through February 2031. Ask about flexible or shorter-term sublease options. Class A Turnkey office ready for immediate occupancy. Abundant on-site parking. Building completed in April 2021. Includes furniture at no cost to new occupant. Reach out to agent for furniture list. Prime location just off 1-84 at the Ten Mile Interchange. Full or partial floor available. On-site cafeteria on first floor
- Sublease space available from current tenant
- Fully Built-Out as Standard Office
- Fits 29 - 93 People
- Lease rate does not include utilities, property expenses or building services
- Mostly Open Floor Plan Layout
Initial term of original lease is through February 2031. Ask about flexible or shorter-term sublease options. Class A Turnkey office ready for immediate occupancy. Abundant on-site parking. Building completed in April 2021. Includes furniture at no cost to new occupant. Reach out to agent for furniture list. Prime location just off 1-84 at the Ten Mile Interchange. Full or partial floor available. On-site cafeteria on first floor
- Sublease space available from current tenant
- Fully Built-Out as Standard Office
- Fits 35 - 238 People
- Lease rate does not include utilities, property expenses or building services
- Mostly Open Floor Plan Layout
| Space | Size | Term | Rental Rate | Space Use | Build-Out | Available |
| 1st Floor, Ste 101 | 11,571 SF | Feb 2031 | $30.15 CAD/SF/YR $2.51 CAD/SF/MO $348,854 CAD/YR $29,071 CAD/MO | Office | Full Build-Out | Now |
| 2nd Floor | 14,000-29,737 SF | Feb 2031 | $30.15 CAD/SF/YR $2.51 CAD/SF/MO $896,541 CAD/YR $74,712 CAD/MO | Office | Full Build-Out | Now |
1st Floor, Ste 101
| Size |
| 11,571 SF |
| Term |
| Feb 2031 |
| Rental Rate |
| $30.15 CAD/SF/YR $2.51 CAD/SF/MO $348,854 CAD/YR $29,071 CAD/MO |
| Space Use |
| Office |
| Build-Out |
| Full Build-Out |
| Available |
| Now |
2nd Floor
| Size |
| 14,000-29,737 SF |
| Term |
| Feb 2031 |
| Rental Rate |
| $30.15 CAD/SF/YR $2.51 CAD/SF/MO $896,541 CAD/YR $74,712 CAD/MO |
| Space Use |
| Office |
| Build-Out |
| Full Build-Out |
| Available |
| Now |
1st Floor, Ste 101
| Size | 11,571 SF |
| Term | Feb 2031 |
| Rental Rate | $30.15 CAD/SF/YR |
| Space Use | Office |
| Build-Out | Full Build-Out |
| Available | Now |
Initial term of original lease is through February 2031. Ask about flexible or shorter-term sublease options. Class A Turnkey office ready for immediate occupancy. Abundant on-site parking. Building completed in April 2021. Includes furniture at no cost to new occupant. Reach out to agent for furniture list. Prime location just off 1-84 at the Ten Mile Interchange. Full or partial floor available. On-site cafeteria on first floor
- Sublease space available from current tenant
- Lease rate does not include utilities, property expenses or building services
- Fully Built-Out as Standard Office
- Mostly Open Floor Plan Layout
- Fits 29 - 93 People
2nd Floor
| Size | 14,000-29,737 SF |
| Term | Feb 2031 |
| Rental Rate | $30.15 CAD/SF/YR |
| Space Use | Office |
| Build-Out | Full Build-Out |
| Available | Now |
Initial term of original lease is through February 2031. Ask about flexible or shorter-term sublease options. Class A Turnkey office ready for immediate occupancy. Abundant on-site parking. Building completed in April 2021. Includes furniture at no cost to new occupant. Reach out to agent for furniture list. Prime location just off 1-84 at the Ten Mile Interchange. Full or partial floor available. On-site cafeteria on first floor
- Sublease space available from current tenant
- Lease rate does not include utilities, property expenses or building services
- Fully Built-Out as Standard Office
- Mostly Open Floor Plan Layout
- Fits 35 - 238 People
Property Overview
Sublease opportunity in the 10 Mile office park. 11,500 available on the first floor in a class room layout. 2nd floor wide open layout with some private offices. Furniture can be included. Amenities in the building include a cafeteria and auditorium. Direct lease with landlord possible. Contact agents for showings.
- Wheelchair Accessible
- Air Conditioning
Property Facts
Select Tenants
- Floor
- Tenant Name
- Industry
- 3rd
- Berkley North Pacific
- Finance and Insurance
- 4th
- J-U-B Engineers
- Professional, Scientific, and Technical Services
Presented by
Ten Mile Crossing Building | 2760 W Excursion Dr
Hmm, there seems to have been an error sending your message. Please try again.
Thanks! Your message was sent.




