Log In/Sign Up
Your email has been sent.
Highlights
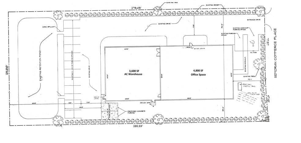
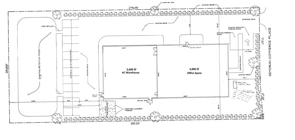
- The space includes 8,581 SF available with 12'-14' clear height, one 7'x12' grade-level door.
Features
Clear Height
14’
Drive In Bays
1
Standard Parking Spaces
16
All Available Space(1)
Display Rental Rate as
- Space
- Size
- Term
- Rental Rate
- Space Use
- Build-Out
- Available
The space includes 8,581 SF available with 12'-14' clear height, one 7'x12' grade-level door.
- Lease rate does not include utilities, property expenses or building services
- 1 Drive Bay
- Includes 4,800 SF of dedicated office space
| Space | Size | Term | Rental Rate | Space Use | Build-Out | Available |
| 1st Floor | 8,581 SF | Negotiable | $22.16 CAD/SF/YR $1.85 CAD/SF/MO $190,150 CAD/YR $15,846 CAD/MO | Industrial | Full Build-Out | 60 Days |
1st Floor
| Size |
| 8,581 SF |
| Term |
| Negotiable |
| Rental Rate |
| $22.16 CAD/SF/YR $1.85 CAD/SF/MO $190,150 CAD/YR $15,846 CAD/MO |
| Space Use |
| Industrial |
| Build-Out |
| Full Build-Out |
| Available |
| 60 Days |
1st Floor
| Size | 8,581 SF |
| Term | Negotiable |
| Rental Rate | $22.16 CAD/SF/YR |
| Space Use | Industrial |
| Build-Out | Full Build-Out |
| Available | 60 Days |
The space includes 8,581 SF available with 12'-14' clear height, one 7'x12' grade-level door.
- Lease rate does not include utilities, property expenses or building services
- Includes 4,800 SF of dedicated office space
- 1 Drive Bay
Property Overview
The property was built 1986 and is zoned I-L
Warehouse Facility Facts
Building Size
8,581 SF
Lot Size
0.81 AC
Year Built
1986
Construction
Masonry
Water
City
Sewer
City
Power Supply
Amps: 1,200 Phase: 3
Zoning
I-L - Zoned Industrial 1 Commercial Property and warehouse
Select Tenants
- Floor
- Tenant Name
- Industry
- 1st
- Secret Parties
- Retailer
1 1
Fairly walkable
40/100
Very drivable
80/100
Limited public transit
30/100
Somewhat bikeable
20/100
1 of 16
Videos
Matterport 3D Exterior
Matterport 3D Tour
Photos
Street View
Street
Map
1 of 1
Presented by
278 Semoran Commerce Pl
Already a member? Log In
Hmm, there seems to have been an error sending your message. Please try again.
Thanks! Your message was sent.



