Log In/Sign Up
Your email has been sent.
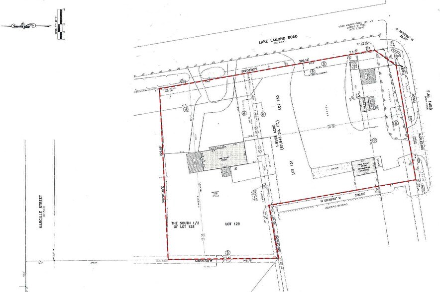
2790 Farm to Market Road 1488
Conroe, TX 77384
Pad Site · Land For Sale
·
1.56 AC


Investment Highlights
- 1.56 Acre Pad Site Available on a Hard-Corner for $25 PSF
- FM 1488 experiences a daily traffic volume of more than 50,000 vehicles
- Detention is required
- Located near I-45, H-E-B, Home Depot, Costco Magnolia, The Woodlands and Conroe
- Ideal development as a car wash, quick-service restaurant, or medical facility
Property Facts
| Sale Type | Investment | Property Subtype | Commercial |
| No. Lots | 1 | Proposed Use | Commercial |
| Property Type | Land | Total Lot Size | 1.56 AC |
| Sale Type | Investment |
| No. Lots | 1 |
| Property Type | Land |
| Property Subtype | Commercial |
| Proposed Use | Commercial |
| Total Lot Size | 1.56 AC |
1 Lot Available
Lot
| Lot Size | 1.56 AC |
| Lot Size | 1.56 AC |
Hard-corner pad site, Price: $25 PSF
1 of 3
Videos
Matterport 3D Exterior
Matterport 3D Tour
Photos
Street View
Street
Map
