Log In/Sign Up
Your email has been sent.
Highlights
- Level land parcel along Busy Route 83 retail corridor
- 30,000 vpd counts
- Zoned for commercial use
LOT Available
Display Rental Rate as
| Rental Rate |
|
Lot Size | 0.55 AC |
| Lease Term | Negotiable |
| Rental Rate | |
| Lease Term | Negotiable |
| Lot Size | 0.55 AC |
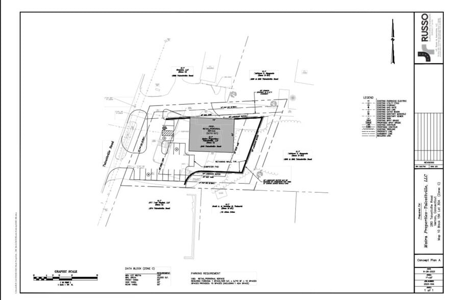
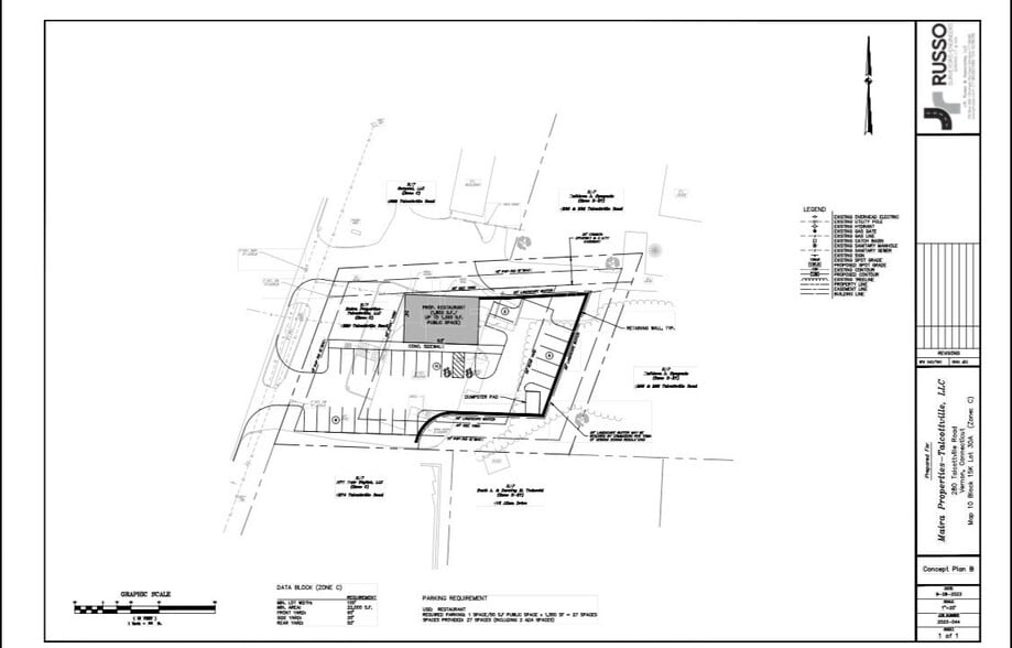
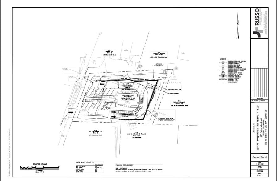
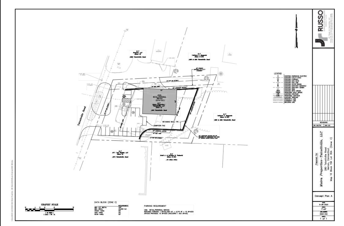
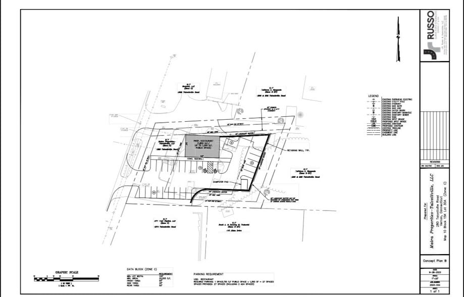
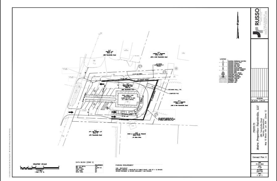
Level land lot zoned for commerical use as a restaurant or retail with a drive thru and surface parking lot.
Property Overview
Level land lot zoned for commerical use as a restaurant or retail with a drive thru and surface parking lot.
Property Facts
1 1
Somewhat walkable
30/100
Exceptionally drivable
100/100
Limited public transit
30/100
Somewhat bikeable
30/100
1 of 4
Videos
Matterport 3D Exterior
Matterport 3D Tour
Photos
Street View
Street
Map
1 of 1
Presented by
280 Talcottville Rd
Already a member? Log In
Hmm, there seems to have been an error sending your message. Please try again.
Thanks! Your message was sent.



