Your email has been sent.
Highlights
- Great location
- Bright, open layout
- Prime downtown Millburn location
- Free standing building
- B4 Business Zone
Space Availability (1)
Display Rental Rate as
- Space
- Size
- Term
- Rental Rate
- Rent Type
| Space | Size | Term | Rental Rate | Rent Type | ||
| 1st Floor | 1,446 SF | Negotiable | $31.76 CAD/SF/YR $2.65 CAD/SF/MO $45,922 CAD/YR $3,827 CAD/MO | Modified Gross |
1st Floor
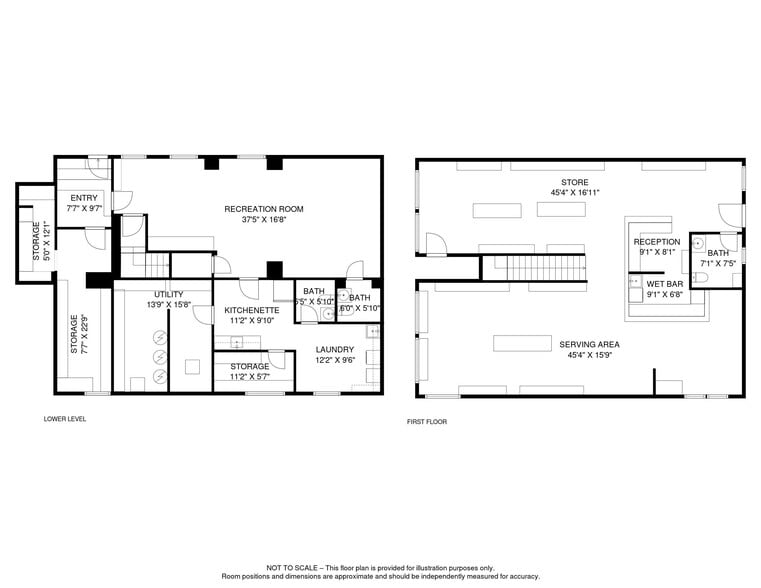
Lower level sqft is 1,027. 1st level is 1,446 sqft.
- Listed rate may not include certain utilities, building services and property expenses
- Hardwood Floors
- Prime downtown Millburn location
- Free-standing building
- B4 Business Zone
- Flexible floor plan
- Accessibility
- Additional basement space
Rent Types
The rent amount and type that the tenant (lessee) will be responsible to pay to the landlord (lessor) throughout the lease term is negotiated prior to both parties signing a lease agreement. The rent type will vary depending upon the services provided. For example, triple net rents are typically lower than full service rents due to additional expenses the tenant is required to pay in addition to the base rent. Contact the listing broker for a full understanding of any associated costs or additional expenses for each rent type.
1. Full Service: A rental rate that includes normal building standard services as provided by the landlord within a base year rental.
2. Double Net (NN): Tenant pays for only two of the building expenses; the landlord and tenant determine the specific expenses prior to signing the lease agreement.
3. Triple Net (NNN): A lease in which the tenant is responsible for all expenses associated with their proportional share of occupancy of the building.
4. Modified Gross: Modified Gross is a general type of lease rate where typically the tenant will be responsible for their proportional share of one or more of the expenses. The landlord will pay the remaining expenses. See the below list of common Modified Gross rental rate structures: 4. Plus All Utilities: A type of Modified Gross Lease where the tenant is responsible for their proportional share of utilities in addition to the rent. 4. Plus Cleaning: A type of Modified Gross Lease where the tenant is responsible for their proportional share of cleaning in addition to the rent. 4. Plus Electric: A type of Modified Gross Lease where the tenant is responsible for their proportional share of the electrical cost in addition to the rent. 4. Plus Electric & Cleaning: A type of Modified Gross Lease where the tenant is responsible for their proportional share of the electrical and cleaning cost in addition to the rent. 4. Plus Utilities and Char: A type of Modified Gross Lease where the tenant is responsible for their proportional share of the utilities and cleaning cost in addition to the rent. 4. Industrial Gross: A type of Modified Gross lease where the tenant pays one or more of the expenses in addition to the rent. The landlord and tenant determine these prior to signing the lease agreement.
5. Tenant Electric: The landlord pays for all services and the tenant is responsible for their usage of lights and electrical outlets in the space they occupy.
6. Negotiable or Upon Request: Used when the leasing contact does not provide the rent or service type.
7. TBD: To be determined; used for buildings for which no rent or service type is known, commonly utilized when the buildings are not yet built.
Select Tenants at 281 Essex St, Millburn, NJ 07041
- Tenant
- Description
- US Locations
- Reach
- The Book House
- -
- 1
- -
| Tenant | Description | US Locations | Reach |
| The Book House | - | 1 | - |
Property Facts
| Total Space Available | 1,446 SF | Gross Leasable Area | 2,473 SF |
| Property Type | Retail | Year Built | 1900 |
| Total Space Available | 1,446 SF |
| Property Type | Retail |
| Gross Leasable Area | 2,473 SF |
| Year Built | 1900 |
About the Property
Discover an exceptional retail leasing opportunity at 281 Essex Street, a free-standing building in the heart of downtown Millburn's B4 Business Zone. This expansive and versatile space offers a bright, open layout with large windows that flood the interior with natural light and maximize visibility. The property also includes additional basement space, ideal for storage, inventory, or back-office use, allowing for maximum functionality and flexibility. Situated in a prime downtown location, this property offers outstanding business exposure and accessibility. The B4 zoning allows for a wide variety of permitted uses, including retail shops and boutiques, cafes, personal service establishments such as salons or fitness studios, real estate offices, and art galleries or showrooms. With its combination of strong visibility, and free-standing presence, 281 Essex Street is the perfect setting to grow or establish your business in one of Millburn's most desirable commercial corridors!
Nearby Major Retailers
Presented by
281 Essex St
Hmm, there seems to have been an error sending your message. Please try again.
Thanks! Your message was sent.




