Log In/Sign Up
Your email has been sent.
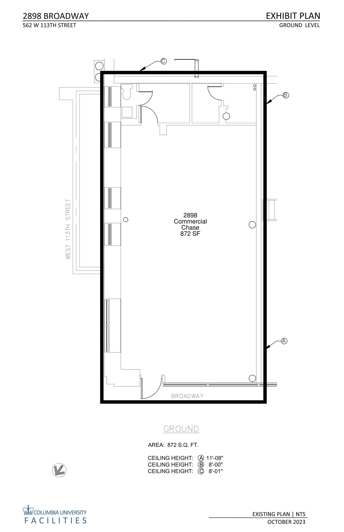
Columbia U. Corner 2898 Broadway 872 SF of Retail Space Available in New York, NY 10025

All Available Space(1)
Display Rental Rate as
- Space
- Size
- Term
- Rental Rate
- Space Use
- Build-Out
- Available
Corner of 113th and Broadway; formerly Chase ATM
- Listed rate may not include certain utilities, building services and property expenses
- Finished Ceilings: 11’
- Partially Built-Out as a Bank
- Corner exposure
| Space | Size | Term | Rental Rate | Space Use | Build-Out | Available |
| 1st Floor, Ste 2898 Broadway | 872 SF | Negotiable | Upon Request Upon Request Upon Request Upon Request | Retail | Partial Build-Out | Now |
1st Floor, Ste 2898 Broadway
| Size |
| 872 SF |
| Term |
| Negotiable |
| Rental Rate |
| Upon Request Upon Request Upon Request Upon Request |
| Space Use |
| Retail |
| Build-Out |
| Partial Build-Out |
| Available |
| Now |
1 of 1
Videos
Matterport 3D Exterior
Matterport 3D Tour
Photos
Street View
Street
Map
1st Floor, Ste 2898 Broadway
| Size | 872 SF |
| Term | Negotiable |
| Rental Rate | Upon Request |
| Space Use | Retail |
| Build-Out | Partial Build-Out |
| Available | Now |
Corner of 113th and Broadway; formerly Chase ATM
- Listed rate may not include certain utilities, building services and property expenses
- Partially Built-Out as a Bank
- Finished Ceilings: 11’
- Corner exposure
Property Facts
| Total Space Available | 872 SF | Apartment Style | Mid-Rise |
| No. Units | 217 | Building Size | 91,116 SF |
| Property Type | Multifamily | Year Built | 1909 |
| Property Subtype | Dormitory |
| Total Space Available | 872 SF |
| No. Units | 217 |
| Property Type | Multifamily |
| Property Subtype | Dormitory |
| Apartment Style | Mid-Rise |
| Building Size | 91,116 SF |
| Year Built | 1909 |
Exceptionally walkable
100/100
Somewhat drivable
30/100
Exceptional public transit
100/100
Exceptionally bikeable
90/100
Nearby Major Retailers
1 of 2
Videos
Matterport 3D Exterior
Matterport 3D Tour
Photos
Street View
Street
Map
Presented by
Columbia U. Corner | 2898 Broadway
Already a member? Log In
Hmm, there seems to have been an error sending your message. Please try again.
Thanks! Your message was sent.


