Your email has been sent.
2933 Grand Ave 927 SF of Office/Retail Space Available in Los Olivos, CA 93441



Highlights
- Premier Location: Situated on Grand Avenue
- Modern Construction: Built 1998 and Well-Cared For
- Tourist Destination: Wineries, Artisanal Shops
- Flexible Use: Retail, Office, and Hospitality Uses
- Customer Convenience: On-Site Parking Lot
Space Availability (1)
Display Rental Rate as
- Space
- Size
- Term
- Rental Rate
- Rent Type
| Space | Size | Term | Rental Rate | Rent Type | ||
| 2nd Floor, Ste D, E | 927 SF | 2 Years | $39.37 CAD/SF/YR $3.28 CAD/SF/MO $36,494 CAD/YR $3,041 CAD/MO | Modified Gross |
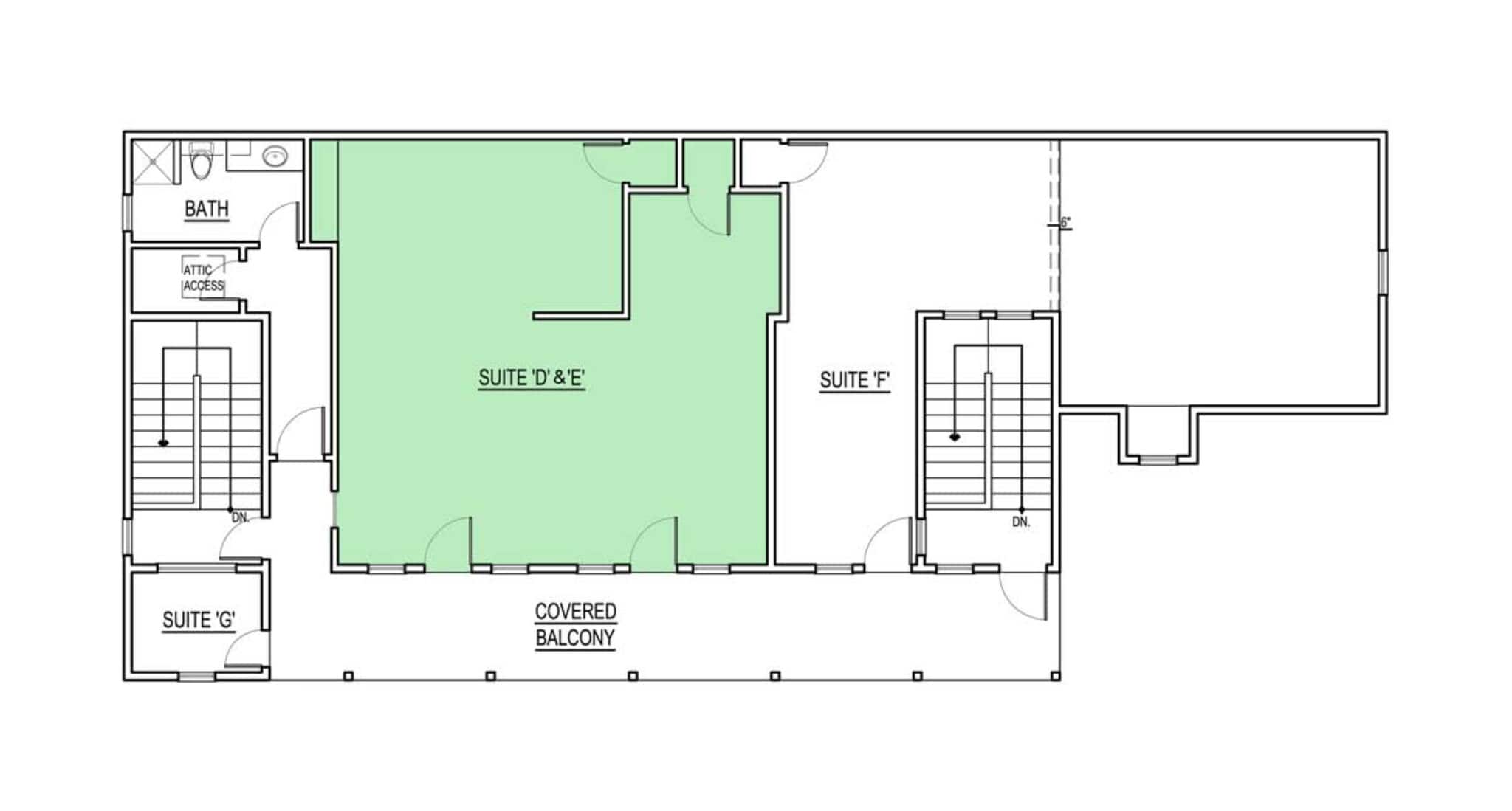
2nd Floor, Ste D, E
Nestled in a charming and beautifully maintained building in the heart of Los Olivos, this versatile upstairs suite offers an inspiring space ideal for office or retail use. The suite features wood flooring, recessed lighting, and a skylight that, together with abundant natural light, creates a bright, inviting atmosphere throughout the day. Step out onto your balcony and enjoy peaceful views of mature trees—a serene backdrop perfect for breaks or casual meetings. Thoughtfully designed, the suite includes ample storage with multiple closets and built-in shelving, offering both functionality and style. With its warm natural finishes and flexible layout, this unique suite is perfect for creative professionals, boutique retail, or anyone seeking a quiet yet connected location in one of Santa Barbara wine country’s most desirable towns.
- Listed rate may not include certain utilities, building services and property expenses
- Mostly Open Floor Plan Layout
- Fits 3 - 8 People
- Space is in Excellent Condition
- Central Air and Heating
- Balcony
- Natural Light
- Shower Facilities
- Open-Plan
- Hardwood Floors
- Premier Location: Situated on Grand Avenue
- Flexible Use: Retail, Office, and Hospitality Uses
- Modern Construction: Built 1998 and Well-Cared For
- Customer Convenience: On-Site Parking Lot
- Tourist Destination: Wineries, Artisanal Shops
Rent Types
The rent amount and type that the tenant (lessee) will be responsible to pay to the landlord (lessor) throughout the lease term is negotiated prior to both parties signing a lease agreement. The rent type will vary depending upon the services provided. For example, triple net rents are typically lower than full service rents due to additional expenses the tenant is required to pay in addition to the base rent. Contact the listing broker for a full understanding of any associated costs or additional expenses for each rent type.
1. Full Service: A rental rate that includes normal building standard services as provided by the landlord within a base year rental.
2. Double Net (NN): Tenant pays for only two of the building expenses; the landlord and tenant determine the specific expenses prior to signing the lease agreement.
3. Triple Net (NNN): A lease in which the tenant is responsible for all expenses associated with their proportional share of occupancy of the building.
4. Modified Gross: Modified Gross is a general type of lease rate where typically the tenant will be responsible for their proportional share of one or more of the expenses. The landlord will pay the remaining expenses. See the below list of common Modified Gross rental rate structures: 4. Plus All Utilities: A type of Modified Gross Lease where the tenant is responsible for their proportional share of utilities in addition to the rent. 4. Plus Cleaning: A type of Modified Gross Lease where the tenant is responsible for their proportional share of cleaning in addition to the rent. 4. Plus Electric: A type of Modified Gross Lease where the tenant is responsible for their proportional share of the electrical cost in addition to the rent. 4. Plus Electric & Cleaning: A type of Modified Gross Lease where the tenant is responsible for their proportional share of the electrical and cleaning cost in addition to the rent. 4. Plus Utilities and Char: A type of Modified Gross Lease where the tenant is responsible for their proportional share of the utilities and cleaning cost in addition to the rent. 4. Industrial Gross: A type of Modified Gross lease where the tenant pays one or more of the expenses in addition to the rent. The landlord and tenant determine these prior to signing the lease agreement.
5. Tenant Electric: The landlord pays for all services and the tenant is responsible for their usage of lights and electrical outlets in the space they occupy.
6. Negotiable or Upon Request: Used when the leasing contact does not provide the rent or service type.
7. TBD: To be determined; used for buildings for which no rent or service type is known, commonly utilized when the buildings are not yet built.
Property Facts
| Total Space Available | 927 SF | Year Built | 1998 |
| Property Type | Retail | Parking Ratio | 0.39/1,000 SF |
| Gross Leasable Area | 7,589 SF |
| Total Space Available | 927 SF |
| Property Type | Retail |
| Gross Leasable Area | 7,589 SF |
| Year Built | 1998 |
| Parking Ratio | 0.39/1,000 SF |
About the Property
Positioned in the heart of downtown Los Olivos, 2933 Grand Avenue is a well-maintained, ±4801-square-foot commercial building offering strong visibility and a prime location in one of Santa Barbara County’s most sought-after wine destinations.? Constructed in 1998, this multi-tenant property is ideal for retail shops, wine tasting rooms, boutique businesses, or professional offices.? With flexible C-2 zoning, the building accommodates a wide variety of commercial uses and is currently configured to support multiple tenants.? On-site surface parking enhances accessibility, while the walkable neighborhood ensures consistent foot traffic.?
- Courtyard
- Balcony
Presented by
2933 Grand Ave
Hmm, there seems to have been an error sending your message. Please try again.
Thanks! Your message was sent.



