Your email has been sent.
Park Highlights
- 100% HVAC Warehouse
Park Facts
| Total Space Available | 133,573 SF | Park Type | Industrial Park |
| Total Space Available | 133,573 SF |
| Park Type | Industrial Park |
All Available Spaces(5)
Display Rental Rate as
- Space
- Size
- Term
- Rental Rate
- Space Use
- Build-Out
- Available
• 10,800 SF total • 4,861 SF office space • 135’ building depth • 24’ clear height • Two (2) dock high doors • Heavy power • 125’ rear load truck court depth • Abundant parking • Class A industrial park zoned “I” light industrial • Easy access to retail, restaurants and major thoroughfares such as I35W, Loop 820 & TEXpress toll lanes • Triple Freeport Tax Exemption
| Space | Size | Term | Rental Rate | Space Use | Build-Out | Available |
| 1st Floor - 249 | 10,800 SF | Negotiable | Upon Request Upon Request Upon Request Upon Request | Industrial | - | Now |
2951 Northern Cross Blvd - 1st Floor - 249
- Space
- Size
- Term
- Rental Rate
- Space Use
- Build-Out
- Available
SUITE HIGHLIGHTS • Available: 38,400 SF • 2,209 SF office space • 160’ building depth • 24’ clear height • Eight (8) dock high doors • 125’ truck court • Abundant parking • Class A industrial park zoned “I” light industrial • Easy access to retail, restaurants and major thoroughfares such as I35W, Loop 820 & TEXpress toll lanes • Triple freeport tax exemption • 100% HVAC’d warehouse • 3-phase heavy power • Available 11/01/2026
- 100% HVAC Warehouse
• Available: 19,200 SF • 979 SF office space • 160’ building depth • 24’ clear height • Four (4) dock high doors • 125’ truck court • Abundant parking • Class A industrial park zoned “I” light industrial • Easy access to retail, restaurants and major thoroughfares such as I35W, Loop 820 & TEXpress toll lanes • Triple freeport tax exemption • 100% HVAC’d warehouse • 3-phase heavy power • Available 11/01/2026
- 100% HVAC Warehouse
SUITE HIGHLIGHTS • Available: 54,400 SF • 8,804 SF office space • 160’ building depth • 24’ clear height • Nine (9) dock high doors • One (1) ramped door • 125’ truck court • Abundant parking • Class A industrial park zoned “I” light industrial • Easy access to retail, restaurants and major thoroughfares such as I35W, Loop 820 & TEXpress toll lanes • Triple freeport tax exemption • 100% HVAC’d warehouse • 3-phase heavy power • Available 11/01/2026
- 100% HVAC Warehouse
| Space | Size | Term | Rental Rate | Space Use | Build-Out | Available |
| 1st Floor - 301 | 38,400 SF | Negotiable | Upon Request Upon Request Upon Request Upon Request | Industrial | Shell Space | 2026-11-01 |
| 1st Floor - 321 | 19,200 SF | Negotiable | Upon Request Upon Request Upon Request Upon Request | Industrial | - | 2026-11-01 |
| 1st Floor - 361 | 54,400 SF | Negotiable | Upon Request Upon Request Upon Request Upon Request | Industrial | Shell Space | 2026-11-01 |
3001 Northern Cross Blvd - 1st Floor - 301
3001 Northern Cross Blvd - 1st Floor - 321
3001 Northern Cross Blvd - 1st Floor - 361
- Space
- Size
- Term
- Rental Rate
- Space Use
- Build-Out
- Available
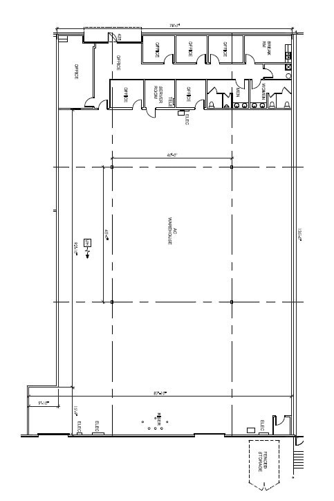
• AVAILABLE: 10,773 SF • 2,024 +/- office space • 135’ building depth • 24’ clear height • Two (2) dock high doors • Heavy power • 100% HVAC warehouse • 40’ X 45” column spacing • 125’ rear load truck court depth • Abundant parking • Class A industrial park zoned “I” light industrial • Easy access to retail, restaurants and major thoroughfares such as I35W, Loop 820 & TEXpress toll lanes • Triple Freeport Tax Exemption
| Space | Size | Term | Rental Rate | Space Use | Build-Out | Available |
| 1st Floor - 425 | 10,773 SF | Negotiable | Upon Request Upon Request Upon Request Upon Request | Industrial | - | 2026-08-01 |
3051 Northern Cross Blvd - 1st Floor - 425
2951 Northern Cross Blvd - 1st Floor - 249
| Size | 10,800 SF |
| Term | Negotiable |
| Rental Rate | Upon Request |
| Space Use | Industrial |
| Build-Out | - |
| Available | Now |
• 10,800 SF total • 4,861 SF office space • 135’ building depth • 24’ clear height • Two (2) dock high doors • Heavy power • 125’ rear load truck court depth • Abundant parking • Class A industrial park zoned “I” light industrial • Easy access to retail, restaurants and major thoroughfares such as I35W, Loop 820 & TEXpress toll lanes • Triple Freeport Tax Exemption
3001 Northern Cross Blvd - 1st Floor - 301
| Size | 38,400 SF |
| Term | Negotiable |
| Rental Rate | Upon Request |
| Space Use | Industrial |
| Build-Out | Shell Space |
| Available | 2026-11-01 |
SUITE HIGHLIGHTS • Available: 38,400 SF • 2,209 SF office space • 160’ building depth • 24’ clear height • Eight (8) dock high doors • 125’ truck court • Abundant parking • Class A industrial park zoned “I” light industrial • Easy access to retail, restaurants and major thoroughfares such as I35W, Loop 820 & TEXpress toll lanes • Triple freeport tax exemption • 100% HVAC’d warehouse • 3-phase heavy power • Available 11/01/2026
- 100% HVAC Warehouse
3001 Northern Cross Blvd - 1st Floor - 321
| Size | 19,200 SF |
| Term | Negotiable |
| Rental Rate | Upon Request |
| Space Use | Industrial |
| Build-Out | - |
| Available | 2026-11-01 |
• Available: 19,200 SF • 979 SF office space • 160’ building depth • 24’ clear height • Four (4) dock high doors • 125’ truck court • Abundant parking • Class A industrial park zoned “I” light industrial • Easy access to retail, restaurants and major thoroughfares such as I35W, Loop 820 & TEXpress toll lanes • Triple freeport tax exemption • 100% HVAC’d warehouse • 3-phase heavy power • Available 11/01/2026
- 100% HVAC Warehouse
3001 Northern Cross Blvd - 1st Floor - 361
| Size | 54,400 SF |
| Term | Negotiable |
| Rental Rate | Upon Request |
| Space Use | Industrial |
| Build-Out | Shell Space |
| Available | 2026-11-01 |
SUITE HIGHLIGHTS • Available: 54,400 SF • 8,804 SF office space • 160’ building depth • 24’ clear height • Nine (9) dock high doors • One (1) ramped door • 125’ truck court • Abundant parking • Class A industrial park zoned “I” light industrial • Easy access to retail, restaurants and major thoroughfares such as I35W, Loop 820 & TEXpress toll lanes • Triple freeport tax exemption • 100% HVAC’d warehouse • 3-phase heavy power • Available 11/01/2026
- 100% HVAC Warehouse
3051 Northern Cross Blvd - 1st Floor - 425
| Size | 10,773 SF |
| Term | Negotiable |
| Rental Rate | Upon Request |
| Space Use | Industrial |
| Build-Out | - |
| Available | 2026-08-01 |
• AVAILABLE: 10,773 SF • 2,024 +/- office space • 135’ building depth • 24’ clear height • Two (2) dock high doors • Heavy power • 100% HVAC warehouse • 40’ X 45” column spacing • 125’ rear load truck court depth • Abundant parking • Class A industrial park zoned “I” light industrial • Easy access to retail, restaurants and major thoroughfares such as I35W, Loop 820 & TEXpress toll lanes • Triple Freeport Tax Exemption
Presented by
Northern Cross | Fort Worth, TX 76137
Hmm, there seems to have been an error sending your message. Please try again.
Thanks! Your message was sent.














