Log In/Sign Up
Your email has been sent.
Features
Drive In Bays
3
Standard Parking Spaces
20
All Available Space(1)
Display Rental Rate as
- Space
- Size
- Term
- Rental Rate
- Space Use
- Build-Out
- Available
Space has a 10 x 10 drive in door
- 1 Drive Bay
| Space | Size | Term | Rental Rate | Space Use | Build-Out | Available |
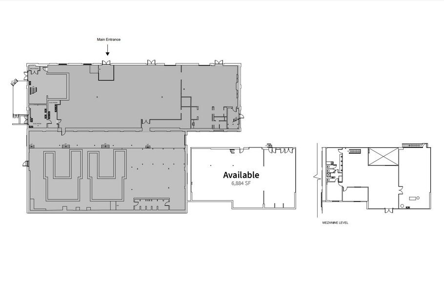
| 1st Floor | 6,884 SF | Negotiable | Upon Request Upon Request Upon Request Upon Request | Industrial | - | Now |
1st Floor
| Size |
| 6,884 SF |
| Term |
| Negotiable |
| Rental Rate |
| Upon Request Upon Request Upon Request Upon Request |
| Space Use |
| Industrial |
| Build-Out |
| - |
| Available |
| Now |
1st Floor
| Size | 6,884 SF |
| Term | Negotiable |
| Rental Rate | Upon Request |
| Space Use | Industrial |
| Build-Out | - |
| Available | Now |
Space has a 10 x 10 drive in door
- 1 Drive Bay
Property Facts
Building Size
29,000 SF
Lot Size
1.81 AC
Year Built
1899
Construction
Masonry
Zoning
C - Warehouse
1 1
Moderately walkable
70/100
Exceptionally drivable
90/100
Some public transit
50/100
Moderately bikeable
60/100
1 of 4
Videos
Matterport 3D Exterior
Matterport 3D Tour
Photos
Street View
Street
Map
1 of 1
Presented by
296 Freeport St
Already a member? Log In
Hmm, there seems to have been an error sending your message. Please try again.
Thanks! Your message was sent.



