Your email has been sent.
Highlights
- Second-Generation Medical Office Space
- High Traffic Corridor
- Turn Key
All Available Space(1)
Display Rental Rate as
- Space
- Size
- Term
- Rental Rate
- Space Use
- Build-Out
- Available
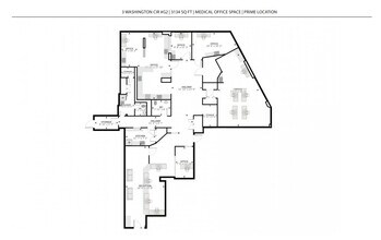
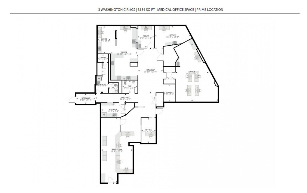
This premier second-generation medical office space at 3 Washington Circle NW offers a rare opportunity for healthcare providers to establish or expand their presence in one of Washington, DC’s most prestigious and high-traffic medical corridors. Located in the heart of Foggy Bottom, directly across from George Washington University Hospital and steps from George Washington University, this 3,134-square-foot suite is fully built out and thoughtfully designed to support a wide range of medical specialties and outpatient services. The existing configuration includes multiple exam rooms, private physician offices, a welcoming reception area, and ample administrative space—providing a true turnkey solution that significantly reduces build-out costs and move-in delays. Strategically positioned on a high-visibility circle and easily accessible via the Foggy Bottom-GWU Metro Station, numerous Metrobus lines, and major commuter routes, this location offers exceptional connectivity for both patients and staff. The building is ADA-compliant, elevator-served, and includes on-site parking, enhancing convenience and accessibility. Surrounded by a dense network of healthcare institutions, academic facilities, and professional offices, 3 Washington Circle is ideally suited for general practitioners, specialists, and group practices seeking proximity to a built-in referral base and collaborative opportunities.
- Rate includes utilities, building services and property expenses
- Mostly Open Floor Plan Layout
- 6 Private Offices
- Fully Built-Out as Standard Medical Space
- Fits 8 - 26 People
- Space is in Excellent Condition
| Space | Size | Term | Rental Rate | Space Use | Build-Out | Available |
| 1st Floor, Ste G2 | 3,134 SF | 3-10 Years | $39.64 CAD/SF/YR $3.30 CAD/SF/MO $124,236 CAD/YR $10,353 CAD/MO | Office/Medical | Full Build-Out | Now |
1st Floor, Ste G2
| Size |
| 3,134 SF |
| Term |
| 3-10 Years |
| Rental Rate |
| $39.64 CAD/SF/YR $3.30 CAD/SF/MO $124,236 CAD/YR $10,353 CAD/MO |
| Space Use |
| Office/Medical |
| Build-Out |
| Full Build-Out |
| Available |
| Now |
1st Floor, Ste G2
| Size | 3,134 SF |
| Term | 3-10 Years |
| Rental Rate | $39.64 CAD/SF/YR |
| Space Use | Office/Medical |
| Build-Out | Full Build-Out |
| Available | Now |
This premier second-generation medical office space at 3 Washington Circle NW offers a rare opportunity for healthcare providers to establish or expand their presence in one of Washington, DC’s most prestigious and high-traffic medical corridors. Located in the heart of Foggy Bottom, directly across from George Washington University Hospital and steps from George Washington University, this 3,134-square-foot suite is fully built out and thoughtfully designed to support a wide range of medical specialties and outpatient services. The existing configuration includes multiple exam rooms, private physician offices, a welcoming reception area, and ample administrative space—providing a true turnkey solution that significantly reduces build-out costs and move-in delays. Strategically positioned on a high-visibility circle and easily accessible via the Foggy Bottom-GWU Metro Station, numerous Metrobus lines, and major commuter routes, this location offers exceptional connectivity for both patients and staff. The building is ADA-compliant, elevator-served, and includes on-site parking, enhancing convenience and accessibility. Surrounded by a dense network of healthcare institutions, academic facilities, and professional offices, 3 Washington Circle is ideally suited for general practitioners, specialists, and group practices seeking proximity to a built-in referral base and collaborative opportunities.
- Rate includes utilities, building services and property expenses
- Fully Built-Out as Standard Medical Space
- Mostly Open Floor Plan Layout
- Fits 8 - 26 People
- 6 Private Offices
- Space is in Excellent Condition
Property Overview
Now available for immediate occupancy, this premier second-generation medical office space at 3 Washington Circle NW offers a rare opportunity for healthcare providers to establish or expand their presence in one of Washington, DC’s most prestigious and high-traffic medical corridors. Located in the heart of Foggy Bottom, directly across from George Washington University Hospital and steps from George Washington University, this 3,134-square-foot suite is fully built out and thoughtfully designed to support a wide range of medical specialties and outpatient services. The existing configuration includes multiple exam rooms, private physician offices, a welcoming reception area, and ample administrative space—providing a true turnkey solution that significantly reduces build-out costs and move-in delays. Strategically positioned on a high-visibility circle and easily accessible via the Foggy Bottom-GWU Metro Station, numerous Metrobus lines, and major commuter routes, this location offers exceptional connectivity for both patients and staff. The building is ADA-compliant, elevator-served, and includes on-site parking, enhancing convenience and accessibility. Surrounded by a dense network of healthcare institutions, academic facilities, and professional offices, 3 Washington Circle is ideally suited for general practitioners, specialists, and group practices seeking proximity to a built-in referral base and collaborative opportunities. With its central location, outstanding amenities, and professional infrastructure, this medical office space combines prestige, functionality, and practicality—all within walking distance to top-tier dining, retail, and lodging. Don’t miss the chance to secure a highly desirable address in one of DC’s most dynamic and medically significant neighborhoods.
- 24 Hour Access
- Concierge
- Courtyard
- Wheelchair Accessible
- Central Heating
- Air Conditioning
Property Facts
Select Tenants
- Floor
- Tenant Name
- Industry
- 1st
- Alliance Physical Therapy
- Health Care and Social Assistance
- 2nd
- Center-Vulvovaginal Disorders
- Health Care and Social Assistance
- 2nd
- Eye Physicians And Surgeons At Washington Circle
- Health Care and Social Assistance
- 2nd
- Frog Point Therapy
- Health Care and Social Assistance
- 3rd
- K Street Dental
- Health Care and Social Assistance
- 2nd
- Nerve Bone & Joint Institute
- Health Care and Social Assistance
- 3rd
- Orbach Orthodontics
- Health Care and Social Assistance
- 4th
- Summit Ortrhopedics Therapy
- Health Care and Social Assistance
- 1st
- Washington Metro Dental
- Health Care and Social Assistance
- 1st
- Yousefi Chiro Care
- -
Presented by
3 Washington Cir NW
Hmm, there seems to have been an error sending your message. Please try again.
Thanks! Your message was sent.






