Log In/Sign Up
Your email has been sent.
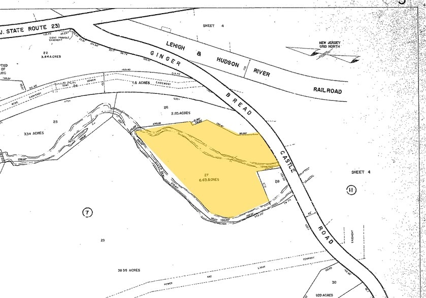
30 Gingerbread Castle Rd 6,000 SF 50% Leased Retail Building Hamburg, NJ 07419 $2,084,550 CAD ($347.43 CAD/SF)



Investment Highlights
- The opportunities are endless!! May be used for retail, industrial, venue, etc. Lots of parking. Four wood burning fireplaces.
Property Facts
Sale Type
Investment or Owner User
Property Type
Retail
Property Subtype
Building Size
6,000 SF
Building Class
C
Year Built
1928
Price
$2,084,550 CAD
Price Per SF
$347.43 CAD
Percent Leased
50%
Tenancy
Multiple
Building Height
2 Stories
Building FAR
0.02
Lot Size
8.00 AC
Zoning
Commercial - Commercial building Plus parking 2.5 acres
Parking
30 Spaces (5 Spaces per 1,000 SF Leased)
Space Availability
- Space
- Size
- Space Use
- Position
- Available
Once a restaurant and venue. previously mason showroom.
| Space | Size | Space Use | Position | Available |
| 1st Floor | 6,000 SF | Retail | - | Now |
1st Floor
| Size |
| 6,000 SF |
| Space Use |
| Retail |
| Position |
| - |
| Available |
| Now |
1st Floor
| Size | 6,000 SF |
| Space Use | Retail |
| Position | - |
| Available | Now |
Once a restaurant and venue. previously mason showroom.
Somewhat walkable
30/100
Very drivable
80/100
Somewhat bikeable
30/100
Property Taxes
| Parcel Number | 09-00007-0000-00027 | Improvements Assessment | $186,498 CAD |
| Land Assessment | $369,382 CAD | Total Assessment | $555,880 CAD |
Property Taxes
Parcel Number
09-00007-0000-00027
Land Assessment
$369,382 CAD
Improvements Assessment
$186,498 CAD
Total Assessment
$555,880 CAD
1 of 15
Videos
Matterport 3D Exterior
Matterport 3D Tour
Photos
Street View
Street
Map
Presented by
30 Gingerbread Castle Rd
Already a member? Log In
Hmm, there seems to have been an error sending your message. Please try again.
Thanks! Your message was sent.
