Log In/Sign Up
Your email has been sent.
Investment Highlights
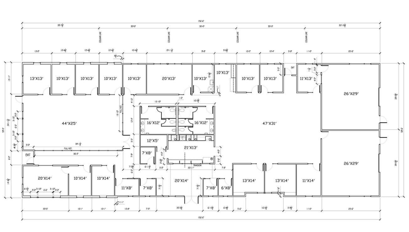
- Large Open Work Area (approx. 44’ x 25’) ideal for bullpen, training, or flexible operations
- Two Warehouse Spaces providing storage and operational flexibility
- Full Kitchen equipped with oven, stove, ice maker, and industrial-sized refrigerator
- Private Office Suite Mix with multiple office sizes and executive office potential (up to 20’ x 13’)
- Defined Reception/Entry Area supporting customerfacing or client-facing use
- Multiple Exterior Entrances providing flexibility for tenant access and internal workflow
Executive Summary
Building 30 is a single-story office building offering ±9,177 SF of flexible space within the Venture Park campus in Pasadena, TX. The layout is designed for users seeking a strong mix of private offices, open work area, and two dedicated warehouse spaces that support storage, light operations, or service-based functionality. Conveniently located near I-45, Sam Houston Tollway, and William P. Hobby Airport, the property provides efficient access throughout the Houston metro area. Available for sale or lease, Building 30 is well suited for professional services, administrative users, medical office conversion or growing teams seeking a functional layout in a well-maintained campus environment.
Solar Panels & Backup Generator provide continuous power & lower electrical costs.
Solar Panels & Backup Generator provide continuous power & lower electrical costs.
Property Facts
Sale Type
Investment or Owner User
Property Type
Office
Building Size
9,177 SF
Building Class
B
Year Built
2000
Percent Leased
100%
Building Height
1 Story
Typical Floor Size
9,177 SF
Building FAR
0.02
Lot Size
11.56 AC
Amenities
- Wheelchair Accessible
- Air Conditioning
Space Availability
- Space
- Size
- Space Use
- Build-Out
- Available
Two Warehouse Spaces providing storage and operational flexibility
| Space | Size | Space Use | Build-Out | Available |
| 1st Fl-Ste Bldg | 9,177 SF | Office/Retail | Full Build-Out | 30 Days |
1st Fl-Ste Bldg
| Size |
| 9,177 SF |
| Space Use |
| Office/Retail |
| Build-Out |
| Full Build-Out |
| Available |
| 30 Days |
1 of 1
Videos
Matterport 3D Exterior
Matterport 3D Tour
Photos
Street View
Street
Map
1st Fl-Ste Bldg
| Size | 9,177 SF |
| Space Use | Office/Retail |
| Build-Out | Full Build-Out |
| Available | 30 Days |
Two Warehouse Spaces providing storage and operational flexibility
1 1
Fairly walkable
40/100
Exceptionally drivable
90/100
Fairly bikeable
50/100
Property Taxes
| Parcel Number | 0612110000009 | Improvements Assessment | $7,962,638 CAD |
| Land Assessment | $1,964,107 CAD | Total Assessment | $9,926,745 CAD |
Property Taxes
Parcel Number
0612110000009
Land Assessment
$1,964,107 CAD
Improvements Assessment
$7,962,638 CAD
Total Assessment
$9,926,745 CAD
1 of 13
Videos
Matterport 3D Exterior
Matterport 3D Tour
Photos
Street View
Street
Map
1 of 1
Presented by
30 Pinnacle Way
Already a member? Log In
Hmm, there seems to have been an error sending your message. Please try again.
Thanks! Your message was sent.






