Your email has been sent.
Highlights
- Good sign exposure and easy interstate access
All Available Space(1)
Display Rental Rate as
- Space
- Size
- Term
- Rental Rate
- Space Use
- Condition
- Available
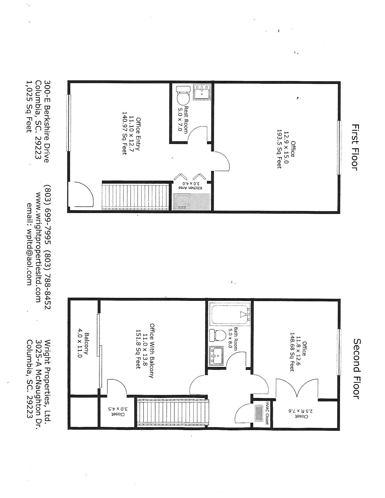
1,025 square foot 2 story professional office space with reception, private office, break area and restroom downstairs and 2 private offices and full bath upstairs. Renovations in progress with new flooring, fresh paint and updated fixtures throughout.
- Listed rate may not include certain utilities, building services and property expenses
- 3 Private Offices
- Reception Area
- After Hours HVAC Available
- Hardwood Floors
- Fits 3 - 9 People
- Central Air and Heating
- Balcony
- Shower Facilities
- Easy access to I-20, I-77 and I-277
| Space | Size | Term | Rental Rate | Space Use | Condition | Available |
| 1st Floor, Ste H | 1,025 SF | 3 Years | $24.73 CAD/SF/YR $2.06 CAD/SF/MO $25,345 CAD/YR $2,112 CAD/MO | Office | - | 2026-04-01 |
1st Floor, Ste H
| Size |
| 1,025 SF |
| Term |
| 3 Years |
| Rental Rate |
| $24.73 CAD/SF/YR $2.06 CAD/SF/MO $25,345 CAD/YR $2,112 CAD/MO |
| Space Use |
| Office |
| Condition |
| - |
| Available |
| 2026-04-01 |
1st Floor, Ste H
| Size | 1,025 SF |
| Term | 3 Years |
| Rental Rate | $24.73 CAD/SF/YR |
| Space Use | Office |
| Condition | - |
| Available | 2026-04-01 |
1,025 square foot 2 story professional office space with reception, private office, break area and restroom downstairs and 2 private offices and full bath upstairs. Renovations in progress with new flooring, fresh paint and updated fixtures throughout.
- Listed rate may not include certain utilities, building services and property expenses
- Fits 3 - 9 People
- 3 Private Offices
- Central Air and Heating
- Reception Area
- Balcony
- After Hours HVAC Available
- Shower Facilities
- Hardwood Floors
- Easy access to I-20, I-77 and I-277
Property Overview
Located off of I-20 Frontage Road. Visible to I-20 and Trenholm Road Extension. Easy access to I-20, I-77 and I-277
- Central Heating
- Hardwood Floors
- Air Conditioning
Property Facts
Presented by
300 Berkshire Dr
Hmm, there seems to have been an error sending your message. Please try again.
Thanks! Your message was sent.





