Your email has been sent.
1 Unit Available
Unit 202
| Unit Size | 3,120 SF | Condo Use | Office/Medical |
| Price | $959,287 CAD | Sale Type | Investment or Owner User |
| Price Per SF | $307.46 CAD | Sale Status | Under Contract |
| Unit Size | 3,120 SF |
| Price | $959,287 CAD |
| Price Per SF | $307.46 CAD |
| Condo Use | Office/Medical |
| Sale Type | Investment or Owner User |
| Sale Status | Under Contract |
Description
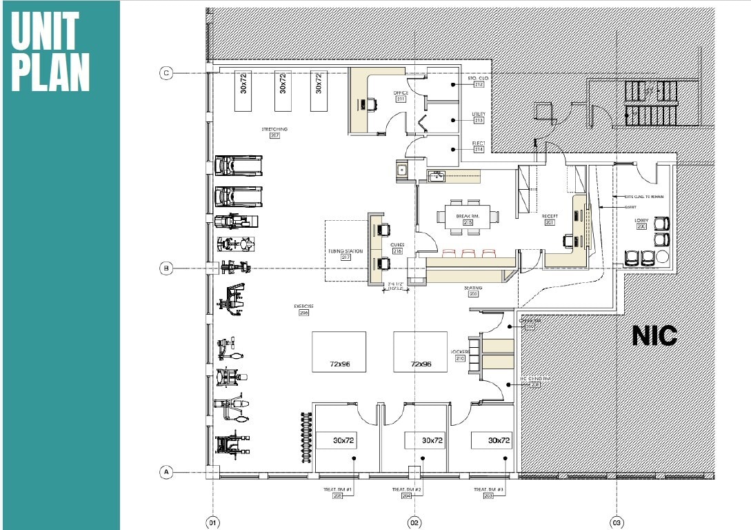
A medical/office condominium located at 300 Congress Street, Suite 202, Quincy, MA is listed for sale at $700,000. The 3,072± SF unit is currently occupied and being used as a physical therapy office. The space will be available for occupancy within 90 days, offering an excellent opportunity for medical or professional office use in a well-located Quincy property.
Sale Notes
Suite 202 at 300 Congress Street in Quincy, MA is a rare opportunity to own over 3,000 SF of prime medical or office space in a highly desirable professional building. Sold for 700000, this 3072 SF condominium is currently occupied by a physical therapy practice and will be available for occupancy within 90 days. Ideally suited for medical, wellness, or general office use, the property offers a strong location, established professional presence, and turnkey potential for owner-users or investors.
Unit Plan
Property Facts Under Contract
| Total Building Size | 88,500 SF | Typical Floor Size | 20,000 SF |
| Property Type | Office (Condo) | Year Built | 1988 |
| Property Subtype | Medical | Lot Size | 6.43 AC |
| Building Class | A | Parking Ratio | 3.73/1,000 SF |
| Floors | 4 | ||
| Zoning | INDB, Quincy | ||
| Total Building Size | 88,500 SF |
| Property Type | Office (Condo) |
| Property Subtype | Medical |
| Building Class | A |
| Floors | 4 |
| Typical Floor Size | 20,000 SF |
| Year Built | 1988 |
| Lot Size | 6.43 AC |
| Parking Ratio | 3.73/1,000 SF |
| Zoning | INDB, Quincy |
Amenities
- 24 Hour Access
- Atrium
- Banking
- Bus Line
- Controlled Access
- Commuter Rail
- Conferencing Facility
- Day Care
- Food Service
- Metro/Subway
- Pond
- Property Manager on Site
- Security System
- Signage
- Wheelchair Accessible
- Central Heating
- Air Conditioning
- Balcony
Presented by
300 Congress St
Hmm, there seems to have been an error sending your message. Please try again.
Thanks! Your message was sent.





