Your email has been sent.
HIGHLIGHTS
- On-site fitness center with locker rooms and showers
- Bike parking and storage
- On-Site Day Care
ALL AVAILABLE SPACES(23)
Display Rental Rate as
- SPACE
- SIZE
- TERM
- RENTAL RATE
- SPACE USE
- CONDITION
- AVAILABLE
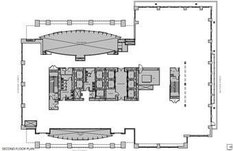
Large, efficient floor plate with ample natural light and polished concrete floors.
- Partially Built-Out as Standard Office
- 1 Private Office
- Can be combined with additional space(s) for up to 128,847 SF of adjacent space
- Mostly Open Floor Plan Layout
- Finished Ceilings: 11’
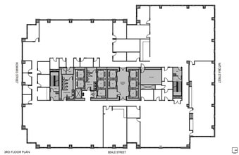
High-tech office space with kitchen and two all-gender restrooms.
- Partially Built-Out as Standard Office
- Finished Ceilings: 11’
- Can be combined with additional space(s) for up to 128,847 SF of adjacent space
- Private Restrooms
- Mostly Open Floor Plan Layout
- Space is in Excellent Condition
- Kitchen
High-tech office space with kitchen and two all-gender restrooms.
- Partially Built-Out as Standard Office
- Finished Ceilings: 11’
- Can be combined with additional space(s) for up to 128,847 SF of adjacent space
- Private Restrooms
- Mostly Open Floor Plan Layout
- Space is in Excellent Condition
- Kitchen
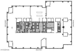
High-tech office space with a kitchen and two all-gender restrooms.
- Partially Built-Out as Standard Office
- Finished Ceilings: 11’
- Can be combined with additional space(s) for up to 128,847 SF of adjacent space
- Private Restrooms
- Mostly Open Floor Plan Layout
- Space is in Excellent Condition
- Kitchen
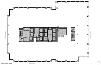
High-tech office space with a kitchen and two all-gender restrooms.
- Partially Built-Out as Standard Office
- Finished Ceilings: 11’
- Can be combined with additional space(s) for up to 128,847 SF of adjacent space
- Private Restrooms
- Mostly Open Floor Plan Layout
- Space is in Excellent Condition
- Kitchen
High-tech office space with a kitchen and two all-gender restrooms. Virtual Tour: https://my.matterport.com/show/?m=VkfrQTx39gF
- Partially Built-Out as Standard Office
- Finished Ceilings: 11’
- Can be combined with additional space(s) for up to 128,847 SF of adjacent space
- Private Restrooms
- Mostly Open Floor Plan Layout
- Space is in Excellent Condition
- Kitchen
High-tech office space with a kitchen and two all-gender restrooms.
- Partially Built-Out as Standard Office
- Finished Ceilings: 11’
- Kitchen
- Mostly Open Floor Plan Layout
- Space is in Excellent Condition
- Private Restrooms
High-tech office space with a kitchen and two all-gender restrooms.
- Partially Built-Out as Standard Office
- Finished Ceilings: 11’
- Kitchen
- Mostly Open Floor Plan Layout
- Space is in Excellent Condition
- Private Restrooms
Office intensive build out potential. (223 RSF / Person) Virtual Tour: https://my.matterport.com/show/?m=o2Qqrx23HrA
- Partially Built-Out as Standard Office
- Finished Ceilings: 11’
- Can be combined with additional space(s) for up to 76,577 SF of adjacent space
- Private Restrooms
- Mostly Open Floor Plan Layout
- Space is in Excellent Condition
- Kitchen
Office intensive build out potential. (223 RSF / Person)
- Partially Built-Out as Standard Office
- Finished Ceilings: 11’
- Can be combined with additional space(s) for up to 76,577 SF of adjacent space
- Private Restrooms
- Mostly Open Floor Plan Layout
- Space is in Excellent Condition
- Kitchen
Office intensive build out potential. (223 RSF / Person)
- Partially Built-Out as Standard Office
- Finished Ceilings: 11’
- Can be combined with additional space(s) for up to 76,577 SF of adjacent space
- Private Restrooms
- Mostly Open Floor Plan Layout
- Space is in Excellent Condition
- Kitchen
Office intensive build out potential. (223 RSF / Person) Virtual Tour: https://my.matterport.com/show/?m=viczebyehNb
- Partially Built-Out as Standard Office
- Finished Ceilings: 11’
- Can be combined with additional space(s) for up to 76,577 SF of adjacent space
- Private Restrooms
- Mostly Open Floor Plan Layout
- Space is in Excellent Condition
- Kitchen
White box condition
- Partially Built-Out as Standard Office
- Finished Ceilings: 11’
- Open Floor Plan Layout
- Space is in Excellent Condition
White box condition
- Partially Built-Out as Standard Office
- Finished Ceilings: 11’
- Mostly Open Floor Plan Layout
- Space is in Excellent Condition
White box condition
- Partially Built-Out as Standard Office
- Finished Ceilings: 11’
- Mostly Open Floor Plan Layout
White box condition
- Partially Built-Out as Standard Office
- Finished Ceilings: 11’
- Mostly Open Floor Plan Layout
Space in shell condition ready for Tenant Improvements. Creative open ceiling with Bay, City, Salesforce Park, and Coit Tower Views. 19th floor includes a 2,500 sq. ft. roof terrace overlooking Salesforce Park. Virtual Tour: https://my.matterport.com/show/?m=KfCbRJXjeJG
- Partially Built-Out as Standard Office
- Finished Ceilings: 11’
- Open Floor Plan Layout
- Can be combined with additional space(s) for up to 91,376 SF of adjacent space
Warm shell condition
- Partially Built-Out as Standard Office
- Finished Ceilings: 11’
- Open Floor Plan Layout
- Can be combined with additional space(s) for up to 91,376 SF of adjacent space
Warm shell condition
- Partially Built-Out as Standard Office
- Finished Ceilings: 11’
- Open Floor Plan Layout
- Can be combined with additional space(s) for up to 91,376 SF of adjacent space
Space in shell condition ready for Tenant Improvements. Creative open ceiling with Bay, City, Salesforce Park, and Coit Tower Views. Creative Hypo Plan: - Double door entry, open kitchen, 66 workstations, 1 large conference room, 8 medium meeting rooms, 3 small meeting rooms, 6 phone rooms, 1 wellness room, storage room, copy and idf room. Office intensive Hypo Plan: - Double door entry, open kitchen, 4 executive window line offices, 12 window line offices, 1 large conference room, 17 workstations, 2 medium meeting rooms, 2 small meeting rooms, 4 phone rooms, 1 wellness room, 2 storage rooms, print/copy room.
- Partially Built-Out as Standard Office
- Finished Ceilings: 11’
- Open Floor Plan Layout
- Can be combined with additional space(s) for up to 91,376 SF of adjacent space
Space in warm shell condition ready for Tenant Improvements. Creative open ceiling with Bay, City, Salesforce Park, and Coit Tower Views. Creative Hypo Plan: - Double door entry, open kitchen, 66 workstations, 1 large conference room, 8 medium meeting rooms, 3 small meeting rooms, 6 phone rooms, 1 wellness room, storage room, copy and idf room. Office intensive Hypo Plan: - Double door entry, open kitchen, 4 executive window line offices, 12 window line offices, 1 large conference room, 17 workstations, 2 medium meeting rooms, 2 small meeting rooms, 4 phone rooms, 1 wellness room, 2 storage rooms, print/copy room. Virtual Tour: https://my.matterport.com/show/?m=AnjZzPZyvAz
- Partially Built-Out as Standard Office
- Finished Ceilings: 11’
- Mostly Open Floor Plan Layout
- Can be combined with additional space(s) for up to 91,376 SF of adjacent space
Space in shell condition ready for Tenant Improvements. Interconnecting stairwell between 24th and 25th floors. Views of Bay, City, Salesforce Park, and Coit Tower Office intensive Hypo Plan: - 24th floor: 21 window line offices, 10 workstations, reception area, 1 large conference room, 3 medium meeting rooms, 3 phone rooms, 2 storage rooms, print/supply room, open kitchen/coffee bar. - 25th floor: 24 window line offices, 12 workstations, 3 medium meeting rooms, 1 small meeting room, 3 phone rooms, wellness room, storage room, print/supply room, open kitchen.
- Partially Built-Out as Standard Office
- Finished Ceilings: 11’
- Mostly Open Floor Plan Layout
- Can be combined with additional space(s) for up to 91,376 SF of adjacent space
Space in shell condition ready for Tenant Improvements. Interconnecting stairwell between 24th and 25th floors. Views of Bay, City, Salesforce Park, and Coit Tower Office intensive Hypo Plan: - 25th floor: 24 window line offices, 12 workstations, 3 medium meeting rooms, 1 small meeting room, 3 phone rooms, wellness room, storage room, print/supply room, open kitchen. - 24th floor: 21 window line offices, 10 workstations, reception area, 1 large conference room, 3 medium meeting rooms, 3 phone rooms, 2 storage rooms, print/supply room, open kitchen/coffee bar. Virtual Tour: https://my.matterport.com/show/?m=CedFd8yR2o8
- Partially Built-Out as Standard Office
- Finished Ceilings: 11’
- Open Floor Plan Layout
- Can be combined with additional space(s) for up to 91,376 SF of adjacent space
| Space | Size | Term | Rental Rate | Space Use | Condition | Available |
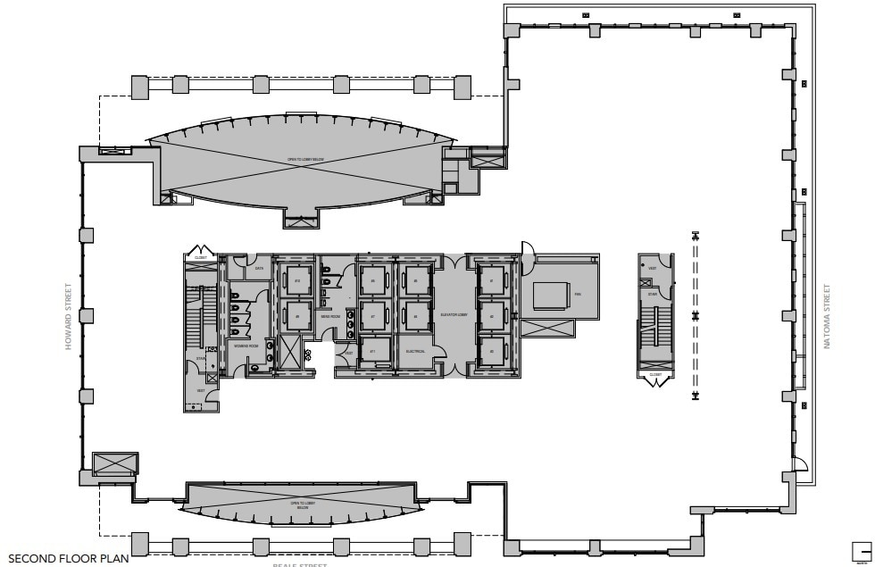
| 2nd Floor, Ste 200 | 17,851 SF | Negotiable | Upon Request Upon Request Upon Request Upon Request | Office | Partial Build-Out | Now |
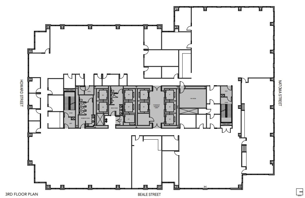
| 3rd Floor, Ste 300 | 22,184 SF | Negotiable | Upon Request Upon Request Upon Request Upon Request | Office | Partial Build-Out | Now |
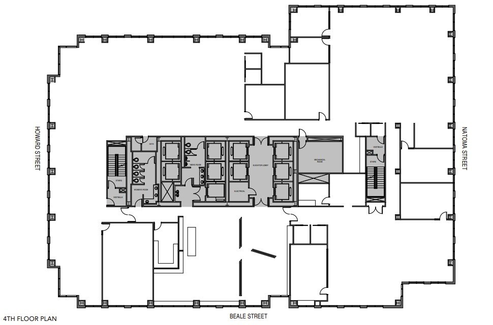
| 4th Floor, Ste 400 | 22,203 SF | Negotiable | Upon Request Upon Request Upon Request Upon Request | Office | Partial Build-Out | Now |
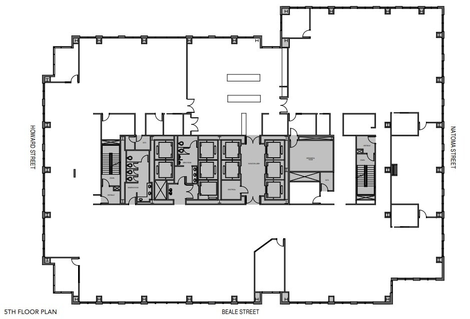
| 5th Floor, Ste 500 | 22,203 SF | Negotiable | Upon Request Upon Request Upon Request Upon Request | Office | Partial Build-Out | Now |
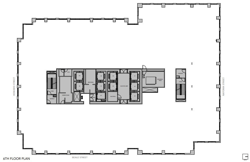
| 6th Floor, Ste 600 | 22,203 SF | Negotiable | Upon Request Upon Request Upon Request Upon Request | Office | Partial Build-Out | Now |
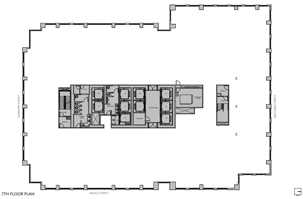
| 7th Floor, Ste 700 | 22,203 SF | Negotiable | Upon Request Upon Request Upon Request Upon Request | Office | Partial Build-Out | Now |
| 8th Floor, Ste 800 | 20,809 SF | Negotiable | Upon Request Upon Request Upon Request Upon Request | Office | Partial Build-Out | Now |
| 9th Floor, Ste 900 | 17,751 SF | Negotiable | Upon Request Upon Request Upon Request Upon Request | Office | Partial Build-Out | Now |
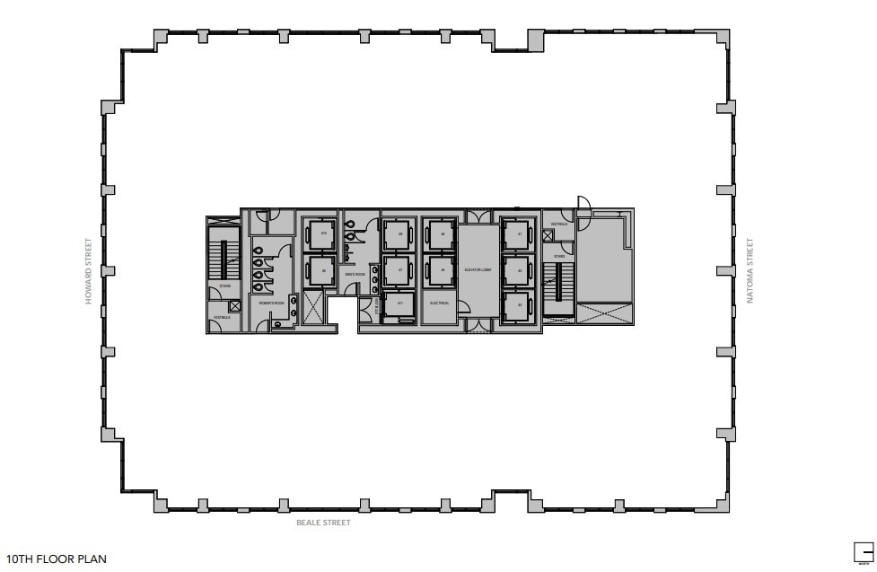
| 10th Floor, Ste 1000 | 18,546 SF | Negotiable | Upon Request Upon Request Upon Request Upon Request | Office | Partial Build-Out | Now |
| 11th Floor, Ste 1100 | 19,395 SF | Negotiable | Upon Request Upon Request Upon Request Upon Request | Office | Partial Build-Out | Now |
| 12th Floor, Ste 1200 | 19,091 SF | Negotiable | Upon Request Upon Request Upon Request Upon Request | Office | Partial Build-Out | Now |
| 14th Floor, Ste 1400 | 19,545 SF | Negotiable | Upon Request Upon Request Upon Request Upon Request | Office | Partial Build-Out | Now |
| 15th Floor, Ste 1500 | 17,700 SF | Negotiable | Upon Request Upon Request Upon Request Upon Request | Office | Partial Build-Out | Now |
| 16th Floor, Ste 1600 | 18,221 SF | Negotiable | Upon Request Upon Request Upon Request Upon Request | Office | Partial Build-Out | Now |
| 17th Floor, Ste 1700 | 18,149 SF | Negotiable | Upon Request Upon Request Upon Request Upon Request | Office | Partial Build-Out | Now |
| 18th Floor, Ste 1800 | 17,806 SF | Negotiable | Upon Request Upon Request Upon Request Upon Request | Office | Partial Build-Out | Now |
| 19th Floor, Ste 1900 | 15,223 SF | Negotiable | Upon Request Upon Request Upon Request Upon Request | Office | Partial Build-Out | Now |
| 20th Floor, Ste 2000 | 12,754 SF | Negotiable | Upon Request Upon Request Upon Request Upon Request | Office | Partial Build-Out | Now |
| 21st Floor, Ste 2100 | 12,723 SF | Negotiable | Upon Request Upon Request Upon Request Upon Request | Office | Partial Build-Out | Now |
| 22nd Floor, Ste 2200 | 12,702 SF | Negotiable | Upon Request Upon Request Upon Request Upon Request | Office | Partial Build-Out | Now |
| 23rd Floor, Ste 2300 | 12,681 SF | Negotiable | Upon Request Upon Request Upon Request Upon Request | Office | Partial Build-Out | Now |
| 24th Floor, Ste 2400 | 12,658 SF | Negotiable | Upon Request Upon Request Upon Request Upon Request | Office | Partial Build-Out | Now |
| 25th Floor, Ste 2500 | 12,635 SF | Negotiable | Upon Request Upon Request Upon Request Upon Request | Office | Partial Build-Out | Now |
2nd Floor, Ste 200
| Size |
| 17,851 SF |
| Term |
| Negotiable |
| Rental Rate |
| Upon Request Upon Request Upon Request Upon Request |
| Space Use |
| Office |
| Condition |
| Partial Build-Out |
| Available |
| Now |
3rd Floor, Ste 300
| Size |
| 22,184 SF |
| Term |
| Negotiable |
| Rental Rate |
| Upon Request Upon Request Upon Request Upon Request |
| Space Use |
| Office |
| Condition |
| Partial Build-Out |
| Available |
| Now |
4th Floor, Ste 400
| Size |
| 22,203 SF |
| Term |
| Negotiable |
| Rental Rate |
| Upon Request Upon Request Upon Request Upon Request |
| Space Use |
| Office |
| Condition |
| Partial Build-Out |
| Available |
| Now |
5th Floor, Ste 500
| Size |
| 22,203 SF |
| Term |
| Negotiable |
| Rental Rate |
| Upon Request Upon Request Upon Request Upon Request |
| Space Use |
| Office |
| Condition |
| Partial Build-Out |
| Available |
| Now |
6th Floor, Ste 600
| Size |
| 22,203 SF |
| Term |
| Negotiable |
| Rental Rate |
| Upon Request Upon Request Upon Request Upon Request |
| Space Use |
| Office |
| Condition |
| Partial Build-Out |
| Available |
| Now |
7th Floor, Ste 700
| Size |
| 22,203 SF |
| Term |
| Negotiable |
| Rental Rate |
| Upon Request Upon Request Upon Request Upon Request |
| Space Use |
| Office |
| Condition |
| Partial Build-Out |
| Available |
| Now |
8th Floor, Ste 800
| Size |
| 20,809 SF |
| Term |
| Negotiable |
| Rental Rate |
| Upon Request Upon Request Upon Request Upon Request |
| Space Use |
| Office |
| Condition |
| Partial Build-Out |
| Available |
| Now |
9th Floor, Ste 900
| Size |
| 17,751 SF |
| Term |
| Negotiable |
| Rental Rate |
| Upon Request Upon Request Upon Request Upon Request |
| Space Use |
| Office |
| Condition |
| Partial Build-Out |
| Available |
| Now |
10th Floor, Ste 1000
| Size |
| 18,546 SF |
| Term |
| Negotiable |
| Rental Rate |
| Upon Request Upon Request Upon Request Upon Request |
| Space Use |
| Office |
| Condition |
| Partial Build-Out |
| Available |
| Now |
11th Floor, Ste 1100
| Size |
| 19,395 SF |
| Term |
| Negotiable |
| Rental Rate |
| Upon Request Upon Request Upon Request Upon Request |
| Space Use |
| Office |
| Condition |
| Partial Build-Out |
| Available |
| Now |
12th Floor, Ste 1200
| Size |
| 19,091 SF |
| Term |
| Negotiable |
| Rental Rate |
| Upon Request Upon Request Upon Request Upon Request |
| Space Use |
| Office |
| Condition |
| Partial Build-Out |
| Available |
| Now |
14th Floor, Ste 1400
| Size |
| 19,545 SF |
| Term |
| Negotiable |
| Rental Rate |
| Upon Request Upon Request Upon Request Upon Request |
| Space Use |
| Office |
| Condition |
| Partial Build-Out |
| Available |
| Now |
15th Floor, Ste 1500
| Size |
| 17,700 SF |
| Term |
| Negotiable |
| Rental Rate |
| Upon Request Upon Request Upon Request Upon Request |
| Space Use |
| Office |
| Condition |
| Partial Build-Out |
| Available |
| Now |
16th Floor, Ste 1600
| Size |
| 18,221 SF |
| Term |
| Negotiable |
| Rental Rate |
| Upon Request Upon Request Upon Request Upon Request |
| Space Use |
| Office |
| Condition |
| Partial Build-Out |
| Available |
| Now |
17th Floor, Ste 1700
| Size |
| 18,149 SF |
| Term |
| Negotiable |
| Rental Rate |
| Upon Request Upon Request Upon Request Upon Request |
| Space Use |
| Office |
| Condition |
| Partial Build-Out |
| Available |
| Now |
18th Floor, Ste 1800
| Size |
| 17,806 SF |
| Term |
| Negotiable |
| Rental Rate |
| Upon Request Upon Request Upon Request Upon Request |
| Space Use |
| Office |
| Condition |
| Partial Build-Out |
| Available |
| Now |
19th Floor, Ste 1900
| Size |
| 15,223 SF |
| Term |
| Negotiable |
| Rental Rate |
| Upon Request Upon Request Upon Request Upon Request |
| Space Use |
| Office |
| Condition |
| Partial Build-Out |
| Available |
| Now |
20th Floor, Ste 2000
| Size |
| 12,754 SF |
| Term |
| Negotiable |
| Rental Rate |
| Upon Request Upon Request Upon Request Upon Request |
| Space Use |
| Office |
| Condition |
| Partial Build-Out |
| Available |
| Now |
21st Floor, Ste 2100
| Size |
| 12,723 SF |
| Term |
| Negotiable |
| Rental Rate |
| Upon Request Upon Request Upon Request Upon Request |
| Space Use |
| Office |
| Condition |
| Partial Build-Out |
| Available |
| Now |
22nd Floor, Ste 2200
| Size |
| 12,702 SF |
| Term |
| Negotiable |
| Rental Rate |
| Upon Request Upon Request Upon Request Upon Request |
| Space Use |
| Office |
| Condition |
| Partial Build-Out |
| Available |
| Now |
23rd Floor, Ste 2300
| Size |
| 12,681 SF |
| Term |
| Negotiable |
| Rental Rate |
| Upon Request Upon Request Upon Request Upon Request |
| Space Use |
| Office |
| Condition |
| Partial Build-Out |
| Available |
| Now |
24th Floor, Ste 2400
| Size |
| 12,658 SF |
| Term |
| Negotiable |
| Rental Rate |
| Upon Request Upon Request Upon Request Upon Request |
| Space Use |
| Office |
| Condition |
| Partial Build-Out |
| Available |
| Now |
25th Floor, Ste 2500
| Size |
| 12,635 SF |
| Term |
| Negotiable |
| Rental Rate |
| Upon Request Upon Request Upon Request Upon Request |
| Space Use |
| Office |
| Condition |
| Partial Build-Out |
| Available |
| Now |
2nd Floor, Ste 200
| Size | 17,851 SF |
| Term | Negotiable |
| Rental Rate | Upon Request |
| Space Use | Office |
| Condition | Partial Build-Out |
| Available | Now |
Large, efficient floor plate with ample natural light and polished concrete floors.
- Partially Built-Out as Standard Office
- Mostly Open Floor Plan Layout
- 1 Private Office
- Finished Ceilings: 11’
- Can be combined with additional space(s) for up to 128,847 SF of adjacent space
3rd Floor, Ste 300
| Size | 22,184 SF |
| Term | Negotiable |
| Rental Rate | Upon Request |
| Space Use | Office |
| Condition | Partial Build-Out |
| Available | Now |
High-tech office space with kitchen and two all-gender restrooms.
- Partially Built-Out as Standard Office
- Mostly Open Floor Plan Layout
- Finished Ceilings: 11’
- Space is in Excellent Condition
- Can be combined with additional space(s) for up to 128,847 SF of adjacent space
- Kitchen
- Private Restrooms
4th Floor, Ste 400
| Size | 22,203 SF |
| Term | Negotiable |
| Rental Rate | Upon Request |
| Space Use | Office |
| Condition | Partial Build-Out |
| Available | Now |
High-tech office space with kitchen and two all-gender restrooms.
- Partially Built-Out as Standard Office
- Mostly Open Floor Plan Layout
- Finished Ceilings: 11’
- Space is in Excellent Condition
- Can be combined with additional space(s) for up to 128,847 SF of adjacent space
- Kitchen
- Private Restrooms
5th Floor, Ste 500
| Size | 22,203 SF |
| Term | Negotiable |
| Rental Rate | Upon Request |
| Space Use | Office |
| Condition | Partial Build-Out |
| Available | Now |
High-tech office space with a kitchen and two all-gender restrooms.
- Partially Built-Out as Standard Office
- Mostly Open Floor Plan Layout
- Finished Ceilings: 11’
- Space is in Excellent Condition
- Can be combined with additional space(s) for up to 128,847 SF of adjacent space
- Kitchen
- Private Restrooms
6th Floor, Ste 600
| Size | 22,203 SF |
| Term | Negotiable |
| Rental Rate | Upon Request |
| Space Use | Office |
| Condition | Partial Build-Out |
| Available | Now |
High-tech office space with a kitchen and two all-gender restrooms.
- Partially Built-Out as Standard Office
- Mostly Open Floor Plan Layout
- Finished Ceilings: 11’
- Space is in Excellent Condition
- Can be combined with additional space(s) for up to 128,847 SF of adjacent space
- Kitchen
- Private Restrooms
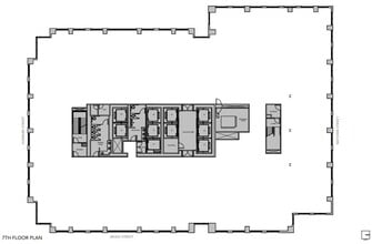
7th Floor, Ste 700
| Size | 22,203 SF |
| Term | Negotiable |
| Rental Rate | Upon Request |
| Space Use | Office |
| Condition | Partial Build-Out |
| Available | Now |
High-tech office space with a kitchen and two all-gender restrooms. Virtual Tour: https://my.matterport.com/show/?m=VkfrQTx39gF
- Partially Built-Out as Standard Office
- Mostly Open Floor Plan Layout
- Finished Ceilings: 11’
- Space is in Excellent Condition
- Can be combined with additional space(s) for up to 128,847 SF of adjacent space
- Kitchen
- Private Restrooms
8th Floor, Ste 800
| Size | 20,809 SF |
| Term | Negotiable |
| Rental Rate | Upon Request |
| Space Use | Office |
| Condition | Partial Build-Out |
| Available | Now |
High-tech office space with a kitchen and two all-gender restrooms.
- Partially Built-Out as Standard Office
- Mostly Open Floor Plan Layout
- Finished Ceilings: 11’
- Space is in Excellent Condition
- Kitchen
- Private Restrooms
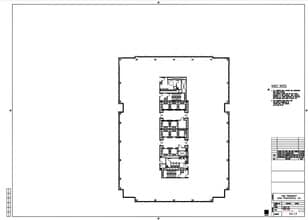
9th Floor, Ste 900
| Size | 17,751 SF |
| Term | Negotiable |
| Rental Rate | Upon Request |
| Space Use | Office |
| Condition | Partial Build-Out |
| Available | Now |
High-tech office space with a kitchen and two all-gender restrooms.
- Partially Built-Out as Standard Office
- Mostly Open Floor Plan Layout
- Finished Ceilings: 11’
- Space is in Excellent Condition
- Kitchen
- Private Restrooms
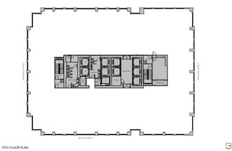
10th Floor, Ste 1000
| Size | 18,546 SF |
| Term | Negotiable |
| Rental Rate | Upon Request |
| Space Use | Office |
| Condition | Partial Build-Out |
| Available | Now |
Office intensive build out potential. (223 RSF / Person) Virtual Tour: https://my.matterport.com/show/?m=o2Qqrx23HrA
- Partially Built-Out as Standard Office
- Mostly Open Floor Plan Layout
- Finished Ceilings: 11’
- Space is in Excellent Condition
- Can be combined with additional space(s) for up to 76,577 SF of adjacent space
- Kitchen
- Private Restrooms
11th Floor, Ste 1100
| Size | 19,395 SF |
| Term | Negotiable |
| Rental Rate | Upon Request |
| Space Use | Office |
| Condition | Partial Build-Out |
| Available | Now |
Office intensive build out potential. (223 RSF / Person)
- Partially Built-Out as Standard Office
- Mostly Open Floor Plan Layout
- Finished Ceilings: 11’
- Space is in Excellent Condition
- Can be combined with additional space(s) for up to 76,577 SF of adjacent space
- Kitchen
- Private Restrooms
12th Floor, Ste 1200
| Size | 19,091 SF |
| Term | Negotiable |
| Rental Rate | Upon Request |
| Space Use | Office |
| Condition | Partial Build-Out |
| Available | Now |
Office intensive build out potential. (223 RSF / Person)
- Partially Built-Out as Standard Office
- Mostly Open Floor Plan Layout
- Finished Ceilings: 11’
- Space is in Excellent Condition
- Can be combined with additional space(s) for up to 76,577 SF of adjacent space
- Kitchen
- Private Restrooms
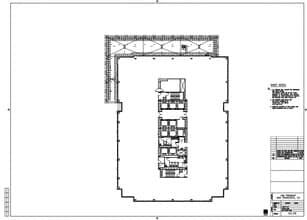
14th Floor, Ste 1400
| Size | 19,545 SF |
| Term | Negotiable |
| Rental Rate | Upon Request |
| Space Use | Office |
| Condition | Partial Build-Out |
| Available | Now |
Office intensive build out potential. (223 RSF / Person) Virtual Tour: https://my.matterport.com/show/?m=viczebyehNb
- Partially Built-Out as Standard Office
- Mostly Open Floor Plan Layout
- Finished Ceilings: 11’
- Space is in Excellent Condition
- Can be combined with additional space(s) for up to 76,577 SF of adjacent space
- Kitchen
- Private Restrooms
15th Floor, Ste 1500
| Size | 17,700 SF |
| Term | Negotiable |
| Rental Rate | Upon Request |
| Space Use | Office |
| Condition | Partial Build-Out |
| Available | Now |
White box condition
- Partially Built-Out as Standard Office
- Open Floor Plan Layout
- Finished Ceilings: 11’
- Space is in Excellent Condition
16th Floor, Ste 1600
| Size | 18,221 SF |
| Term | Negotiable |
| Rental Rate | Upon Request |
| Space Use | Office |
| Condition | Partial Build-Out |
| Available | Now |
White box condition
- Partially Built-Out as Standard Office
- Mostly Open Floor Plan Layout
- Finished Ceilings: 11’
- Space is in Excellent Condition
17th Floor, Ste 1700
| Size | 18,149 SF |
| Term | Negotiable |
| Rental Rate | Upon Request |
| Space Use | Office |
| Condition | Partial Build-Out |
| Available | Now |
White box condition
- Partially Built-Out as Standard Office
- Mostly Open Floor Plan Layout
- Finished Ceilings: 11’
18th Floor, Ste 1800
| Size | 17,806 SF |
| Term | Negotiable |
| Rental Rate | Upon Request |
| Space Use | Office |
| Condition | Partial Build-Out |
| Available | Now |
White box condition
- Partially Built-Out as Standard Office
- Mostly Open Floor Plan Layout
- Finished Ceilings: 11’
19th Floor, Ste 1900
| Size | 15,223 SF |
| Term | Negotiable |
| Rental Rate | Upon Request |
| Space Use | Office |
| Condition | Partial Build-Out |
| Available | Now |
Space in shell condition ready for Tenant Improvements. Creative open ceiling with Bay, City, Salesforce Park, and Coit Tower Views. 19th floor includes a 2,500 sq. ft. roof terrace overlooking Salesforce Park. Virtual Tour: https://my.matterport.com/show/?m=KfCbRJXjeJG
- Partially Built-Out as Standard Office
- Open Floor Plan Layout
- Finished Ceilings: 11’
- Can be combined with additional space(s) for up to 91,376 SF of adjacent space
20th Floor, Ste 2000
| Size | 12,754 SF |
| Term | Negotiable |
| Rental Rate | Upon Request |
| Space Use | Office |
| Condition | Partial Build-Out |
| Available | Now |
Warm shell condition
- Partially Built-Out as Standard Office
- Open Floor Plan Layout
- Finished Ceilings: 11’
- Can be combined with additional space(s) for up to 91,376 SF of adjacent space
21st Floor, Ste 2100
| Size | 12,723 SF |
| Term | Negotiable |
| Rental Rate | Upon Request |
| Space Use | Office |
| Condition | Partial Build-Out |
| Available | Now |
Warm shell condition
- Partially Built-Out as Standard Office
- Open Floor Plan Layout
- Finished Ceilings: 11’
- Can be combined with additional space(s) for up to 91,376 SF of adjacent space
22nd Floor, Ste 2200
| Size | 12,702 SF |
| Term | Negotiable |
| Rental Rate | Upon Request |
| Space Use | Office |
| Condition | Partial Build-Out |
| Available | Now |
Space in shell condition ready for Tenant Improvements. Creative open ceiling with Bay, City, Salesforce Park, and Coit Tower Views. Creative Hypo Plan: - Double door entry, open kitchen, 66 workstations, 1 large conference room, 8 medium meeting rooms, 3 small meeting rooms, 6 phone rooms, 1 wellness room, storage room, copy and idf room. Office intensive Hypo Plan: - Double door entry, open kitchen, 4 executive window line offices, 12 window line offices, 1 large conference room, 17 workstations, 2 medium meeting rooms, 2 small meeting rooms, 4 phone rooms, 1 wellness room, 2 storage rooms, print/copy room.
- Partially Built-Out as Standard Office
- Open Floor Plan Layout
- Finished Ceilings: 11’
- Can be combined with additional space(s) for up to 91,376 SF of adjacent space
23rd Floor, Ste 2300
| Size | 12,681 SF |
| Term | Negotiable |
| Rental Rate | Upon Request |
| Space Use | Office |
| Condition | Partial Build-Out |
| Available | Now |
Space in warm shell condition ready for Tenant Improvements. Creative open ceiling with Bay, City, Salesforce Park, and Coit Tower Views. Creative Hypo Plan: - Double door entry, open kitchen, 66 workstations, 1 large conference room, 8 medium meeting rooms, 3 small meeting rooms, 6 phone rooms, 1 wellness room, storage room, copy and idf room. Office intensive Hypo Plan: - Double door entry, open kitchen, 4 executive window line offices, 12 window line offices, 1 large conference room, 17 workstations, 2 medium meeting rooms, 2 small meeting rooms, 4 phone rooms, 1 wellness room, 2 storage rooms, print/copy room. Virtual Tour: https://my.matterport.com/show/?m=AnjZzPZyvAz
- Partially Built-Out as Standard Office
- Mostly Open Floor Plan Layout
- Finished Ceilings: 11’
- Can be combined with additional space(s) for up to 91,376 SF of adjacent space
24th Floor, Ste 2400
| Size | 12,658 SF |
| Term | Negotiable |
| Rental Rate | Upon Request |
| Space Use | Office |
| Condition | Partial Build-Out |
| Available | Now |
Space in shell condition ready for Tenant Improvements. Interconnecting stairwell between 24th and 25th floors. Views of Bay, City, Salesforce Park, and Coit Tower Office intensive Hypo Plan: - 24th floor: 21 window line offices, 10 workstations, reception area, 1 large conference room, 3 medium meeting rooms, 3 phone rooms, 2 storage rooms, print/supply room, open kitchen/coffee bar. - 25th floor: 24 window line offices, 12 workstations, 3 medium meeting rooms, 1 small meeting room, 3 phone rooms, wellness room, storage room, print/supply room, open kitchen.
- Partially Built-Out as Standard Office
- Mostly Open Floor Plan Layout
- Finished Ceilings: 11’
- Can be combined with additional space(s) for up to 91,376 SF of adjacent space
25th Floor, Ste 2500
| Size | 12,635 SF |
| Term | Negotiable |
| Rental Rate | Upon Request |
| Space Use | Office |
| Condition | Partial Build-Out |
| Available | Now |
Space in shell condition ready for Tenant Improvements. Interconnecting stairwell between 24th and 25th floors. Views of Bay, City, Salesforce Park, and Coit Tower Office intensive Hypo Plan: - 25th floor: 24 window line offices, 12 workstations, 3 medium meeting rooms, 1 small meeting room, 3 phone rooms, wellness room, storage room, print/supply room, open kitchen. - 24th floor: 21 window line offices, 10 workstations, reception area, 1 large conference room, 3 medium meeting rooms, 3 phone rooms, 2 storage rooms, print/supply room, open kitchen/coffee bar. Virtual Tour: https://my.matterport.com/show/?m=CedFd8yR2o8
- Partially Built-Out as Standard Office
- Open Floor Plan Layout
- Finished Ceilings: 11’
- Can be combined with additional space(s) for up to 91,376 SF of adjacent space
FEATURES AND AMENITIES
- 24 Hour Access
- Atrium
- Bus Line
- Controlled Access
- Commuter Rail
- Courtyard
- Day Care
- Fitness Center
- Metro/Subway
- Property Manager on Site
- Restaurant
- Security System
- LEED Certified - Platinum
- Energy Star Labeled
PROPERTY FACTS
SELECT TENANTS
- FLOOR
- TENANT NAME
- INDUSTRY
- Multiple
- Fitbit Inc
- Manufacturing
- 20th
- Folger Levin LLP
- Professional, Scientific, and Technical Services
- Multiple
- Fremont Group
- Finance and Insurance
- 21st
- Leland Parachini Steinberg Matzger Melnick LLP
- Professional, Scientific, and Technical Services
- GRND
- Leong Dental
- Health Care and Social Assistance
- GRND
- Russell's Convenience Store
- Retailer
- Unknown
- S D Bechtel Jr Foundation
- Services
- Unknown
- South Park LLC
- Services
- GRND
- Starbucks
- Retailer
- Multiple
- StubHub
- Professional, Scientific, and Technical Services
SUSTAINABILITY
SUSTAINABILITY
LEED Certification Developed by the U.S. Green Building Council (USGBC), the Leadership in Energy and Environmental Design (LEED) is a green building certification program focused on the design, construction, operation, and maintenance of green buildings, homes, and neighborhoods, which aims to help building owners and operators be environmentally responsible and use resources efficiently. LEED certification is a globally recognized symbol of sustainability achievement and leadership. To achieve LEED certification, a project earns points by adhering to prerequisites and credits that address carbon, energy, water, waste, transportation, materials, health and indoor environmental quality. Projects go through a verification and review process and are awarded points that correspond to a level of LEED certification: Platinum (80+ points) Gold (60-79 points) Silver (50-59 points) Certified (40-49 points)
Presented by
300 Howard St
Hmm, there seems to have been an error sending your message. Please try again.
Thanks! Your message was sent.





















































