Log In/Sign Up
Your email has been sent.
300 W Pratt Street 300 W Pratt St 1,797 - 32,606 SF of 4-Star Office Space Available in Baltimore, MD 21201



Highlights
- Small spaces available.
All Available Spaces(6)
Display Rental Rate as
- Space
- Size
- Term
- Rental Rate
- Space Use
- Build-Out
- Available
Full Build-Out.
- Fully Built-Out as Standard Office
- Space is in Excellent Condition
- Open Floor Plan Layout
- Central Air Conditioning
Full Build-Out.
- Rate includes utilities, building services and property expenses
- Open Floor Plan Layout
- Plug & Play
- Fully Built-Out as Standard Office
- Space is in Excellent Condition
- Fully Built-Out as Standard Office
- Space is in Excellent Condition
Full Build-Out.
- Fully Built-Out as Standard Office
- Space is in Excellent Condition
- Open Floor Plan Layout
- Central Air Conditioning
Full Build-Out.
- Fully Built-Out as Standard Office
- Space is in Excellent Condition
- Open Floor Plan Layout
- Central Air Conditioning
Partial build-out.
- Partially Built-Out as Standard Office
- Space is in Excellent Condition
- Mostly Open Floor Plan Layout
- Central Air Conditioning
| Space | Size | Term | Rental Rate | Space Use | Build-Out | Available |
| 2nd Floor, Ste 250 | 1,797 SF | Negotiable | Upon Request Upon Request Upon Request Upon Request | Office | Full Build-Out | Now |
| 3rd Floor, Ste 310 | 6,813 SF | Negotiable | Upon Request Upon Request Upon Request Upon Request | Office | Full Build-Out | 120 Days |
| 3rd Floor, Ste 350 | 3,375 SF | Negotiable | Upon Request Upon Request Upon Request Upon Request | Office | Full Build-Out | Now |
| 4th Floor, Ste 400 | 2,750 SF | Negotiable | Upon Request Upon Request Upon Request Upon Request | Office | Full Build-Out | Now |
| 4th Floor, Ste 450 | 8,067 SF | Negotiable | Upon Request Upon Request Upon Request Upon Request | Office | Full Build-Out | Now |
| 5th Floor, Ste 500 | 2,206-9,804 SF | Negotiable | Upon Request Upon Request Upon Request Upon Request | Office | Partial Build-Out | Now |
2nd Floor, Ste 250
| Size |
| 1,797 SF |
| Term |
| Negotiable |
| Rental Rate |
| Upon Request Upon Request Upon Request Upon Request |
| Space Use |
| Office |
| Build-Out |
| Full Build-Out |
| Available |
| Now |
3rd Floor, Ste 310
| Size |
| 6,813 SF |
| Term |
| Negotiable |
| Rental Rate |
| Upon Request Upon Request Upon Request Upon Request |
| Space Use |
| Office |
| Build-Out |
| Full Build-Out |
| Available |
| 120 Days |
3rd Floor, Ste 350
| Size |
| 3,375 SF |
| Term |
| Negotiable |
| Rental Rate |
| Upon Request Upon Request Upon Request Upon Request |
| Space Use |
| Office |
| Build-Out |
| Full Build-Out |
| Available |
| Now |
4th Floor, Ste 400
| Size |
| 2,750 SF |
| Term |
| Negotiable |
| Rental Rate |
| Upon Request Upon Request Upon Request Upon Request |
| Space Use |
| Office |
| Build-Out |
| Full Build-Out |
| Available |
| Now |
4th Floor, Ste 450
| Size |
| 8,067 SF |
| Term |
| Negotiable |
| Rental Rate |
| Upon Request Upon Request Upon Request Upon Request |
| Space Use |
| Office |
| Build-Out |
| Full Build-Out |
| Available |
| Now |
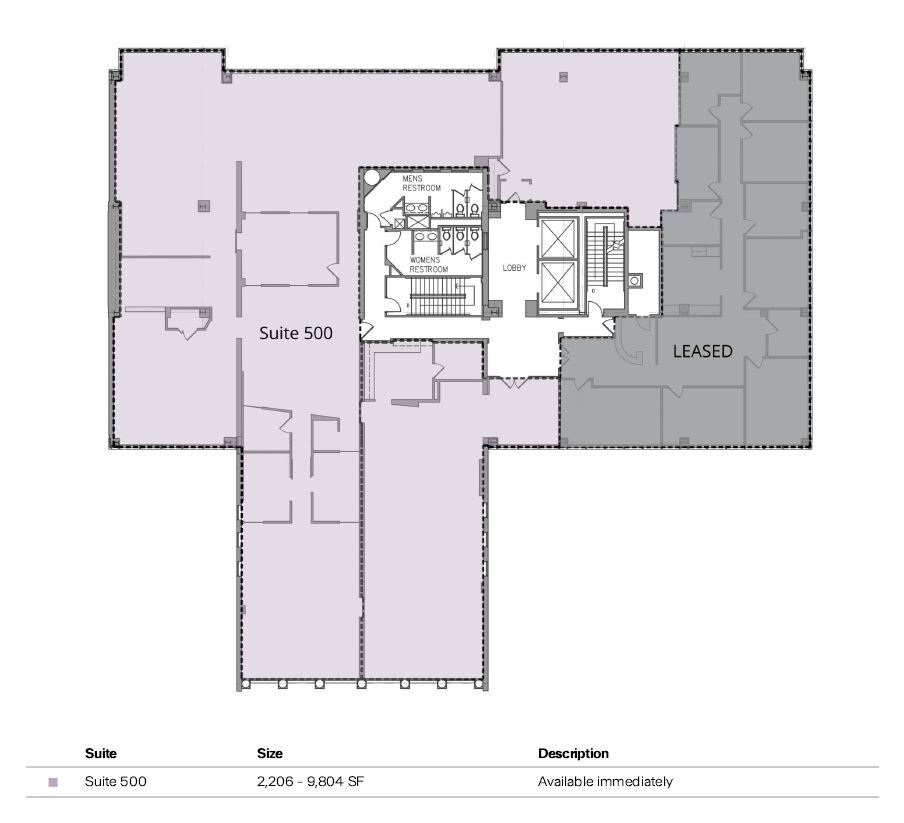
5th Floor, Ste 500
| Size |
| 2,206-9,804 SF |
| Term |
| Negotiable |
| Rental Rate |
| Upon Request Upon Request Upon Request Upon Request |
| Space Use |
| Office |
| Build-Out |
| Partial Build-Out |
| Available |
| Now |
2nd Floor, Ste 250
| Size | 1,797 SF |
| Term | Negotiable |
| Rental Rate | Upon Request |
| Space Use | Office |
| Build-Out | Full Build-Out |
| Available | Now |
Full Build-Out.
- Fully Built-Out as Standard Office
- Open Floor Plan Layout
- Space is in Excellent Condition
- Central Air Conditioning
3rd Floor, Ste 310
| Size | 6,813 SF |
| Term | Negotiable |
| Rental Rate | Upon Request |
| Space Use | Office |
| Build-Out | Full Build-Out |
| Available | 120 Days |
Full Build-Out.
- Rate includes utilities, building services and property expenses
- Fully Built-Out as Standard Office
- Open Floor Plan Layout
- Space is in Excellent Condition
- Plug & Play
3rd Floor, Ste 350
| Size | 3,375 SF |
| Term | Negotiable |
| Rental Rate | Upon Request |
| Space Use | Office |
| Build-Out | Full Build-Out |
| Available | Now |
- Fully Built-Out as Standard Office
- Space is in Excellent Condition
4th Floor, Ste 400
| Size | 2,750 SF |
| Term | Negotiable |
| Rental Rate | Upon Request |
| Space Use | Office |
| Build-Out | Full Build-Out |
| Available | Now |
Full Build-Out.
- Fully Built-Out as Standard Office
- Open Floor Plan Layout
- Space is in Excellent Condition
- Central Air Conditioning
4th Floor, Ste 450
| Size | 8,067 SF |
| Term | Negotiable |
| Rental Rate | Upon Request |
| Space Use | Office |
| Build-Out | Full Build-Out |
| Available | Now |
Full Build-Out.
- Fully Built-Out as Standard Office
- Open Floor Plan Layout
- Space is in Excellent Condition
- Central Air Conditioning
1 of 1
Videos
Matterport 3D Exterior
Matterport 3D Tour
Photos
Street View
Street
Map
5th Floor, Ste 500
| Size | 2,206-9,804 SF |
| Term | Negotiable |
| Rental Rate | Upon Request |
| Space Use | Office |
| Build-Out | Partial Build-Out |
| Available | Now |
Partial build-out.
- Partially Built-Out as Standard Office
- Mostly Open Floor Plan Layout
- Space is in Excellent Condition
- Central Air Conditioning
Property Overview
Commuter Rail, Courtyard, Food Service, On Site Management, Restaurant.
- Commuter Rail
- Courtyard
- Food Service
- Property Manager on Site
- Restaurant
- Natural Light
Property Facts
Building Type
Office
Year Built/Renovated
1870/1999
LoopNet Rating
4 Star
Building Height
5 Stories
Building Size
61,655 SF
Building Class
A
Typical Floor Size
12,141 SF
Unfinished Ceiling Height
10’
Parking
Surface Parking
Covered Parking
1 1
Exceptionally walkable
100/100
Moderately drivable
60/100
Exceptional public transit
100/100
Moderately bikeable
70/100
1 of 11
Videos
Matterport 3D Exterior
Matterport 3D Tour
Photos
Street View
Street
Map
1 of 1
Presented by
300 W Pratt Street | 300 W Pratt St
Already a member? Log In
Hmm, there seems to have been an error sending your message. Please try again.
Thanks! Your message was sent.


