Your email has been sent.
1 Unit Available
Unit 404
| Unit Size | 6,250 SF | Condo Use | Flex |
| Price | $2,055,615 CAD | Sale Type | Owner User |
| Price Per SF | $328.90 CAD |
| Unit Size | 6,250 SF |
| Price | $2,055,615 CAD |
| Price Per SF | $328.90 CAD |
| Condo Use | Flex |
| Sale Type | Owner User |
Description
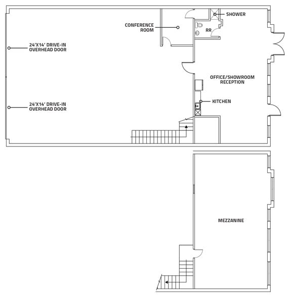
Discover the ultimate aviation and industrial haven at Flight Business Park! This stunning Condo/Warehouse Hangar Unit, located right at the Erie Municipal Airport—3000 Airport Drive, Unit 404, Erie, CO 80516—spans an impressive 6,250 SF and is designed to fuel your ambitions. Picture this: two massive drive-in overhead doors with a clever removable center post that lets you effortlessly park aircraft or handle oversized loads. The ground-floor reception/showroom dazzles with 1,250 SF of polished space, complete with a modern kitchen and convenient restroom with shower for those long days on the job. Up top, a versatile 1,250 SF mezzanine awaits your creative touch—whether it’s extra storage, an office, or a command center. Fully drywalled and warmed by efficient radiant heating, this gem keeps you comfortable year-round. Plus, its unbeatable spot near US-287, I-25, and the Northwest Parkway means you’re always connected. With flexible zoning that opens doors to light industrial, manufacturing, sales, service, and aviation ventures, the sky’s truly the limit!
- Zoning: Light Industrial - Airport (endless possibilities!): This zoning classification is a game-changer, offering incredible flexibility for your business needs. Whether you’re diving into light manufacturing, setting up a sales operation, providing specialized services, or focusing on aviation-related activities like aircraft maintenance or storage, this setup empowers you to adapt and grow without restrictive barriers.
- Robust 250 Amps, 480/277 Volt 3-Phase Power: Power up your vision with this high-capacity electrical system, delivering reliable 3-phase service that’s essential for running industrial tools, heavy machinery, or advanced aviation equipment. With 250 amps at your disposal, you’ll have the juice to support everything from welding stations and CNC machines to charging systems for electric vehicles or aircraft.
- Dual 24’ x 14’ Drive-In Overhead Doors (built for big dreams): These oversized doors are engineered for heavy-duty use, featuring a movable center post that can be removed to create an even wider opening—perfect for accommodating aircraft, large vehicles, or bulky equipment.
3000-Airport-Drive-Unit-404_FloorPlan_02-23-2026
3000-Airport-Drive_Unit-404_Interior_02-19-2026-03_WEB
3000-Airport-Drive_Unit-404_Interior_02-19-2026-04_WEB
3000-Airport-Drive_Unit-404_Interior_02-19-2026-10_WEB
3000-Airport-Drive_Unit-404_Interior_02-19-2026-13_WEB
3000-Airport-Drive_Unit-404_Interior_02-19-2026-17_WEB
3000-Airport-Drive_Unit-404_Interior_02-19-2026-20_WEB
3000-Airport-Drive_Unit-404_Interior_02-19-2026-21_WEB
3000-Airport-Drive_Unit-404_Interior_02-19-2026-22_WEB
3000-Airport-Drive_Unit-404_Interior_02-19-2026-23_WEB
3000-Airport-Drive_Unit-404_Interior_02-19-2026-24_WEB
3000-Airport-Drive_Unit-404_Interior_02-19-2026-25_WEB
3000-Airport-Drive_Unit-404_Interior_02-19-2026-28_WEB
Property Facts
| Total Building Size | 28,230 SF | Typical Floor Size | 14,115 SF |
| Property Type | Flex (Condo) | Year Built | 2018 |
| Property Subtype | Light Manufacturing | Lot Size | 0.68 AC |
| Building Class | B | Parking Ratio | 13.6/1,000 SF |
| Floors | 1 | ||
| Zoning | Light Industrial-Airport - Airport (AP) with PUD Overlay-Light Industrial Uses, Manufacturing, Equipment Sales, Service & Rental, Contractor or Repair Shops, Aviation Uses | ||
| Total Building Size | 28,230 SF |
| Property Type | Flex (Condo) |
| Property Subtype | Light Manufacturing |
| Building Class | B |
| Floors | 1 |
| Typical Floor Size | 14,115 SF |
| Year Built | 2018 |
| Lot Size | 0.68 AC |
| Parking Ratio | 13.6/1,000 SF |
| Zoning | Light Industrial-Airport - Airport (AP) with PUD Overlay-Light Industrial Uses, Manufacturing, Equipment Sales, Service & Rental, Contractor or Repair Shops, Aviation Uses |
Amenities
- 24 Hour Access
- Bio-Tech/ Lab Space
- Controlled Access
- Mezzanine
- Signage
- Wheelchair Accessible
- Reception
- Storage Space
- Car Charging Station
- Air Conditioning
- Balcony
- Fiber Optic Internet
- Smoke Detector
Utilities
- Gas - Natural
- Water - City
- Sewer - Septic Field
- Heating - Gas
Major Tenant Information Click Here to Access
| TENANT | SF Occupied | LEASE END DATE |
|---|---|---|
| Centripetal Fitness and Nutrition |
-
|
Jan 0000
|
Presented by
3000 Airport Dr
Hmm, there seems to have been an error sending your message. Please try again.
Thanks! Your message was sent.




