Your email has been sent.
3000 E Ridge Rd 50 - 20,009 SF of Space Available in Rochester, NY 14622



Highlights
- 3000 E Ridge Road is a single-level building with recent updates, offering a world-class work setting for professional and medical office users.
- Experience direct access to Interstate 90 and NY Route 104, within a short drive of Downtown Rochester, offering employees an easy commute.
- Part of the Rochester MSA, known for its expertise in high-tech industries such as advanced manufacturing, life sciences, and software/IT.
- Campus-like setting featuring a conference facility, training rooms, a backup generator, an outdoor picnic area, and 20,000 SF of basement storage.
- Located in a residential setting near schools, hotels, hospitals, and national retailers, including Walmart, Target, Starbucks, Wegmans, and more.
All Available Spaces(3)
Display Rental Rate as
- Space
- Size
- Term
- Rental Rate
- Space Use
- Build-Out
- Available
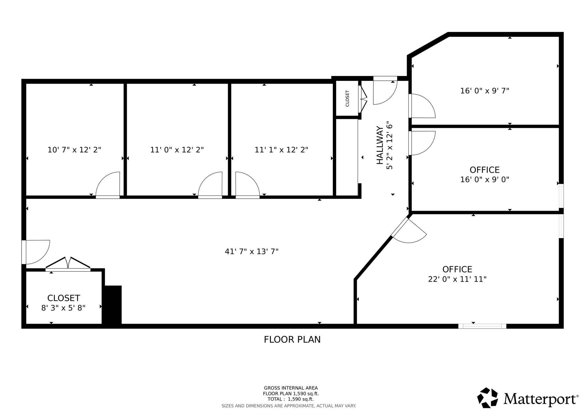
The first floor offers up to 5,000–15,000 SF of contiguous space available for lease at $12/SF with CAM at $4/SF under a modified gross service type. The space is partially built out, primarily designed as a call center, and is in excellent condition. It features a 10-foot ceiling height and is suitable for office or medical use. The layout is mostly open plan and includes all essential amenities such as air conditioning, central heat, Wi-Fi, and private restrooms within the space.
- Listed rate may not include certain utilities, building services and property expenses
- Mostly Open Floor Plan Layout
- 3 Conference Rooms
- Finished Ceilings: 10’10”
- Central Air and Heating
- Wi-Fi Connectivity
- Drop Ceilings
- Open-Plan
- Ideal for office or medical use
- Open plan with private restrooms
- Excellent condition, call center build
- Partially Built-Out as Call Center
- 7 Private Offices
- 80 Workstations
- Space is in Excellent Condition
- Private Restrooms
- Fully Carpeted
- Natural Light
- Up to 15,000 SF first-floor space
- Modified gross lease at $12/SF
- Includes AC, heat, and Wi-Fi
Now leasing coworking memberships and private office suites at 3000 East Ridge Road — a modern, amenity-rich workspace designed for productivity and convenience. Whether you’re a solo entrepreneur, remote professional, or growing team, this space offers flexible options to fit your needs. Choose from open coworking areas that foster collaboration or secure private offices that provide quiet, professional environments to meet clients and focus on your business. Property Features & Amenities: Flexible coworking memberships Private office suites 24/7 secure access High-speed internet Conference room access On-site gym Golf simulator Tenant lounge & break areas Ample on-site parking Convenient East Ridge Road location with easy access to major highways 3000 East Ridge Road blends work and lifestyle, giving you the ability to stay productive while enjoying premium on-site amenities. Contact us today to schedule a tour and secure your space.
- Listed rate may not include certain utilities, building services and property expenses
- 32 Private Offices
- 25 Workstations
- Space is in Excellent Condition
- Wi-Fi Connectivity
- Drop Ceilings
- Emergency Lighting
- Open-Plan
- Fully Built-Out as Standard Office
- 3 Conference Rooms
- Finished Ceilings: 10’ - 12’6”
- Central Air and Heating
- High Ceilings
- Natural Light
- Shower Facilities
- Smoke Detector
- Rate includes utilities, building services and property expenses
- 5 Private Offices
- 3 Workstations
- Space is in Excellent Condition
- Central Heating System
- Corner Space
- Natural Light
- Emergency Lighting
- Basement
- Smoke Detector
- Fully Built-Out as Standard Office
- 1 Conference Room
- Finished Ceilings: 10’
- Plug & Play
- Wi-Fi Connectivity
- Drop Ceilings
- Bicycle Storage
- Shower Facilities
- Open-Plan
| Space | Size | Term | Rental Rate | Space Use | Build-Out | Available |
| 1st Floor | 3,500-8,500 SF | Negotiable | $16.44 CAD/SF/YR $1.37 CAD/SF/MO $139,782 CAD/YR $11,648 CAD/MO | Office/Medical | Partial Build-Out | Now |
| 1st Floor | 50-10,000 SF | 1-20 Years | $16.44 CAD/SF/YR $1.37 CAD/SF/MO $164,449 CAD/YR $13,704 CAD/MO | Office | Full Build-Out | Now |
| 1st Floor, Ste 1 | 1,509 SF | 3-10 Years | $20.56 CAD/SF/YR $1.71 CAD/SF/MO $31,019 CAD/YR $2,585 CAD/MO | Office | Full Build-Out | 2026-06-01 |
1st Floor
| Size |
| 3,500-8,500 SF |
| Term |
| Negotiable |
| Rental Rate |
| $16.44 CAD/SF/YR $1.37 CAD/SF/MO $139,782 CAD/YR $11,648 CAD/MO |
| Space Use |
| Office/Medical |
| Build-Out |
| Partial Build-Out |
| Available |
| Now |
1st Floor
| Size |
| 50-10,000 SF |
| Term |
| 1-20 Years |
| Rental Rate |
| $16.44 CAD/SF/YR $1.37 CAD/SF/MO $164,449 CAD/YR $13,704 CAD/MO |
| Space Use |
| Office |
| Build-Out |
| Full Build-Out |
| Available |
| Now |
1st Floor, Ste 1
| Size |
| 1,509 SF |
| Term |
| 3-10 Years |
| Rental Rate |
| $20.56 CAD/SF/YR $1.71 CAD/SF/MO $31,019 CAD/YR $2,585 CAD/MO |
| Space Use |
| Office |
| Build-Out |
| Full Build-Out |
| Available |
| 2026-06-01 |
1st Floor
| Size | 3,500-8,500 SF |
| Term | Negotiable |
| Rental Rate | $16.44 CAD/SF/YR |
| Space Use | Office/Medical |
| Build-Out | Partial Build-Out |
| Available | Now |
The first floor offers up to 5,000–15,000 SF of contiguous space available for lease at $12/SF with CAM at $4/SF under a modified gross service type. The space is partially built out, primarily designed as a call center, and is in excellent condition. It features a 10-foot ceiling height and is suitable for office or medical use. The layout is mostly open plan and includes all essential amenities such as air conditioning, central heat, Wi-Fi, and private restrooms within the space.
- Listed rate may not include certain utilities, building services and property expenses
- Partially Built-Out as Call Center
- Mostly Open Floor Plan Layout
- 7 Private Offices
- 3 Conference Rooms
- 80 Workstations
- Finished Ceilings: 10’10”
- Space is in Excellent Condition
- Central Air and Heating
- Private Restrooms
- Wi-Fi Connectivity
- Fully Carpeted
- Drop Ceilings
- Natural Light
- Open-Plan
- Up to 15,000 SF first-floor space
- Ideal for office or medical use
- Modified gross lease at $12/SF
- Open plan with private restrooms
- Includes AC, heat, and Wi-Fi
- Excellent condition, call center build
1st Floor
| Size | 50-10,000 SF |
| Term | 1-20 Years |
| Rental Rate | $16.44 CAD/SF/YR |
| Space Use | Office |
| Build-Out | Full Build-Out |
| Available | Now |
Now leasing coworking memberships and private office suites at 3000 East Ridge Road — a modern, amenity-rich workspace designed for productivity and convenience. Whether you’re a solo entrepreneur, remote professional, or growing team, this space offers flexible options to fit your needs. Choose from open coworking areas that foster collaboration or secure private offices that provide quiet, professional environments to meet clients and focus on your business. Property Features & Amenities: Flexible coworking memberships Private office suites 24/7 secure access High-speed internet Conference room access On-site gym Golf simulator Tenant lounge & break areas Ample on-site parking Convenient East Ridge Road location with easy access to major highways 3000 East Ridge Road blends work and lifestyle, giving you the ability to stay productive while enjoying premium on-site amenities. Contact us today to schedule a tour and secure your space.
- Listed rate may not include certain utilities, building services and property expenses
- Fully Built-Out as Standard Office
- 32 Private Offices
- 3 Conference Rooms
- 25 Workstations
- Finished Ceilings: 10’ - 12’6”
- Space is in Excellent Condition
- Central Air and Heating
- Wi-Fi Connectivity
- High Ceilings
- Drop Ceilings
- Natural Light
- Emergency Lighting
- Shower Facilities
- Open-Plan
- Smoke Detector
1st Floor, Ste 1
| Size | 1,509 SF |
| Term | 3-10 Years |
| Rental Rate | $20.56 CAD/SF/YR |
| Space Use | Office |
| Build-Out | Full Build-Out |
| Available | 2026-06-01 |
- Rate includes utilities, building services and property expenses
- Fully Built-Out as Standard Office
- 5 Private Offices
- 1 Conference Room
- 3 Workstations
- Finished Ceilings: 10’
- Space is in Excellent Condition
- Plug & Play
- Central Heating System
- Wi-Fi Connectivity
- Corner Space
- Drop Ceilings
- Natural Light
- Bicycle Storage
- Emergency Lighting
- Shower Facilities
- Basement
- Open-Plan
- Smoke Detector
Property Overview
3000 E Ridge Road is a prestigious office building in Rochester, New York. Spanning 45,568 square feet on a single level, it is ideal for a regional or national company to establish its corporate headquarters or divide to accommodate multiple tenants. The building is designed to meet various professional office needs, and a portion can also be converted to support medical office use. Renovated in 2019, the campus-like setting offers a range of amenities, including a state-of-the-art conference facility, training and break rooms, controlled access, partitioned offices, and abundant natural light. Tenants also benefit from a backup generator, heavy electric capacity, a dedicated server room, and 20,000 square feet of basement storage. The property includes over 300 surface parking spaces for employees and clients and a spacious outdoor picnic area for relaxation. 3000 E Ridge Road is conveniently located within a 15- to 20-minute drive of Downtown Rochester, the Rochester Amtrak Station, and Frederick Douglass Greater Rochester International Airport. Tenants also enjoy direct access to Interstate 590 and NY Route 104. Nestled in a residential setting, the campus has amenities, including shopping centers, public schools, Riedman Health Center, and Rochester General Hospital. National retailers and businesses like Walmart Supercenter, Target, Starbucks, Wegmans, Dollar Tree, and Holiday Inn Express Rochester are all within a 3-mile radius. In the thriving Rochester metropolitan area, 3000 E Ridge Road benefits from a robust market known for its high-tech industries, including advanced manufacturing, life sciences, and software/IT. The region is home to prominent institutions such as the Rochester Institute of Technology and the University of Rochester, which produce graduates with in-demand programming, data mining, and cybersecurity skills. 3000 E Ridge Road presents a compelling opportunity for businesses to establish or expand their presence in a dynamic and growing market supported by a well-educated labor force.
- Controlled Access
- Conferencing Facility
- Storage Space
- Basement
- Central Heating
- Natural Light
- Partitioned Offices
- Wi-Fi
- Air Conditioning
Property Facts
Select Tenants
- Floor
- Tenant Name
- Industry
- 1st
- CSSI
- Real Estate
- 1st
- Stahl Enterprises INC.
- Real Estate
- 1st
- Weller Financial Group
- Finance and Insurance
Presented by
3000 E Ridge Rd
Hmm, there seems to have been an error sending your message. Please try again.
Thanks! Your message was sent.









