Your email has been sent.
Highlights
- Located in Roswell’s designated Opportunity Zone.
- One rear drive-in door with 20’9” ceiling clearance.
- Fully sprinkled building for enhanced fire safety measures.
Features
All Available Spaces(3)
Display Rental Rate as
- Space
- Size
- Term
- Rental Rate
- Space Use
- Build-Out
- Available
Located in Roswell’s designated Opportunity Zone.
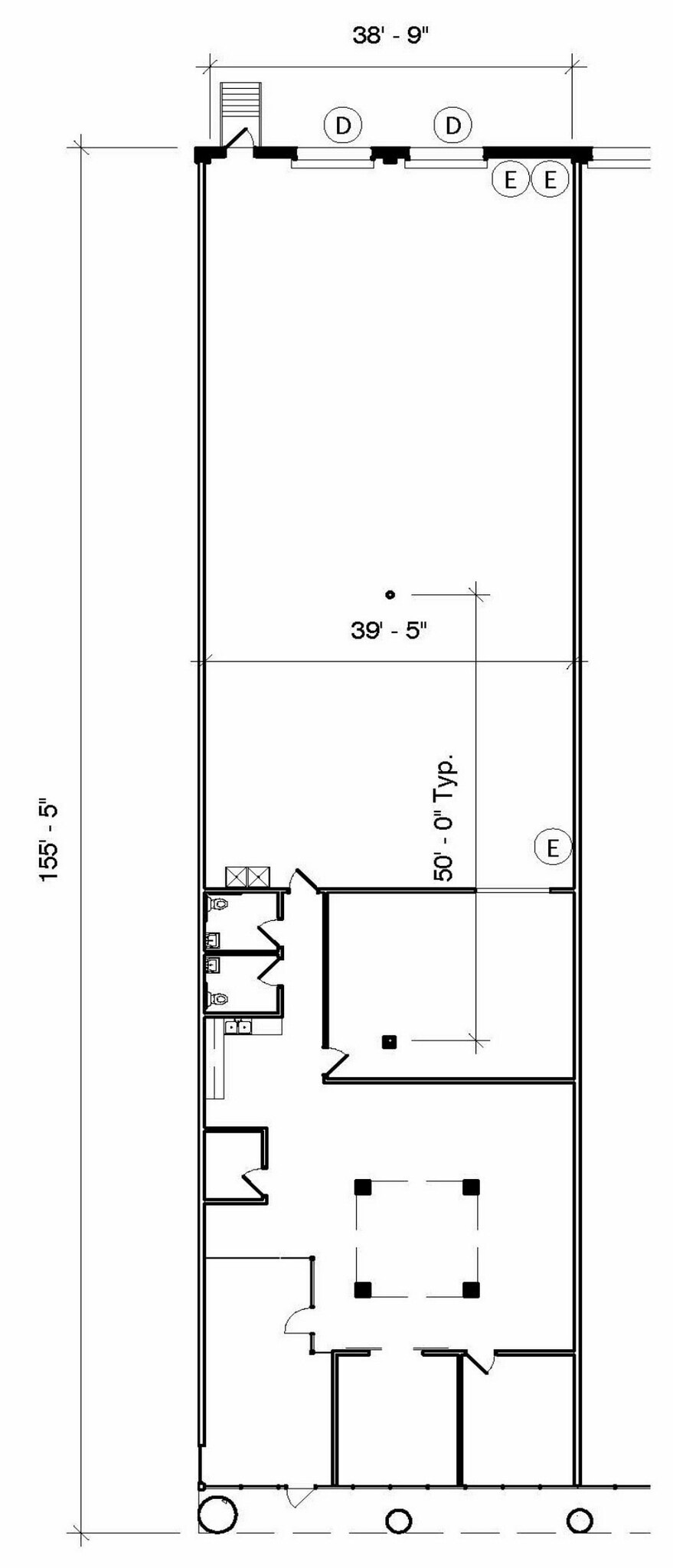
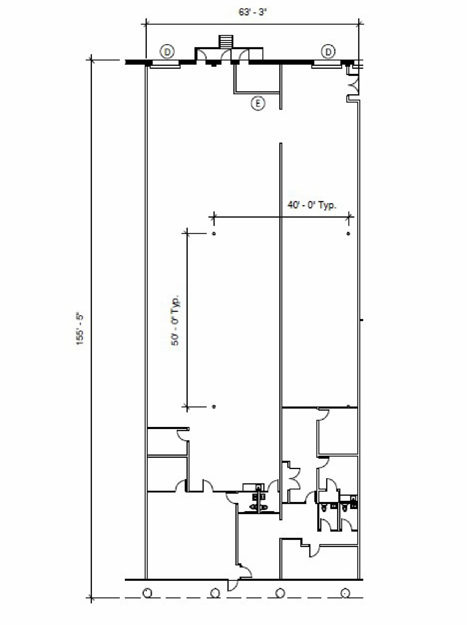
- Includes 3,627 SF of dedicated office space
- Central Air Conditioning
- 1 Drive Bay
- Office/showroom with drive-in and GA-400 access.
- Includes 2,689 SF of dedicated office space
- 2 Loading Docks
21’6” Clear Ceiling Height - Fully Sprinklered Building - 200 amp 3 Phase Electrical Service - Parking: 1 Space per 750 SF Rentable - Located in Roswell’s “Opportunity Zone”
- Includes 2,441 SF of dedicated office space
- 2 Loading Docks
| Space | Size | Term | Rental Rate | Space Use | Build-Out | Available |
| 1st Floor - 300 | 6,019 SF | Negotiable | Upon Request Upon Request Upon Request Upon Request | Industrial | - | Now |
| 1st Floor - 600 | 6,200 SF | Negotiable | Upon Request Upon Request Upon Request Upon Request | Industrial | Full Build-Out | Now |
| 1st Floor - 700 | 9,500 SF | Negotiable | Upon Request Upon Request Upon Request Upon Request | Industrial | Full Build-Out | Now |
1st Floor - 300
| Size |
| 6,019 SF |
| Term |
| Negotiable |
| Rental Rate |
| Upon Request Upon Request Upon Request Upon Request |
| Space Use |
| Industrial |
| Build-Out |
| - |
| Available |
| Now |
1st Floor - 600
| Size |
| 6,200 SF |
| Term |
| Negotiable |
| Rental Rate |
| Upon Request Upon Request Upon Request Upon Request |
| Space Use |
| Industrial |
| Build-Out |
| Full Build-Out |
| Available |
| Now |
1st Floor - 700
| Size |
| 9,500 SF |
| Term |
| Negotiable |
| Rental Rate |
| Upon Request Upon Request Upon Request Upon Request |
| Space Use |
| Industrial |
| Build-Out |
| Full Build-Out |
| Available |
| Now |
1st Floor - 300
| Size | 6,019 SF |
| Term | Negotiable |
| Rental Rate | Upon Request |
| Space Use | Industrial |
| Build-Out | - |
| Available | Now |
Located in Roswell’s designated Opportunity Zone.
- Includes 3,627 SF of dedicated office space
- 1 Drive Bay
- Central Air Conditioning
- Office/showroom with drive-in and GA-400 access.
1st Floor - 600
| Size | 6,200 SF |
| Term | Negotiable |
| Rental Rate | Upon Request |
| Space Use | Industrial |
| Build-Out | Full Build-Out |
| Available | Now |
- Includes 2,689 SF of dedicated office space
- 2 Loading Docks
1st Floor - 700
| Size | 9,500 SF |
| Term | Negotiable |
| Rental Rate | Upon Request |
| Space Use | Industrial |
| Build-Out | Full Build-Out |
| Available | Now |
21’6” Clear Ceiling Height - Fully Sprinklered Building - 200 amp 3 Phase Electrical Service - Parking: 1 Space per 750 SF Rentable - Located in Roswell’s “Opportunity Zone”
- Includes 2,441 SF of dedicated office space
- 2 Loading Docks
Property Overview
Located on Northfield Way just off Old Roswell Road, and minutes from GA 400 and Mansell Road.
Warehouse Facility Facts
Presented by
3000 Northfield Pl
Hmm, there seems to have been an error sending your message. Please try again.
Thanks! Your message was sent.







