Your email has been sent.
Highlights
- Adjacent to new Hyatt Regency, as well as Hilton, Holiday Inn, SpringHill Suites, and more.
- Fitness center with showers and towel service
- Vending areas in each building
- One block to light-rail transit station and seconds from Mall of America
- On-site D.Brian’s Deli and Catering
- Abundant parking (underground and surface)
All Available Space(1)
Display Rental Rate as
- Space
- Size
- Term
- Rental Rate
- Space Use
- Build-Out
- Available
- Lease rate does not include utilities, property expenses or building services
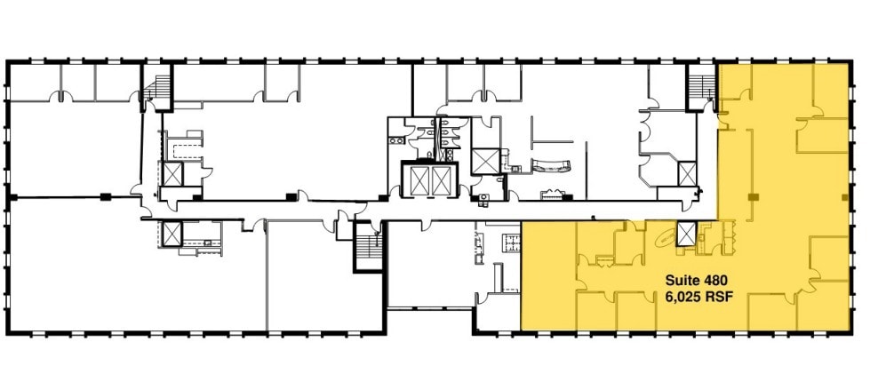
- 9 Private Offices
- Fully Built-Out as Standard Office
- 1 Conference Room
| Space | Size | Term | Rental Rate | Space Use | Build-Out | Available |
| 4th Floor, Ste 480 | 6,025 SF | Negotiable | $17.75 CAD/SF/YR $1.48 CAD/SF/MO $106,965 CAD/YR $8,914 CAD/MO | Office | Full Build-Out | 2026-07-01 |
4th Floor, Ste 480
| Size |
| 6,025 SF |
| Term |
| Negotiable |
| Rental Rate |
| $17.75 CAD/SF/YR $1.48 CAD/SF/MO $106,965 CAD/YR $8,914 CAD/MO |
| Space Use |
| Office |
| Build-Out |
| Full Build-Out |
| Available |
| 2026-07-01 |
4th Floor, Ste 480
| Size | 6,025 SF |
| Term | Negotiable |
| Rental Rate | $17.75 CAD/SF/YR |
| Space Use | Office |
| Build-Out | Full Build-Out |
| Available | 2026-07-01 |
- Lease rate does not include utilities, property expenses or building services
- Fully Built-Out as Standard Office
- 9 Private Offices
- 1 Conference Room
Property Overview
3001 Metro Drive delivers a highly functional, amenity-rich office environment in Bloomington’s Metro Office Park, ideally located just off I-494 and 34th Avenue. With immediate access to major transportation corridors and exceptional proximity to regional amenities, the property offers a compelling office solution for a wide range of users. Recognized with an ENERGY STAR® rating by the U.S. Environmental Protection Agency (EPA), the building combines efficient operations with a strong tenant experience. Shared Metro Office Park amenities include on-site deli and catering services, conference/seminar rooms, an exercise facility, Metro Hair Design, and interior climate-controlled storage available for a nominal fee. The location is a standout feature: one block to the light-rail transit system, on an MTC bus route, seconds from Mall of America, and equidistant to both downtown Minneapolis and downtown St. Paul. Combined with excellent access to MSP Airport and surrounding hotels, dining, and retail, 3001 Metro Drive offers outstanding convenience, connectivity, and value in the heart of the South Loop / Airport submarket.
- Bus Line
- Controlled Access
- Commuter Rail
- Conferencing Facility
- Convenience Store
- Fireplace
- Fitness Center
- Food Service
- Property Manager on Site
- Restaurant
- Security System
- Energy Star Labeled
- Storage Space
- Wi-Fi
- Air Conditioning
Property Facts
Presented by
3001 Metro Dr
Hmm, there seems to have been an error sending your message. Please try again.
Thanks! Your message was sent.





