Log In/Sign Up
Your email has been sent.
Investment Highlights
- flexibility for owner's duplex with additional private access to basement from street
- Highly sought after residential area of Brooklyn next to Historic acreage.
- Full back yard garden and patio area
Executive Summary
Property available for end user or 1031 Exchange. Contact for RR and building expenses.
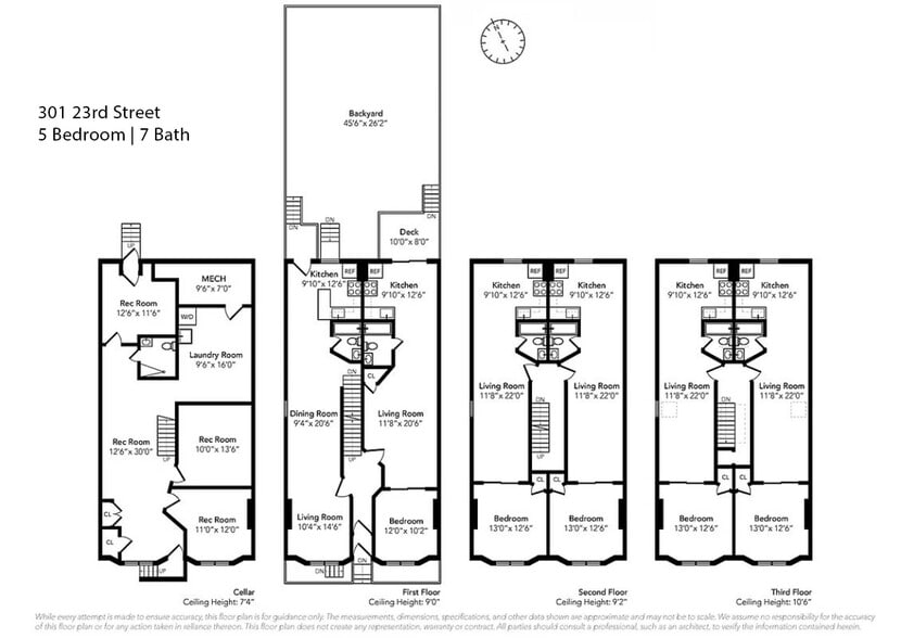
As a 1031 the property will have one vacant unit in this otherwise fully-rented property. Six units total in well-maintained building, each unit has a renovated kitchen and bathroom. Building carries low annual taxes and expenses, yet provides a strong NOI. All units are RS, but at competitive rental prices for the neighborhood. The full floor cellar has updated mechanicals and gas boiler.
As a owner occupied purchase the first floor unit is configured as a duplex, move in ready with additional access to entire lower level. With the existing separate entrance, the LL could be configured for whole building use to access laundry.
Property Information
Neighborhood – Brooklyn, Greenwood Heights
Near Historic – Greenwood Cemetery
Block & Lot – 00900-0067
Lot Dimensions – 26.17 ft x 100.17 ft
Lot Sq Ft – 2,621
Residential Sq Ft – 3,900
Average Residential Unit Size – approx. 650 sq ft
Building Class – Five to Six Families (C2)
Residential Sq Ft – 3,900
Building Dimensions – 26 ft x 50 ft
Buildings on Lot – 1
Stories – 3
Roof Height – 36 ft
Proximity – Semi-attached
Building Material – C block + brick Grade C
Structure Type – Walk-up apartments
Zoning Districts – R6B
Residential FAR – 2
Facility FAR – 2
Current FAR – 1.49
Max Buildable Area – 5,242 sq ft
Current Built Area – 3,905 sq ft
Buildable Area – 1,337 sq ft
As a 1031 the property will have one vacant unit in this otherwise fully-rented property. Six units total in well-maintained building, each unit has a renovated kitchen and bathroom. Building carries low annual taxes and expenses, yet provides a strong NOI. All units are RS, but at competitive rental prices for the neighborhood. The full floor cellar has updated mechanicals and gas boiler.
As a owner occupied purchase the first floor unit is configured as a duplex, move in ready with additional access to entire lower level. With the existing separate entrance, the LL could be configured for whole building use to access laundry.
Property Information
Neighborhood – Brooklyn, Greenwood Heights
Near Historic – Greenwood Cemetery
Block & Lot – 00900-0067
Lot Dimensions – 26.17 ft x 100.17 ft
Lot Sq Ft – 2,621
Residential Sq Ft – 3,900
Average Residential Unit Size – approx. 650 sq ft
Building Class – Five to Six Families (C2)
Residential Sq Ft – 3,900
Building Dimensions – 26 ft x 50 ft
Buildings on Lot – 1
Stories – 3
Roof Height – 36 ft
Proximity – Semi-attached
Building Material – C block + brick Grade C
Structure Type – Walk-up apartments
Zoning Districts – R6B
Residential FAR – 2
Facility FAR – 2
Current FAR – 1.49
Max Buildable Area – 5,242 sq ft
Current Built Area – 3,905 sq ft
Buildable Area – 1,337 sq ft
Property Facts
Amenities
Unit Amenities
- Hardwood Floors
- Garden
- Porch
1 1
Exceptionally walkable
100/100
Fairly drivable
50/100
Exceptional public transit
90/100
Moderately bikeable
60/100
Property Taxes
| Parcel Number | 00900-0067 | Improvements Assessment | $781,205 CAD |
| Land Assessment | $7,347 CAD | Total Assessment | $788,552 CAD |
Property Taxes
Parcel Number
00900-0067
Land Assessment
$7,347 CAD
Improvements Assessment
$781,205 CAD
Total Assessment
$788,552 CAD
1 of 12
Videos
Matterport 3D Exterior
Matterport 3D Tour
Photos
Street View
Street
Map
1 of 1
Presented by
301 23rd St
Already a member? Log In
Hmm, there seems to have been an error sending your message. Please try again.
Thanks! Your message was sent.



