Log In/Sign Up
Your email has been sent.
Investment Highlights
- Premium office condo featuring 12-foot ceilings and operable windows for natural ventilation.
- Convenient connectivity to I-680, I-580, and CA-84 within minutes.
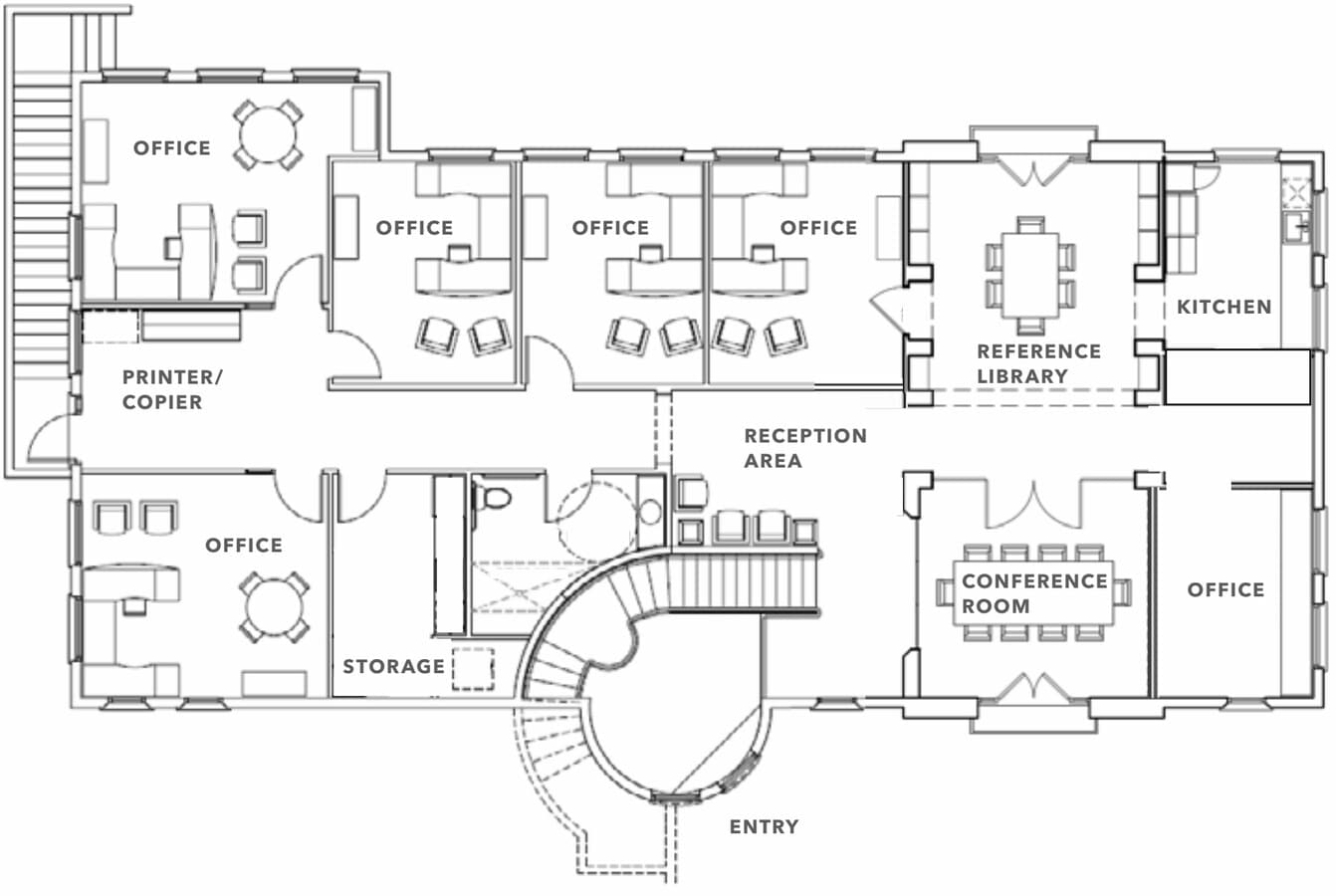
- Functional layout with six private offices, a conference room, and a kitchen/break room.
- Located one block from Main Street with walkable access to restaurants, retail, and amenities.
- Newer construction with ample on-site parking for staff and visitors.
- Offered at a competitive price below recent market comparables.
1 Unit Available
- Unit
- Unit Size
- Condo Use
- Price
- NOI
| Sale Type | Investment or Owner User |
| Sale Type | Investment or Owner User |
Description
This premium office condominium at 315–317 Ray Street offers an exceptional opportunity to own a beautifully designed workspace in the heart of Pleasanton, California. Featuring approximately 3,001 square feet, the property boasts a high-end buildout with 12-foot ceilings, operable windows, and abundant natural light. The layout includes six private offices, a conference room, a reception area, a kitchen/break room, and dedicated storage, providing a functional and professional environment for a variety of business uses.
Located just one block from Main Street, the property offers unmatched walkability to Pleasanton’s vibrant downtown, including restaurants, shops, and essential services. Its strategic position provides easy access to major transportation routes, including I-680 and I-580, both within a 12-minute drive, and CA-84 just 10 minutes away. Ample on-site parking enhances convenience for employees and clients alike.
Located just one block from Main Street, the property offers unmatched walkability to Pleasanton’s vibrant downtown, including restaurants, shops, and essential services. Its strategic position provides easy access to major transportation routes, including I-680 and I-580, both within a 12-minute drive, and CA-84 just 10 minutes away. Ample on-site parking enhances convenience for employees and clients alike.
Sale Notes
This newer construction office condo combines modern design with a prime location, making it an ideal choice for professional firms, medical practices, or boutique businesses seeking ownership in a thriving East Bay community. Offered at $1,688,000 ($562 per square foot), this property is priced below recent comparable sales, presenting a compelling value for owner-users or investors looking for long-term stability in a high-demand market.
| Unit | Unit Size | Condo Use | Price | NOI |
| Unit 315-317 | 3,001 SF | Office | $2,326,300 CAD ($775.18 CAD/SF) | - |
Unit 315-317
| Unit Size |
| 3,001 SF |
| Condo Use |
| Office |
| Price |
| $2,326,300 CAD ($775.18 CAD/SF) |
| NOI |
| - |
1 of 1
Videos
Matterport 3D Exterior
Matterport 3D Tour
Photos
Street View
Street
Map
Unit 315-317
| Unit Size | 3,001 SF |
| Condo Use | Office |
| Price | $2,326,300 CAD ($775.18 CAD/SF) |
| NOI | - |
| Sale Type | Investment or Owner User |
| Description | |
| This premium office condominium at 315–317 Ray Street offers an exceptional opportunity to own a beautifully designed workspace in the heart of Pleasanton, California. Featuring approximately 3,001 square feet, the property boasts a high-end buildout with 12-foot ceilings, operable windows, and abundant natural light. The layout includes six private offices, a conference room, a reception area, a kitchen/break room, and dedicated storage, providing a functional and professional environment for a variety of business uses.<br> <br> Located just one block from Main Street, the property offers unmatched walkability to Pleasanton’s vibrant downtown, including restaurants, shops, and essential services. Its strategic position provides easy access to major transportation routes, including I-680 and I-580, both within a 12-minute drive, and CA-84 just 10 minutes away. Ample on-site parking enhances convenience for employees and clients alike.</li></ul> | |
| Sale Notes | |
| This newer construction office condo combines modern design with a prime location, making it an ideal choice for professional firms, medical practices, or boutique businesses seeking ownership in a thriving East Bay community. Offered at $1,688,000 ($562 per square foot), this property is priced below recent comparable sales, presenting a compelling value for owner-users or investors looking for long-term stability in a high-demand market.</li></ul> |
Property Facts
The following property facts and amenities apply to the entire building. Details for individual condo units may vary and are listed in the unit information above.
| Total Building Size | 17,130 SF | Typical Floor Size | 14,129 SF |
| Property Type | Office (Condo) | Year Built | 2005 |
| Building Class | B | Lot Size | 1.53 AC |
| Floors | 2 | Parking Ratio | 2.34/1,000 SF |
| Zoning | PUD-O - Planned Urban Development, Office | ||
| Total Building Size | 17,130 SF |
| Property Type | Office (Condo) |
| Building Class | B |
| Floors | 2 |
| Typical Floor Size | 14,129 SF |
| Year Built | 2005 |
| Lot Size | 1.53 AC |
| Parking Ratio | 2.34/1,000 SF |
| Zoning | PUD-O - Planned Urban Development, Office |
Amenities
- Courtyard
Moderately walkable
60/100
Very drivable
80/100
Some public transit
40/100
Fairly bikeable
50/100
1 of 9
Videos
Matterport 3D Exterior
Matterport 3D Tour
Photos
Street View
Street
Map
Presented by
301-325 Ray St
Already a member? Log In
Hmm, there seems to have been an error sending your message. Please try again.
Thanks! Your message was sent.





