Your email has been sent.
Highlights
- Prime location in the South Financial District with immediate access to I-80, BART, MUNI, Caltrain, and the Salesforce Transit Center.
- Multiple creative suites offering exposed ceilings, conference buildouts, kitchen areas, private offices, and premium views with outdoor deck.
- Modern amenities including fitness center, showers, bike storage, garage parking, 24/7 security, and on-site building management.
- Vibrant walkable neighborhood surrounded by dining, retail, services, parks, and waterfront access along the Embarcadero.
All Available Spaces(8)
Display Rental Rate as
- Space
- Size
- Term
- Rental Rate
- Space Use
- Build-Out
- Available
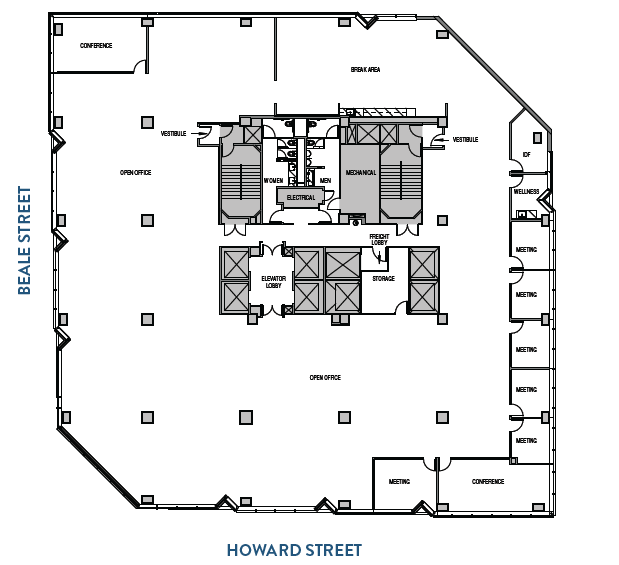
This creative suite offers an open office layout with two large conference rooms, six small conference rooms, a dedicated mother’s room, exposed ceilings, and a break room.
- Fully Built-Out as Standard Office
- 2 Conference Rooms
- Can be combined with additional space(s) for up to 31,147 SF of adjacent space
- 6 Private Offices
- Space is in Excellent Condition
- Secure Storage
This suite features four medium conference rooms, three private offices, a boardroom, five phone rooms, a kitchen and break area, an open work area, double-door elevator lobby access, and multiple IT and wellness rooms.
- Fully Built-Out as Standard Office
- 3 Private Offices
- Space is in Excellent Condition
- Kitchen
- Bay Area Views
- Mostly Open Floor Plan Layout
- 5 Conference Rooms
- Can be combined with additional space(s) for up to 31,147 SF of adjacent space
- Secure Storage
This creative suite includes two large conference rooms, five small conference rooms, exposed ceilings, a break room, and five phone rooms.
- Fully Built-Out as Standard Office
- 3 Conference Rooms
- Can be combined with additional space(s) for up to 31,148 SF of adjacent space
- Bay Area Views
- Mostly Open Floor Plan Layout
- Space is in Excellent Condition
- Exposed Ceiling
This open-plan creative suite provides one large conference room, five small conference rooms, exposed ceilings, a break area, five phone rooms, and a mother’s room.
- Fully Built-Out as Standard Office
- 5 Private Offices
- Space is in Excellent Condition
- Exposed Ceiling
- Open Floor Plan Layout
- 6 Conference Rooms
- Can be combined with additional space(s) for up to 31,148 SF of adjacent space
- Bay Area Views
Creative suite open office plan -1 large conference room, 3 small conference rooms, 1 phone room, Open office area Break area, Exposed ceiling.
- Open Floor Plan Layout
- 4 Conference Rooms
This suite is currently in white-box condition and offers excellent natural light and expansive views.
- Partially Built-Out as Standard Office
- Natural Light
- Mostly Open Floor Plan Layout
- Bay Area Views
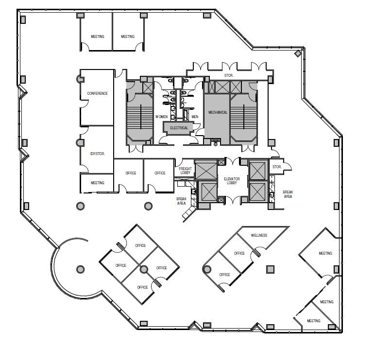
This suite includes one large conference room, six small to medium conference rooms, eight private offices, a kitchen and break area, IT and storage rooms, wellness rooms, and a landlord willing to deliver a turnkey buildout.
- Fully Built-Out as Standard Office
- 7 Conference Rooms
- Secure Storage
- 8 Private Offices
- Kitchen
- Bay Area Views
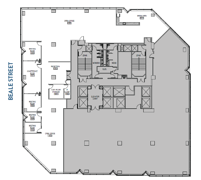
This creative suite features two large conference rooms, two medium conference rooms, a dramatic twenty-foot exposed ceiling, an open kitchen and break area, a private outdoor deck, three private offices, IDF and storage rooms, and panoramic city and bay views. [attachment (39) | PDF]
- Fully Built-Out as Standard Office
- 3 Private Offices
- Finished Ceilings: 20’
- Kitchen
- Secure Storage
- Mostly Open Floor Plan Layout
- 4 Conference Rooms
- Space is in Excellent Condition
- Exposed Ceiling
- Bay Area Views
| Space | Size | Term | Rental Rate | Space Use | Build-Out | Available |
| 3rd Floor, Ste 300 | 15,574 SF | Negotiable | Upon Request Upon Request Upon Request Upon Request | Office | Full Build-Out | Now |
| 4th Floor, Ste 400 | 15,573 SF | Negotiable | Upon Request Upon Request Upon Request Upon Request | Office | Full Build-Out | Now |
| 6th Floor, Ste 600 | 15,574 SF | Negotiable | Upon Request Upon Request Upon Request Upon Request | Office | Full Build-Out | Now |
| 7th Floor, Ste 700 | 15,574 SF | Negotiable | Upon Request Upon Request Upon Request Upon Request | Office | Full Build-Out | Now |
| 8th Floor, Ste 850 | 4,867 SF | Negotiable | Upon Request Upon Request Upon Request Upon Request | Office | - | 2026-08-01 |
| 10th Floor, Ste 1030 | 7,450 SF | Negotiable | Upon Request Upon Request Upon Request Upon Request | Office | Partial Build-Out | Now |
| 19th Floor, Ste 1900 | 14,455 SF | Negotiable | Upon Request Upon Request Upon Request Upon Request | Office | Full Build-Out | Now |
| 22nd Floor, Ste 2200 | 7,819 SF | Negotiable | Upon Request Upon Request Upon Request Upon Request | Office | Full Build-Out | Now |
3rd Floor, Ste 300
| Size |
| 15,574 SF |
| Term |
| Negotiable |
| Rental Rate |
| Upon Request Upon Request Upon Request Upon Request |
| Space Use |
| Office |
| Build-Out |
| Full Build-Out |
| Available |
| Now |
4th Floor, Ste 400
| Size |
| 15,573 SF |
| Term |
| Negotiable |
| Rental Rate |
| Upon Request Upon Request Upon Request Upon Request |
| Space Use |
| Office |
| Build-Out |
| Full Build-Out |
| Available |
| Now |
6th Floor, Ste 600
| Size |
| 15,574 SF |
| Term |
| Negotiable |
| Rental Rate |
| Upon Request Upon Request Upon Request Upon Request |
| Space Use |
| Office |
| Build-Out |
| Full Build-Out |
| Available |
| Now |
7th Floor, Ste 700
| Size |
| 15,574 SF |
| Term |
| Negotiable |
| Rental Rate |
| Upon Request Upon Request Upon Request Upon Request |
| Space Use |
| Office |
| Build-Out |
| Full Build-Out |
| Available |
| Now |
8th Floor, Ste 850
| Size |
| 4,867 SF |
| Term |
| Negotiable |
| Rental Rate |
| Upon Request Upon Request Upon Request Upon Request |
| Space Use |
| Office |
| Build-Out |
| - |
| Available |
| 2026-08-01 |
10th Floor, Ste 1030
| Size |
| 7,450 SF |
| Term |
| Negotiable |
| Rental Rate |
| Upon Request Upon Request Upon Request Upon Request |
| Space Use |
| Office |
| Build-Out |
| Partial Build-Out |
| Available |
| Now |
19th Floor, Ste 1900
| Size |
| 14,455 SF |
| Term |
| Negotiable |
| Rental Rate |
| Upon Request Upon Request Upon Request Upon Request |
| Space Use |
| Office |
| Build-Out |
| Full Build-Out |
| Available |
| Now |
22nd Floor, Ste 2200
| Size |
| 7,819 SF |
| Term |
| Negotiable |
| Rental Rate |
| Upon Request Upon Request Upon Request Upon Request |
| Space Use |
| Office |
| Build-Out |
| Full Build-Out |
| Available |
| Now |
3rd Floor, Ste 300
| Size | 15,574 SF |
| Term | Negotiable |
| Rental Rate | Upon Request |
| Space Use | Office |
| Build-Out | Full Build-Out |
| Available | Now |
This creative suite offers an open office layout with two large conference rooms, six small conference rooms, a dedicated mother’s room, exposed ceilings, and a break room.
- Fully Built-Out as Standard Office
- 6 Private Offices
- 2 Conference Rooms
- Space is in Excellent Condition
- Can be combined with additional space(s) for up to 31,147 SF of adjacent space
- Secure Storage
4th Floor, Ste 400
| Size | 15,573 SF |
| Term | Negotiable |
| Rental Rate | Upon Request |
| Space Use | Office |
| Build-Out | Full Build-Out |
| Available | Now |
This suite features four medium conference rooms, three private offices, a boardroom, five phone rooms, a kitchen and break area, an open work area, double-door elevator lobby access, and multiple IT and wellness rooms.
- Fully Built-Out as Standard Office
- Mostly Open Floor Plan Layout
- 3 Private Offices
- 5 Conference Rooms
- Space is in Excellent Condition
- Can be combined with additional space(s) for up to 31,147 SF of adjacent space
- Kitchen
- Secure Storage
- Bay Area Views
6th Floor, Ste 600
| Size | 15,574 SF |
| Term | Negotiable |
| Rental Rate | Upon Request |
| Space Use | Office |
| Build-Out | Full Build-Out |
| Available | Now |
This creative suite includes two large conference rooms, five small conference rooms, exposed ceilings, a break room, and five phone rooms.
- Fully Built-Out as Standard Office
- Mostly Open Floor Plan Layout
- 3 Conference Rooms
- Space is in Excellent Condition
- Can be combined with additional space(s) for up to 31,148 SF of adjacent space
- Exposed Ceiling
- Bay Area Views
7th Floor, Ste 700
| Size | 15,574 SF |
| Term | Negotiable |
| Rental Rate | Upon Request |
| Space Use | Office |
| Build-Out | Full Build-Out |
| Available | Now |
This open-plan creative suite provides one large conference room, five small conference rooms, exposed ceilings, a break area, five phone rooms, and a mother’s room.
- Fully Built-Out as Standard Office
- Open Floor Plan Layout
- 5 Private Offices
- 6 Conference Rooms
- Space is in Excellent Condition
- Can be combined with additional space(s) for up to 31,148 SF of adjacent space
- Exposed Ceiling
- Bay Area Views
8th Floor, Ste 850
| Size | 4,867 SF |
| Term | Negotiable |
| Rental Rate | Upon Request |
| Space Use | Office |
| Build-Out | - |
| Available | 2026-08-01 |
Creative suite open office plan -1 large conference room, 3 small conference rooms, 1 phone room, Open office area Break area, Exposed ceiling.
- Open Floor Plan Layout
- 4 Conference Rooms
10th Floor, Ste 1030
| Size | 7,450 SF |
| Term | Negotiable |
| Rental Rate | Upon Request |
| Space Use | Office |
| Build-Out | Partial Build-Out |
| Available | Now |
This suite is currently in white-box condition and offers excellent natural light and expansive views.
- Partially Built-Out as Standard Office
- Mostly Open Floor Plan Layout
- Natural Light
- Bay Area Views
19th Floor, Ste 1900
| Size | 14,455 SF |
| Term | Negotiable |
| Rental Rate | Upon Request |
| Space Use | Office |
| Build-Out | Full Build-Out |
| Available | Now |
This suite includes one large conference room, six small to medium conference rooms, eight private offices, a kitchen and break area, IT and storage rooms, wellness rooms, and a landlord willing to deliver a turnkey buildout.
- Fully Built-Out as Standard Office
- 8 Private Offices
- 7 Conference Rooms
- Kitchen
- Secure Storage
- Bay Area Views
22nd Floor, Ste 2200
| Size | 7,819 SF |
| Term | Negotiable |
| Rental Rate | Upon Request |
| Space Use | Office |
| Build-Out | Full Build-Out |
| Available | Now |
This creative suite features two large conference rooms, two medium conference rooms, a dramatic twenty-foot exposed ceiling, an open kitchen and break area, a private outdoor deck, three private offices, IDF and storage rooms, and panoramic city and bay views. [attachment (39) | PDF]
- Fully Built-Out as Standard Office
- Mostly Open Floor Plan Layout
- 3 Private Offices
- 4 Conference Rooms
- Finished Ceilings: 20’
- Space is in Excellent Condition
- Kitchen
- Exposed Ceiling
- Secure Storage
- Bay Area Views
Property Overview
01 Howard offers modern creative workspaces surrounded by world class dining, premier transit connectivity, and a lively professional community. The building provides a polished corporate environment supported by 24/7 security, on-site management, pre-built ISP, garage parking, and extensive tenant amenities including a fitness center, showers, and bike storage. A major lobby renovation is underway for 2026, elevating the arrival experience and long-term value for occupants. Tenants benefit from immediate access to I-80 and the Bay Bridge, along with exceptional proximity to BART, MUNI, Caltrain, and the Salesforce Transit Center. The neighborhood offers seamless walkability to the Embarcadero, Spear Street Corridor, Transbay Terminal, and a wide mix of shops, services, and outdoor spaces. Multiple turnkey and creative suites are now available, ranging from open collaborative plans to premium trophy space with outdoor deck access and exceptional city and bay views. Many suites include exposed ceilings, conference room buildouts, wellness rooms, private offices, and full kitchen or break areas. With flexible configurations and top-tier amenities at every level, 301 Howard provides a best-in-class workspace solution for companies seeking a highly accessible, modern office presence in a prestigious downtown location.
- Bus Line
- Commuter Rail
- Metro/Subway
- Property Manager on Site
- Restaurant
- Energy Star Labeled
- Roof Terrace
- Balcony
Property Facts
Presented by
301 Howard St
Hmm, there seems to have been an error sending your message. Please try again.
Thanks! Your message was sent.



















