Your email has been sent.
Highlights
- Prime location on Queen Street, Tappahannock’s main commercial corridor.
- Excellent visibility and access with strong local and regional traffic.
- Ideal for retail, service businesses, contractors, or hybrid showroom/warehouse users.
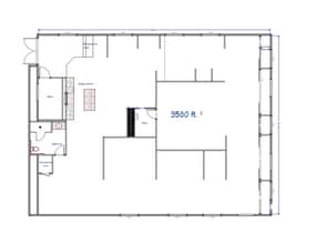
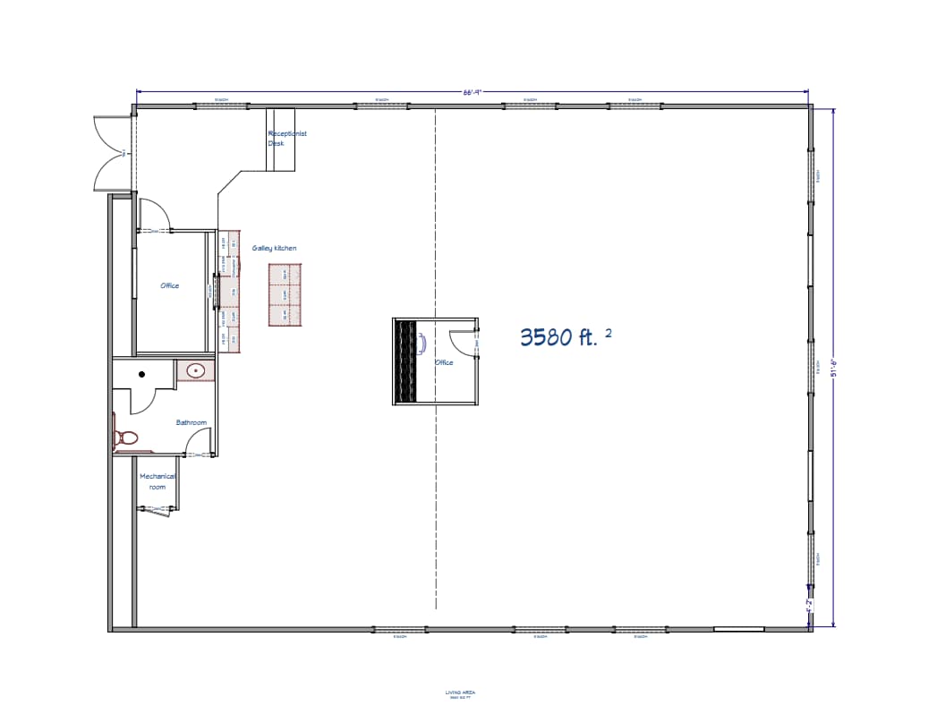
- ±3,580 SF flexible space for retail, showroom, flex, or light industrial use.
- CG-2 zoning allows a wide range of commercial and industrial uses.
- Located near national retailers and established local businesses in a growing market.
Space Availability (1)
Display Rental Rate as
- Space
- Size
- Term
- Rental Rate
- Rent Type
| Space | Size | Term | Rental Rate | Rent Type | ||
| 1st Floor - D | 3,580 SF | Negotiable | $16.42 CAD/SF/YR $1.37 CAD/SF/MO $58,791 CAD/YR $4,899 CAD/MO | Modified Gross |
1st Floor - D
303 Queen Street, Tappahannock, VA 22560 Position your business for success at 303 Queen Street, a highly adaptable ±3,580 SF commercial space located in the heart of Tappahannock’s primary commercial corridor. This property is engineered for modern hybrid business models, offering the perfect blend of high-visibility retail/showroom space and functional back-of-house storage or light industrial capacity. Property Highlights Size: ±3,580 SF of versatile floor area. Zoning: CG-2 (General Commercial) – Permits a wide array of uses including retail, professional services, wholesale, and light industrial. Layout: Flexible configuration capable of supporting a storefront, showroom, office buildout, and warehouse/storage components. Location: Strategic positioning with excellent visibility and exposure to high-volume local and regional traffic. Market Reach: Situated near national retailers and key thoroughfares serving the growing Northern Neck region. Ideal Use Cases The property’s broad zoning and adaptable layout make it a premier choice for: Retail & Showroom: Boutique shops, equipment sales, or specialty retail. Flex & Contractor Space: Trade professionals needing office space with equipment/material storage. Hybrid Concepts: Businesses requiring a customer-facing front with light assembly or distribution in the rear. Professional Services: Firms seeking high-visibility office or service-oriented space. Location Advantage Located along one of Tappahannock’s most active commercial arteries, 303 Queen Street offers the connectivity and regional access necessary for operational efficiency and customer growth.
- Listed rate may not include certain utilities, building services and property expenses
- Space is in Excellent Condition
- Central Air and Heating
- Reception Area
- Private Restrooms
- Ideal for warehouse/showroom/light industrial uses
- CG-2 zoning allows a wide range of uses
- Prime Tappahannock location!
- Ample parking on site
Rent Types
The rent amount and type that the tenant (lessee) will be responsible to pay to the landlord (lessor) throughout the lease term is negotiated prior to both parties signing a lease agreement. The rent type will vary depending upon the services provided. For example, triple net rents are typically lower than full service rents due to additional expenses the tenant is required to pay in addition to the base rent. Contact the listing broker for a full understanding of any associated costs or additional expenses for each rent type.
1. Full Service: A rental rate that includes normal building standard services as provided by the landlord within a base year rental.
2. Double Net (NN): Tenant pays for only two of the building expenses; the landlord and tenant determine the specific expenses prior to signing the lease agreement.
3. Triple Net (NNN): A lease in which the tenant is responsible for all expenses associated with their proportional share of occupancy of the building.
4. Modified Gross: Modified Gross is a general type of lease rate where typically the tenant will be responsible for their proportional share of one or more of the expenses. The landlord will pay the remaining expenses. See the below list of common Modified Gross rental rate structures: 4. Plus All Utilities: A type of Modified Gross Lease where the tenant is responsible for their proportional share of utilities in addition to the rent. 4. Plus Cleaning: A type of Modified Gross Lease where the tenant is responsible for their proportional share of cleaning in addition to the rent. 4. Plus Electric: A type of Modified Gross Lease where the tenant is responsible for their proportional share of the electrical cost in addition to the rent. 4. Plus Electric & Cleaning: A type of Modified Gross Lease where the tenant is responsible for their proportional share of the electrical and cleaning cost in addition to the rent. 4. Plus Utilities and Char: A type of Modified Gross Lease where the tenant is responsible for their proportional share of the utilities and cleaning cost in addition to the rent. 4. Industrial Gross: A type of Modified Gross lease where the tenant pays one or more of the expenses in addition to the rent. The landlord and tenant determine these prior to signing the lease agreement.
5. Tenant Electric: The landlord pays for all services and the tenant is responsible for their usage of lights and electrical outlets in the space they occupy.
6. Negotiable or Upon Request: Used when the leasing contact does not provide the rent or service type.
7. TBD: To be determined; used for buildings for which no rent or service type is known, commonly utilized when the buildings are not yet built.
Property Facts
| Total Space Available | 3,580 SF | Gross Leasable Area | 14,000 SF |
| Property Type | Retail | Year Built | 1965 |
| Property Subtype | Retail | Parking Ratio | 1.79/1,000 SF |
| Total Space Available | 3,580 SF |
| Property Type | Retail |
| Property Subtype | Retail |
| Gross Leasable Area | 14,000 SF |
| Year Built | 1965 |
| Parking Ratio | 1.79/1,000 SF |
About the Property
Position your business for success at 303 Queen Street in Tappahannock—a highly versatile ±3,580 square foot commercial space ideally suited for retail, showroom, flex, or light industrial use. Strategically located along one of Tappahannock’s primary commercial corridors, this property offers excellent visibility, accessibility, and exposure to both local and regional traffic, including consumers and businesses from nearby Kilmarnock as well as Westmoreland County, Northumberland County, and Lancaster County. The space features a flexible layout that can easily accommodate a retail storefront, customer-facing showroom, office buildout, and warehouse or storage components. This adaptability makes it an ideal fit for boutique retailers, service providers, contractors, equipment sales, or businesses seeking a hybrid retail-warehouse concept. Whether your focus is customer engagement, operational efficiency, or both, this property can be tailored to meet your needs. Zoned CG-2 (General Commercial), 303 Queen Street allows for a wide range of permitted uses including retail sales, personal and professional services, wholesale operations, and light industrial activities. This broad zoning flexibility supports evolving business models and provides tenants with long-term operational freedom. Located in the heart of Tappahannock’s commercial district, the property benefits from proximity to national retailers, local businesses, and key thoroughfares serving the Northern Neck region. With convenient access to surrounding markets such as Kilmarnock and the counties of Westmoreland, Northumberland, and Lancaster, this is an excellent opportunity for businesses looking to establish or expand their presence in a growing market with strong community and regional connectivity.
- Corner Lot
- Restaurant
- Signage
- Tenant Controlled HVAC
- Air Conditioning
- Smoke Detector
Presented by
303 Queen St
Hmm, there seems to have been an error sending your message. Please try again.
Thanks! Your message was sent.






