Your email has been sent.
Jupiter Office Park Allen, TX 75002 482 - 13,077 SF of Office Space Available



PARK HIGHLIGHTS
- Jupiter Office Park offers traditional offices and executive suites boasting fresh interiors with expert attention from on-site property management.
- Strategically located a half-mile from Central Expressway, less than 15 minutes to Plano, and 30 minutes to Downtown Dallas.
- Robust market with an average household income of $140,073, and half of the residents holding a bachelor’s degree or higher within a 3-mile radius.
- Offers a number of turnkey suites and professional build-out packages with flexible terms to quickly move in and accommodate future expansion.
- Within five minutes of workforce amenities, including Target, The Home Depot, Tom Thumb, Fitness Connection, and dozens of eclectic eateries.
- New ownership is dedicated to a perfect tenant experience, offering the best value for your dollar in North Dallas.
PARK FACTS
| Total Space Available | 13,077 SF | Features | Monument Signage |
| Park Type | Office Park |
| Total Space Available | 13,077 SF |
| Park Type | Office Park |
| Features | Monument Signage |
ALL AVAILABLE SPACES(9)
Display Rental Rate as
- SPACE
- SIZE
- TERM
- RENTAL RATE
- SPACE USE
- CONDITION
- AVAILABLE
Located in 311 Jupiter.
- Listed rate may not include certain utilities, building services and property expenses
- Fits 4 - 12 People
- Finished Ceilings: 9’
- Natural Light
- Print/Copy Room
- Built-In Cabinets and Counter
- Fully Built-Out as Professional Services Office
- 5 Private Offices
- Space is in Excellent Condition
- Storage Space
- Move-In Ready
| Space | Size | Term | Rental Rate | Space Use | Condition | Available |
| 1st Floor, Ste 100 | 1,422 SF | Negotiable | $29.74 CAD/SF/YR $2.48 CAD/SF/MO $42,294 CAD/YR $3,525 CAD/MO | Office | Full Build-Out | Now |
311 S Jupiter Rd - 1st Floor - Ste 100
- SPACE
- SIZE
- TERM
- RENTAL RATE
- SPACE USE
- CONDITION
- AVAILABLE
- Listed rate may not include certain utilities, building services and property expenses
- Fits 4 - 13 People
- Fully Built-Out as Standard Office
- Space is in Excellent Condition
Space has three windowed offices with one oversized office for up to two people. Also has a break area with a sink and cabinets.
- Listed rate may not include certain utilities, building services and property expenses
- Fits 4 - 6 People
- Finished Ceilings: 9’
- Central Air and Heating
- High Ceilings
- Atrium
- Fully Built-Out as Professional Services Office
- 3 Private Offices
- Space is in Excellent Condition
- Balcony
- Natural Light
| Space | Size | Term | Rental Rate | Space Use | Condition | Available |
| 1st Floor, Ste 110 | 1,546 SF | Negotiable | $29.74 CAD/SF/YR $2.48 CAD/SF/MO $45,982 CAD/YR $3,832 CAD/MO | Office | Full Build-Out | Now |
| 2nd Floor, Ste 200 | 1,085 SF | 1-5 Years | $29.74 CAD/SF/YR $2.48 CAD/SF/MO $32,271 CAD/YR $2,689 CAD/MO | Office | Full Build-Out | Now |
309 S Jupiter Rd - 1st Floor - Ste 110
309 S Jupiter Rd - 2nd Floor - Ste 200
- SPACE
- SIZE
- TERM
- RENTAL RATE
- SPACE USE
- CONDITION
- AVAILABLE
Interior access to Second Floor offices. Space can be Split into Two Office Suites
- Lease rate does not include utilities, property expenses or building services
- Plenty of Parking
- Break Room, Bathrooms Within the Suite
- Fits 8 - 25 People
- 1st floor Reception & Offices
Can be Combined to Total 3,122 Sq Ft
- Lease rate does not include utilities, property expenses or building services
- Plenty of Parking
- Fits 4 - 13 People
- Pylon Signage
| Space | Size | Term | Rental Rate | Space Use | Condition | Available |
| 1st Floor, Ste 110 | 3,122 SF | Negotiable | $19.37 CAD/SF/YR $1.61 CAD/SF/MO $60,465 CAD/YR $5,039 CAD/MO | Office | Full Build-Out | 2026-03-01 |
| 2nd Floor, Ste 210 | 1,561 SF | Negotiable | $19.37 CAD/SF/YR $1.61 CAD/SF/MO $30,232 CAD/YR $2,519 CAD/MO | Office | Full Build-Out | 2026-03-01 |
305 S Jupiter Rd - 1st Floor - Ste 110
305 S Jupiter Rd - 2nd Floor - Ste 210
- SPACE
- SIZE
- TERM
- RENTAL RATE
- SPACE USE
- CONDITION
- AVAILABLE
Virtual Tour: https://my.matterport.com/show/?m=8Kwb8NCH4xE - Located in 313 Jupiter.
- Listed rate may not include certain utilities, building services and property expenses
- Fits 6 - 17 People
- 1 Conference Room
- Finished Ceilings: 9’
- Kitchen
- Print/Copy Room
- Fully Built-Out as Professional Services Office
- 5 Private Offices
- 2 Workstations
- Space is in Excellent Condition
- Elevator Access
- Natural Light
| Space | Size | Term | Rental Rate | Space Use | Condition | Available |
| 2nd Floor, Ste 110 | 2,041 SF | Negotiable | $29.74 CAD/SF/YR $2.48 CAD/SF/MO $60,705 CAD/YR $5,059 CAD/MO | Office | Full Build-Out | Now |
313 S Jupiter Rd - 2nd Floor - Ste 110
- SPACE
- SIZE
- TERM
- RENTAL RATE
- SPACE USE
- CONDITION
- AVAILABLE
- Lease rate does not include utilities, property expenses or building services
- Fits 3 - 10 People
- Fully Built-Out as Standard Office
- Space is in Excellent Condition
- Listed rate may not include certain utilities, building services and property expenses
- Fits 2 - 6 People
- Fully Built-Out as Standard Office
- Space is in Excellent Condition
- Lease rate does not include utilities, property expenses or building services
- Elevator Access
- Fits 2 - 4 People
- Pylon Signage
| Space | Size | Term | Rental Rate | Space Use | Condition | Available |
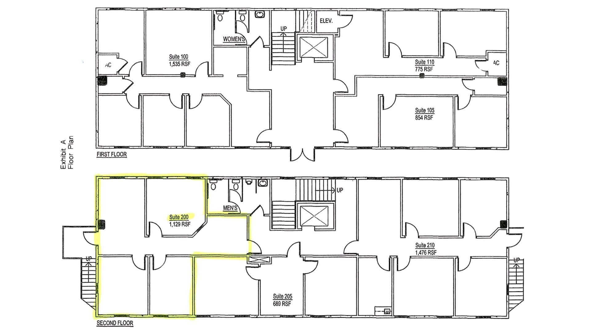
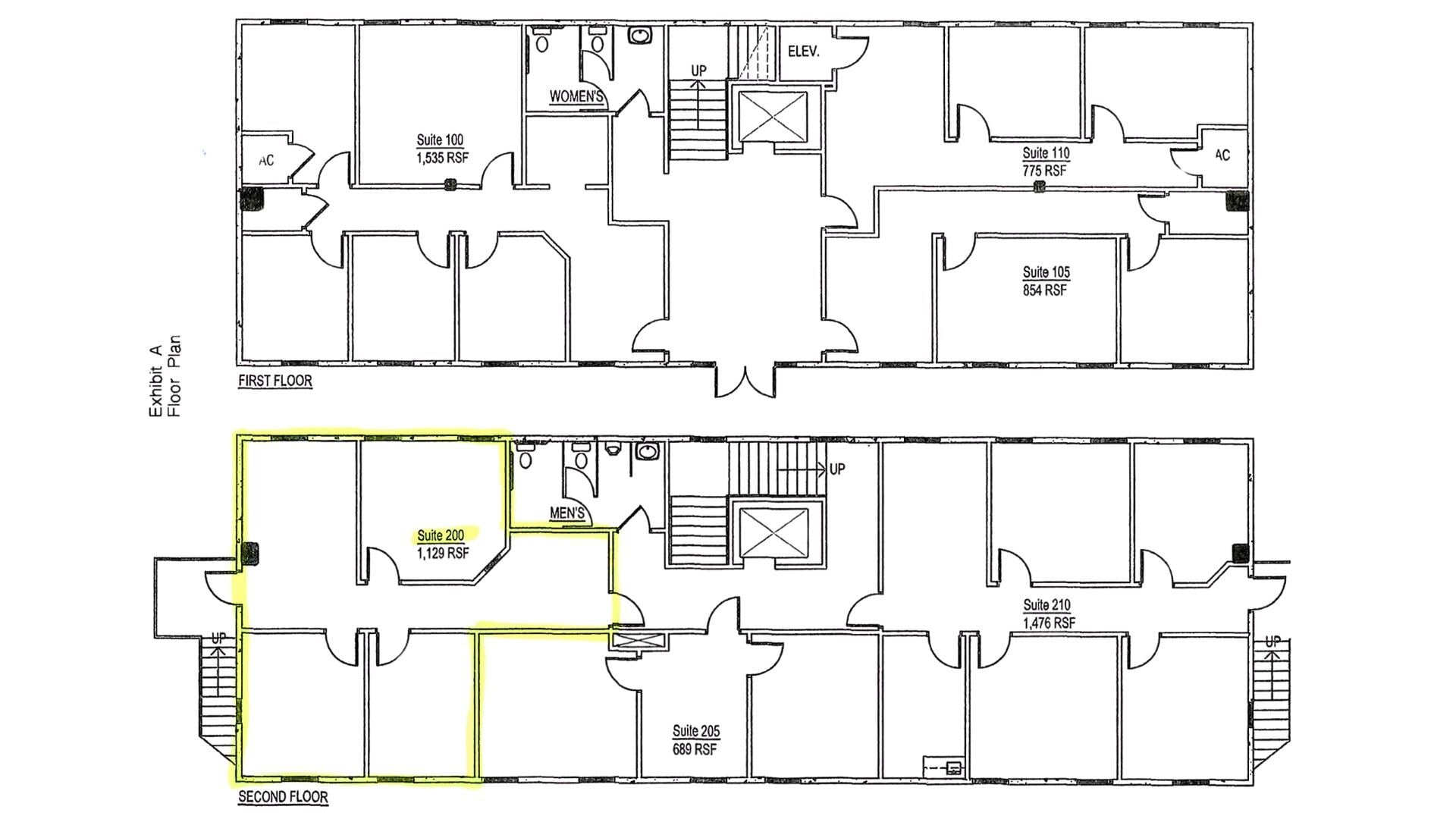
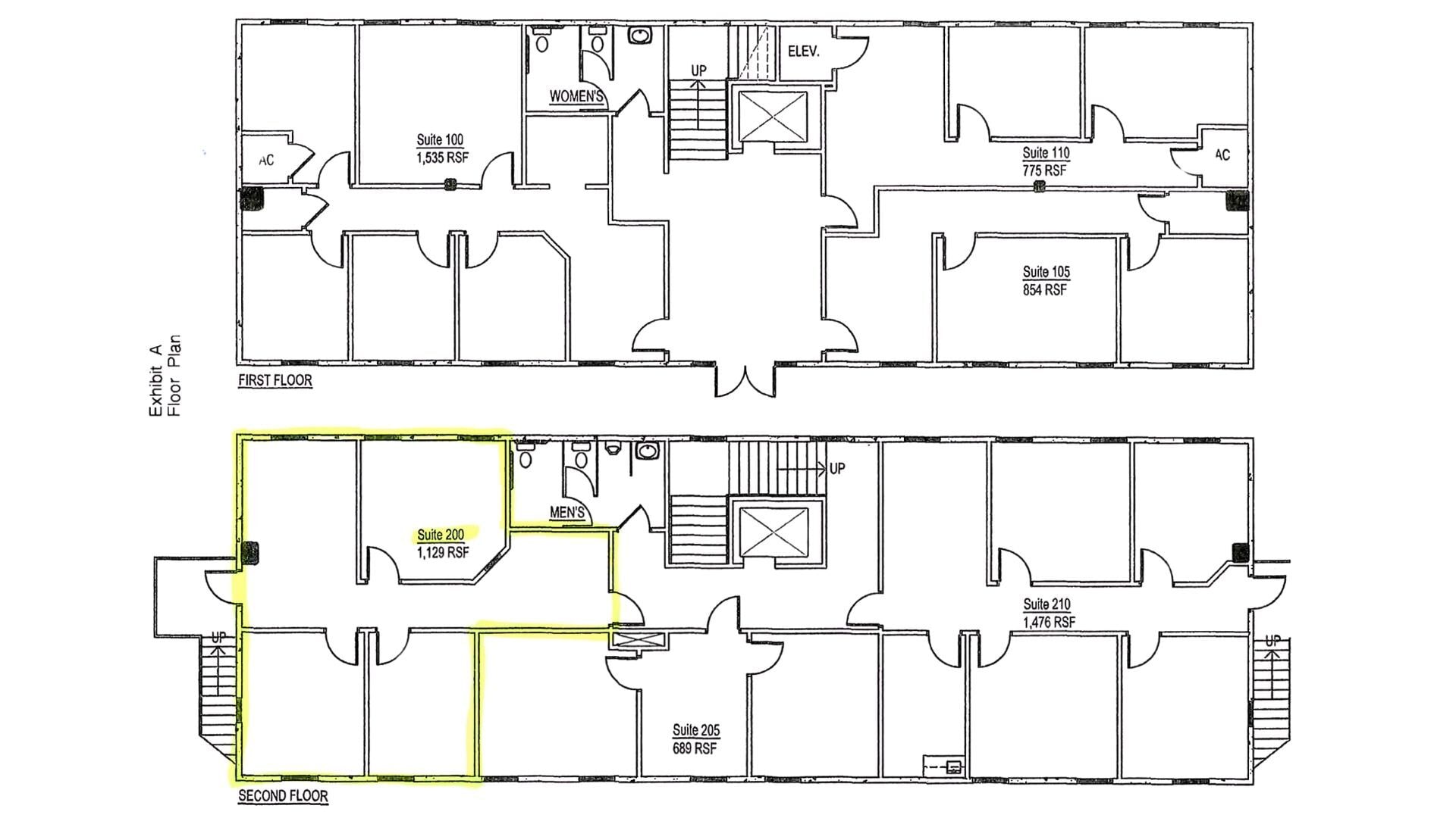
| 2nd Floor, Ste 200 | 1,129 SF | Negotiable | $19.37 CAD/SF/YR $1.61 CAD/SF/MO $21,866 CAD/YR $1,822 CAD/MO | Office | Full Build-Out | Now |
| 2nd Floor, Ste 205 | 689 SF | Negotiable | $29.74 CAD/SF/YR $2.48 CAD/SF/MO $20,493 CAD/YR $1,708 CAD/MO | Office | Full Build-Out | Now |
| 2nd Floor, Ste 205 - 2 | 482 SF | Negotiable | $19.37 CAD/SF/YR $1.61 CAD/SF/MO $9,335 CAD/YR $777.92 CAD/MO | Office | Full Build-Out | Now |
307 S Jupiter Rd - 2nd Floor - Ste 200
307 S Jupiter Rd - 2nd Floor - Ste 205
307 S Jupiter Rd - 2nd Floor - Ste 205 - 2
311 S Jupiter Rd - 1st Floor - Ste 100
| Size | 1,422 SF |
| Term | Negotiable |
| Rental Rate | $29.74 CAD/SF/YR |
| Space Use | Office |
| Condition | Full Build-Out |
| Available | Now |
Located in 311 Jupiter.
- Listed rate may not include certain utilities, building services and property expenses
- Fully Built-Out as Professional Services Office
- Fits 4 - 12 People
- 5 Private Offices
- Finished Ceilings: 9’
- Space is in Excellent Condition
- Natural Light
- Storage Space
- Print/Copy Room
- Move-In Ready
- Built-In Cabinets and Counter
309 S Jupiter Rd - 1st Floor - Ste 110
| Size | 1,546 SF |
| Term | Negotiable |
| Rental Rate | $29.74 CAD/SF/YR |
| Space Use | Office |
| Condition | Full Build-Out |
| Available | Now |
- Listed rate may not include certain utilities, building services and property expenses
- Fully Built-Out as Standard Office
- Fits 4 - 13 People
- Space is in Excellent Condition
309 S Jupiter Rd - 2nd Floor - Ste 200
| Size | 1,085 SF |
| Term | 1-5 Years |
| Rental Rate | $29.74 CAD/SF/YR |
| Space Use | Office |
| Condition | Full Build-Out |
| Available | Now |
Space has three windowed offices with one oversized office for up to two people. Also has a break area with a sink and cabinets.
- Listed rate may not include certain utilities, building services and property expenses
- Fully Built-Out as Professional Services Office
- Fits 4 - 6 People
- 3 Private Offices
- Finished Ceilings: 9’
- Space is in Excellent Condition
- Central Air and Heating
- Balcony
- High Ceilings
- Natural Light
- Atrium
305 S Jupiter Rd - 1st Floor - Ste 110
| Size | 3,122 SF |
| Term | Negotiable |
| Rental Rate | $19.37 CAD/SF/YR |
| Space Use | Office |
| Condition | Full Build-Out |
| Available | 2026-03-01 |
Interior access to Second Floor offices. Space can be Split into Two Office Suites
- Lease rate does not include utilities, property expenses or building services
- Fits 8 - 25 People
- Plenty of Parking
- 1st floor Reception & Offices
- Break Room, Bathrooms Within the Suite
305 S Jupiter Rd - 2nd Floor - Ste 210
| Size | 1,561 SF |
| Term | Negotiable |
| Rental Rate | $19.37 CAD/SF/YR |
| Space Use | Office |
| Condition | Full Build-Out |
| Available | 2026-03-01 |
Can be Combined to Total 3,122 Sq Ft
- Lease rate does not include utilities, property expenses or building services
- Fits 4 - 13 People
- Plenty of Parking
- Pylon Signage
313 S Jupiter Rd - 2nd Floor - Ste 110
| Size | 2,041 SF |
| Term | Negotiable |
| Rental Rate | $29.74 CAD/SF/YR |
| Space Use | Office |
| Condition | Full Build-Out |
| Available | Now |
Virtual Tour: https://my.matterport.com/show/?m=8Kwb8NCH4xE - Located in 313 Jupiter.
- Listed rate may not include certain utilities, building services and property expenses
- Fully Built-Out as Professional Services Office
- Fits 6 - 17 People
- 5 Private Offices
- 1 Conference Room
- 2 Workstations
- Finished Ceilings: 9’
- Space is in Excellent Condition
- Kitchen
- Elevator Access
- Print/Copy Room
- Natural Light
307 S Jupiter Rd - 2nd Floor - Ste 200
| Size | 1,129 SF |
| Term | Negotiable |
| Rental Rate | $19.37 CAD/SF/YR |
| Space Use | Office |
| Condition | Full Build-Out |
| Available | Now |
- Lease rate does not include utilities, property expenses or building services
- Fully Built-Out as Standard Office
- Fits 3 - 10 People
- Space is in Excellent Condition
307 S Jupiter Rd - 2nd Floor - Ste 205
| Size | 689 SF |
| Term | Negotiable |
| Rental Rate | $29.74 CAD/SF/YR |
| Space Use | Office |
| Condition | Full Build-Out |
| Available | Now |
- Listed rate may not include certain utilities, building services and property expenses
- Fully Built-Out as Standard Office
- Fits 2 - 6 People
- Space is in Excellent Condition
307 S Jupiter Rd - 2nd Floor - Ste 205 - 2
| Size | 482 SF |
| Term | Negotiable |
| Rental Rate | $19.37 CAD/SF/YR |
| Space Use | Office |
| Condition | Full Build-Out |
| Available | Now |
- Lease rate does not include utilities, property expenses or building services
- Fits 2 - 4 People
- Elevator Access
- Pylon Signage
MATTERPORT 3D TOUR
SITE PLAN
PARK OVERVIEW
Enter the flourishing DFW metro town of Allen, Texas, with flexible, best-value spaces connected to premier workforce amenities and major professional hubs. Jupiter Office Park offers a mix of traditional offices and executive suites, allowing individual professionals and entire teams to find a space here. As organizations grow, they have the capability to lease more space to accommodate future growth. New ownership is keen on tailoring a custom experience to exceed tenant needs with on-site property management and recent upgrades to provide pristine spaces. All suites will be delivered in turnkey condition, only needing furniture, and the garden-style layout fosters a big-fish feeling with many spaces encompassing an entire quarter of the building. With a direct shot to Central Expressway and Downtown Allen minutes away, Jupiter Office Park presents a holistic experience to maximize productivity and convenience. Just steps away lies a vibrant retail node offering essential workforce amenities such as CVS, Hidden Gym, the new H-E-B, Dollar General, 7-Eleven, and more. If that wasn’t enough, the town’s premier retail corridor featuring Whole Foods, Allen Premium Outlets, Target, Dick’s Sporting Goods, Best Buy, and Fairview Town Center is less than 10 minutes away. Allen’s city hall and multiple banks are just down the street, making this ideal for financial and legal tenants, plus, Texas Health Presbyterian Hospital is seven minutes away for medical users. As Dallas-Fort Worth continues to expand exponentially, demand has driven prices across the metro, but with asking rents $5 to $8 less than comparable properties, Jupiter Office Park offers an affordable alternative without sacrificing accessibility. Discover the immense advantages of this veritable area and perch operations along the Central Expressway with the superior offices and executive suites at Jupiter Office Park. Come see why Jupiter Office Park is your best value in North Dallas.
- Monument Signage
NEARBY AMENITIES
RESTAURANTS |
|||
|---|---|---|---|
| Subway | - | - | 7 min walk |
| Taco Casa | - | - | 7 min walk |
| KFC | - | - | 9 min walk |
| Soulman's Bar-B-Que | Barbecue | - | 9 min walk |
| Elke's Market Cafe | Sandwiches | $ | 10 min walk |
| Dairy Queen | - | - | 11 min walk |
RETAIL |
||
|---|---|---|
| Walgreens | Drug Store | 7 min walk |
| 7-Eleven | Convenience Market | 8 min walk |
| Planet Fitness | Fitness | 8 min walk |
| Goodwill | Dollar/Variety/Thrift | 11 min walk |
| Dollar General | Dollar/Variety/Thrift | 12 min walk |
| KinderCare | Daycare | 12 min walk |
HOTELS |
|
|---|---|
| Quality Inn |
59 rooms
6 min drive
|
| Marriott |
300 rooms
6 min drive
|
| Hilton Garden Inn |
150 rooms
6 min drive
|
| WoodSpring Suites |
122 rooms
7 min drive
|
| Holiday Inn Express |
87 rooms
7 min drive
|
LEASING AGENT
LEASING AGENT
Robert Corson, Broker
Over the course of his distinguished 40 year career, Bob has closed over 2,000 commercial real estate transactions. Some of the more notable transactions include representing G&K Service’s relocation of their 65,000 corporate offices; assisting MTS Systems with the development of a 50,000 sf industrial facility; representing the Park Board with the purchase of a 45,000 sf facility, assisting several investors with the purchase of multifamily properties plus numerous other companies with the leasing or purchase of commercial real estate.
Mr. Corson has also been involved personally in the acquisition of over a dozen investment grade properties totaling over 300,000 sf and putting together limited liability partnerships for investors. Prior to 1991, he was a senior leasing agent with a large commercial brokerage house in Minneapolis, where for over six years he specialized in the leasing of office buildings and was personally responsible for an office portfolio consisting of over 1.5 million square feet.
Mr. Corson started his real estate career in Houston, Texas as a leasing and property management specialist for Landsing Properties and The Horne Company, where he was responsible for the management and leasing of office, industrial and retail properties.
Mr. Corson is a licensed Real Estate Broker in the state of Texas; a member of the Collin County Board of Realtors and in 1993 joined the ranks of only a select few in the real estate profession by earning his Certified Commercial Investment Member (CCIM) designation.
Bob is a graduate of Bethel University in St. Paul, Minnesota and did his graduate studies at The University of Texas at Austin, receiving his MBA in accounting and finance. Understanding the value of ongoing education, Bob received the Certified Property Management (CPM) in 2013, along with his oldest daughter.
Bob resides with his wife, Faye in Carrollton. Bob and Faye have raised 5 kids. Bob is actively involved in his church and community and enjoys tennis, table tennis, weight lifting, biking, skiing, hunting and traveling.
Presented by
RFC Real Estate Advisors
Jupiter Office Park | Allen, TX 75002
Hmm, there seems to have been an error sending your message. Please try again.
Thanks! Your message was sent.


















