Your email has been sent.
Fayetteville Business Park 3036 Gillespie St 22,131 - 122,131 SF of Space Available in Fayetteville, NC 28306



Highlights
- Strategic position near U.S. 301 Business enabling rapid freight movement.
- Efficient warehouse design with high clear heights and wide column spacing.
- Laydown area available for equipment, vehicle staging, or supplemental storage.
- Direct connectivity to Interstate 95 supporting regional and interstate distribution.
- Multiple dock-high doors and a drive-in access point enhancing operational flow.
- Located within an established industrial park offering infrastructure stability.
Features
All Available Spaces(2)
Display Rental Rate as
- Space
- Size
- Term
- Rental Rate
- Space Use
- Build-Out
- Available
Suite: Warehouse 25 ft clear height 40 ft column spacing Five dock-high doors One 12x14 drive-in door Offices and restrooms Laydown area available
- Lease rate does not include utilities, property expenses or building services
- 5 Loading Docks
- 1 Drive Bay
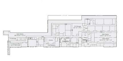
This 100,000-square-foot office property offers a highly adaptable layout designed to accommodate a wide range of administrative, training, and operational uses. Two expansive open rooms, each approximately 30 feet by 142 feet, provide significant flexibility for collaborative work, assembly, or customized buildouts. The building also features executive offices, classrooms, open cubicle areas, and warehouse space for storage and shipping needs. Additional amenities include a cafeteria and kitchen area (currently non-operational), a gymnasium for fitness or training purposes, and two sets of restrooms with showers, all fully handicap accessible. These features enhance the property’s utility for organizations seeking a versatile and well-equipped facility.
- Fully Built-Out as Standard Office
- Fits 125 - 800 People
- Office intensive layout
| Space | Size | Term | Rental Rate | Space Use | Build-Out | Available |
| 1st Floor | 22,131 SF | Negotiable | $5.13 CAD/SF/YR $0.43 CAD/SF/MO $113,507 CAD/YR $9,459 CAD/MO | Industrial | Full Build-Out | 30 Days |
| 1st Floor, Ste A | 50,000-100,000 SF | Negotiable | Upon Request Upon Request Upon Request Upon Request | Office | Full Build-Out | 30 Days |
1st Floor
| Size |
| 22,131 SF |
| Term |
| Negotiable |
| Rental Rate |
| $5.13 CAD/SF/YR $0.43 CAD/SF/MO $113,507 CAD/YR $9,459 CAD/MO |
| Space Use |
| Industrial |
| Build-Out |
| Full Build-Out |
| Available |
| 30 Days |
1st Floor, Ste A
| Size |
| 50,000-100,000 SF |
| Term |
| Negotiable |
| Rental Rate |
| Upon Request Upon Request Upon Request Upon Request |
| Space Use |
| Office |
| Build-Out |
| Full Build-Out |
| Available |
| 30 Days |
1st Floor
| Size | 22,131 SF |
| Term | Negotiable |
| Rental Rate | $5.13 CAD/SF/YR |
| Space Use | Industrial |
| Build-Out | Full Build-Out |
| Available | 30 Days |
Suite: Warehouse 25 ft clear height 40 ft column spacing Five dock-high doors One 12x14 drive-in door Offices and restrooms Laydown area available
- Lease rate does not include utilities, property expenses or building services
- 1 Drive Bay
- 5 Loading Docks
1st Floor, Ste A
| Size | 50,000-100,000 SF |
| Term | Negotiable |
| Rental Rate | Upon Request |
| Space Use | Office |
| Build-Out | Full Build-Out |
| Available | 30 Days |
This 100,000-square-foot office property offers a highly adaptable layout designed to accommodate a wide range of administrative, training, and operational uses. Two expansive open rooms, each approximately 30 feet by 142 feet, provide significant flexibility for collaborative work, assembly, or customized buildouts. The building also features executive offices, classrooms, open cubicle areas, and warehouse space for storage and shipping needs. Additional amenities include a cafeteria and kitchen area (currently non-operational), a gymnasium for fitness or training purposes, and two sets of restrooms with showers, all fully handicap accessible. These features enhance the property’s utility for organizations seeking a versatile and well-equipped facility.
- Fully Built-Out as Standard Office
- Office intensive layout
- Fits 125 - 800 People
Property Overview
3036 Gillespie Street presents a highly functional industrial opportunity within a well-maintained multitenant complex positioned in Fayetteville’s established heavy industrial corridor. The building delivers operational efficiency tailored for logistics, distribution, and light manufacturing users seeking immediate readiness and seamless workflow integration. Featuring 25-foot clear heights supported by 40-foot column spacing, the layout allows for flexible racking systems, optimized maneuverability, and efficient material handling. Five dock-high loading positions with dock levelers enhance freight throughput, while a 12’ by 14’ drive-in door accommodates vehicle access for diverse warehouse operations. The inclusion of dedicated office areas and restrooms supports a balanced administrative and production workflow. Situated near the intersection of Gillespie Street and U.S. 301 Business, the property offers direct, rapid access to Interstate 95, one of the East Coast’s primary commercial transportation arteries. This connectivity provides meaningful advantages for regional and interstate shipping, strengthening the reliability and reach of any distribution-oriented operation. The surrounding area hosts a concentration of established manufacturing and logistics users, reinforcing the district’s long-term stability and compatibility with heavy industrial activity. As part of a larger business park, tenants benefit from shared infrastructure while retaining autonomous control over day-to-day operations. Ample room on site also enhances circulation, fleet management, and general workforce accessibility. A laydown area is available for additional storage or equipment needs, further expanding the property’s versatility. Nearby population centers offer a stable workforce base, with demographic indicators signaling consistent residential presence and achievable labor access. Overall, this address combines transportation convenience, functional design, and industrial-grade surroundings to create a compelling option for businesses requiring durable, move-in-ready space with immediate operational capability.
Manufacturing Facility Facts
Select Tenants
- Floor
- Tenant Name
- Industry
- 1st
- On-Board Companies
- Professional, Scientific, and Technical Services
- 1st
- The Campbell’s Company
- Manufacturing
Presented by
Fayetteville Business Park | 3036 Gillespie St
Hmm, there seems to have been an error sending your message. Please try again.
Thanks! Your message was sent.



