Your email has been sent.
Washington Square Building 306 S Washington Ave 552 - 5,133 SF of Office Space Available in Royal Oak, MI 48067



Highlights
- Prime location in downtown
- Fob based access outside of business hours
- Beautiful 1920's architecture throughout exterior and atrium
All Available Spaces(5)
Display Rental Rate as
- Space
- Size
- Term
- Rental Rate
- Space Use
- Build-Out
- Available
Well-maintained private office suite ideal for professional services, startups, or small teams. The suite features a welcoming front office area with two private offices connected by doorways, allowing for a flexible layout suitable for individual workspaces, meeting rooms, or collaborative use. Large windows in each office provide excellent natural light, creating a bright and comfortable working environment. Neutral finishes, wood-look flooring, and recessed lighting give the space a clean, professional feel that can easily accommodate a variety of business uses. Ready for immediate occupancy!
- Listed rate may not include certain utilities, building services and property expenses
- Space is in Excellent Condition
- On site property management
- Modern wood-look flooring throughout
- 2 Private Offices
- Operable Large Windows
- Two private offices plus reception/common space
Thoughtfully laid out second floor office space with hardwood flooring, high ceilings, and tons of natural light! Two doored private offices/spaces. Perfect space for a studio, creative space, or a small team! Take advantage of the building's meeting/event room and outdoor deck, also on the 2nd Floor. On-site property management.
- Listed rate may not include certain utilities, building services and property expenses
- 2 Private Offices
- Mostly Open Floor Plan Layout
Second-floor office suite available in the heart of downtown Royal Oak. Suite 222 features an efficient, open layout with natural light, ideal for a variety of office or creative users. Located in a well-maintained, professional multi-tenant building with walkable access to restaurants, retail, and amenities along Washington Ave. Windows overlook Fourth Street; view is partially obstructed by the Royal Oak Music Theatre marquee. Priced below market at $19.50 PSF Modified Gross to reflect this—offering strong value for a premier downtown location.
- Listed rate may not include certain utilities, building services and property expenses
- 4 Private Offices
- Space is in Excellent Condition
- After Hours HVAC Available
- Smoke Detector
- Natural light
- Walkable to amenities
- Fully Built-Out as Standard Office
- Conference Rooms
- Central Heating System
- Atrium
- Efficient, flexible layout
- Prime downtown location
This spacious 850 sq. ft. office in downtown Royal Oak's is ideal for creative teams, startups, and professional, tech, or boutique firms. Expansive operable windows along the south wall provide a breeze and abundant natural light with views overlooking Fourth St. and Lafayette Ave. The suite features attractive wood-look flooring and flexible layout options with space for private desks, collaborative seating and lounge area delivering the professional image and functionality your business deserves. Take advantage of the building's meeting/event room and outdoor deck, also on the 2nd Floor. On-site property management.
- Listed rate may not include certain utilities, building services and property expenses
- Open Floor Plan Layout
- Fully Built-Out as Standard Office
- Space is in Excellent Condition
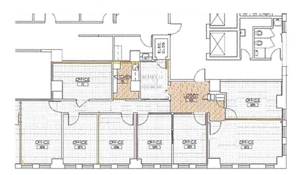
This professional 3rd Floor suite features 8 private offices/meeting rooms including a northeast corner office, a reception area, and kitchenette. Enjoy views of Washington Avenue in downtown Royal Oak from a total of 16 tall, operable windows - fresh air! Flooring is a mix of carpet and wood. The semi-private 3rd Floor is shared with just one other tenant. Take advantage of the building's meeting/event room on the 2nd Floor, the outdoor deck, and on-site property management.
- Listed rate may not include certain utilities, building services and property expenses
- 8 Private Offices
- Fully Built-Out as Professional Services Office
- Space is in Excellent Condition
| Space | Size | Term | Rental Rate | Space Use | Build-Out | Available |
| 2nd Floor, Ste 205 | 552 SF | Negotiable | $29.88 CAD/SF/YR $2.49 CAD/SF/MO $16,492 CAD/YR $1,374 CAD/MO | Office | Full Build-Out | Now |
| 2nd Floor, Ste 208 | 722 SF | Negotiable | $31.23 CAD/SF/YR $2.60 CAD/SF/MO $22,551 CAD/YR $1,879 CAD/MO | Office | - | Now |
| 2nd Floor, Ste 222 | 840 SF | Negotiable | $26.48 CAD/SF/YR $2.21 CAD/SF/MO $22,244 CAD/YR $1,854 CAD/MO | Office | Full Build-Out | 30 Days |
| 2nd Floor, Ste 224 | 850 SF | Negotiable | $31.23 CAD/SF/YR $2.60 CAD/SF/MO $26,549 CAD/YR $2,212 CAD/MO | Office | Full Build-Out | Now |
| 3rd Floor, Ste 300 | 2,169 SF | Negotiable | $28.52 CAD/SF/YR $2.38 CAD/SF/MO $61,856 CAD/YR $5,155 CAD/MO | Office | Full Build-Out | Now |
2nd Floor, Ste 205
| Size |
| 552 SF |
| Term |
| Negotiable |
| Rental Rate |
| $29.88 CAD/SF/YR $2.49 CAD/SF/MO $16,492 CAD/YR $1,374 CAD/MO |
| Space Use |
| Office |
| Build-Out |
| Full Build-Out |
| Available |
| Now |
2nd Floor, Ste 208
| Size |
| 722 SF |
| Term |
| Negotiable |
| Rental Rate |
| $31.23 CAD/SF/YR $2.60 CAD/SF/MO $22,551 CAD/YR $1,879 CAD/MO |
| Space Use |
| Office |
| Build-Out |
| - |
| Available |
| Now |
2nd Floor, Ste 222
| Size |
| 840 SF |
| Term |
| Negotiable |
| Rental Rate |
| $26.48 CAD/SF/YR $2.21 CAD/SF/MO $22,244 CAD/YR $1,854 CAD/MO |
| Space Use |
| Office |
| Build-Out |
| Full Build-Out |
| Available |
| 30 Days |
2nd Floor, Ste 224
| Size |
| 850 SF |
| Term |
| Negotiable |
| Rental Rate |
| $31.23 CAD/SF/YR $2.60 CAD/SF/MO $26,549 CAD/YR $2,212 CAD/MO |
| Space Use |
| Office |
| Build-Out |
| Full Build-Out |
| Available |
| Now |
3rd Floor, Ste 300
| Size |
| 2,169 SF |
| Term |
| Negotiable |
| Rental Rate |
| $28.52 CAD/SF/YR $2.38 CAD/SF/MO $61,856 CAD/YR $5,155 CAD/MO |
| Space Use |
| Office |
| Build-Out |
| Full Build-Out |
| Available |
| Now |
2nd Floor, Ste 205
| Size | 552 SF |
| Term | Negotiable |
| Rental Rate | $29.88 CAD/SF/YR |
| Space Use | Office |
| Build-Out | Full Build-Out |
| Available | Now |
Well-maintained private office suite ideal for professional services, startups, or small teams. The suite features a welcoming front office area with two private offices connected by doorways, allowing for a flexible layout suitable for individual workspaces, meeting rooms, or collaborative use. Large windows in each office provide excellent natural light, creating a bright and comfortable working environment. Neutral finishes, wood-look flooring, and recessed lighting give the space a clean, professional feel that can easily accommodate a variety of business uses. Ready for immediate occupancy!
- Listed rate may not include certain utilities, building services and property expenses
- 2 Private Offices
- Space is in Excellent Condition
- Operable Large Windows
- On site property management
- Two private offices plus reception/common space
- Modern wood-look flooring throughout
2nd Floor, Ste 208
| Size | 722 SF |
| Term | Negotiable |
| Rental Rate | $31.23 CAD/SF/YR |
| Space Use | Office |
| Build-Out | - |
| Available | Now |
Thoughtfully laid out second floor office space with hardwood flooring, high ceilings, and tons of natural light! Two doored private offices/spaces. Perfect space for a studio, creative space, or a small team! Take advantage of the building's meeting/event room and outdoor deck, also on the 2nd Floor. On-site property management.
- Listed rate may not include certain utilities, building services and property expenses
- Mostly Open Floor Plan Layout
- 2 Private Offices
2nd Floor, Ste 222
| Size | 840 SF |
| Term | Negotiable |
| Rental Rate | $26.48 CAD/SF/YR |
| Space Use | Office |
| Build-Out | Full Build-Out |
| Available | 30 Days |
Second-floor office suite available in the heart of downtown Royal Oak. Suite 222 features an efficient, open layout with natural light, ideal for a variety of office or creative users. Located in a well-maintained, professional multi-tenant building with walkable access to restaurants, retail, and amenities along Washington Ave. Windows overlook Fourth Street; view is partially obstructed by the Royal Oak Music Theatre marquee. Priced below market at $19.50 PSF Modified Gross to reflect this—offering strong value for a premier downtown location.
- Listed rate may not include certain utilities, building services and property expenses
- Fully Built-Out as Standard Office
- 4 Private Offices
- Conference Rooms
- Space is in Excellent Condition
- Central Heating System
- After Hours HVAC Available
- Atrium
- Smoke Detector
- Efficient, flexible layout
- Natural light
- Prime downtown location
- Walkable to amenities
2nd Floor, Ste 224
| Size | 850 SF |
| Term | Negotiable |
| Rental Rate | $31.23 CAD/SF/YR |
| Space Use | Office |
| Build-Out | Full Build-Out |
| Available | Now |
This spacious 850 sq. ft. office in downtown Royal Oak's is ideal for creative teams, startups, and professional, tech, or boutique firms. Expansive operable windows along the south wall provide a breeze and abundant natural light with views overlooking Fourth St. and Lafayette Ave. The suite features attractive wood-look flooring and flexible layout options with space for private desks, collaborative seating and lounge area delivering the professional image and functionality your business deserves. Take advantage of the building's meeting/event room and outdoor deck, also on the 2nd Floor. On-site property management.
- Listed rate may not include certain utilities, building services and property expenses
- Fully Built-Out as Standard Office
- Open Floor Plan Layout
- Space is in Excellent Condition
3rd Floor, Ste 300
| Size | 2,169 SF |
| Term | Negotiable |
| Rental Rate | $28.52 CAD/SF/YR |
| Space Use | Office |
| Build-Out | Full Build-Out |
| Available | Now |
This professional 3rd Floor suite features 8 private offices/meeting rooms including a northeast corner office, a reception area, and kitchenette. Enjoy views of Washington Avenue in downtown Royal Oak from a total of 16 tall, operable windows - fresh air! Flooring is a mix of carpet and wood. The semi-private 3rd Floor is shared with just one other tenant. Take advantage of the building's meeting/event room on the 2nd Floor, the outdoor deck, and on-site property management.
- Listed rate may not include certain utilities, building services and property expenses
- Fully Built-Out as Professional Services Office
- 8 Private Offices
- Space is in Excellent Condition
Property Overview
Royal Oak's first "skyscraper", built in 1927. Ground floor office/retail/restaurant with office space on floors 2-6. Home of D'Amato's Restaurant, Goodnite Gracie Martini Bar, Iron Horse, Ronin Sushi, and the Royal Oak Music Theatre. Beautiful atrium with unique architectural elements throughout. Take advantage of the building's event/meeting room and outdoor deck located on the 2nd Floor, and Downtown Royal Oak at your doorstep. On-site property management. The Washington Square Building spans the block between Washington Ave., Fourth Street, Lafayette Ave., and Sherman Dr. in downtown Royal Oak. Close to I-75 & I-696.
- Atrium
- Conferencing Facility
- Property Manager on Site
Property Facts
Presented by
Washington Square Building | 306 S Washington Ave
Hmm, there seems to have been an error sending your message. Please try again.
Thanks! Your message was sent.















