Your email has been sent.
309 Rockwood Rd 2,214 - 19,341 SF of Flex Space Available in Arden, NC 28704



Highlights
- Large open space with parking and truck turnaround in back
- About 1/4 mile to the Asheville Regional Airport
- A few miles from the I-26/I-40/I-240 Corridor
- Close to NEW Pratt & Whitney Aircraft Engine Mfg Facility
- Less than .2 miles to I-26 with shared traffic light
- Excellent Street visibility for retail or signage
Features
All Available Spaces(4)
Display Rental Rate as
- Space
- Size
- Term
- Rental Rate
- Space Use
- Condition
- Available
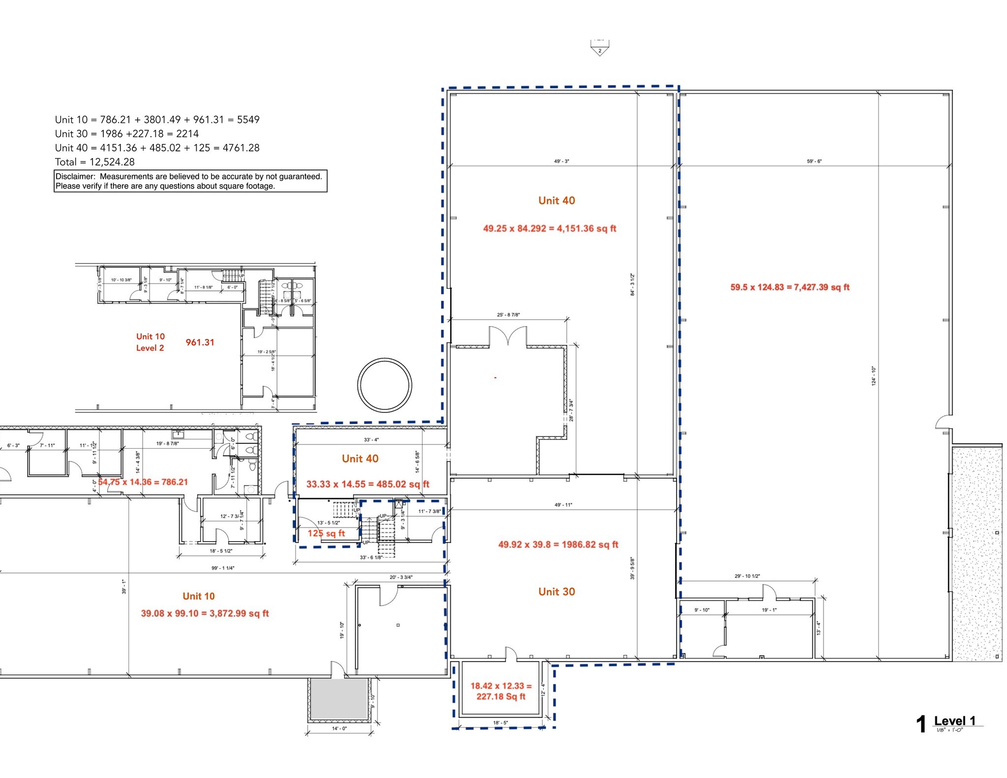
Unit 10 Notes: Warehouse + office + reception space. Outstanding Location: 1 Block from I-26 & Airport Rd. Approximately 1/4 mile from Asheville Regional Airport. Near Lowes, Cracker Barrel, Target and many other retailers. Formerly R&D Plastics building. One Tall pull in drive bay. Approximate ceiling height is 17 feet in the warehouse. Kitchen space, multiple bathrooms, office space overlooking the warehouse, conference room, workshop space. Formerly manufacturing, currently warehousing, storage & distribution. Some high voltage electrical in place but to be updated by tenant if needed for use. Total Approximate square footage: 5549 sq ft. (Warehouse with utility room 3801 sq ft, 1st floor reception/kitchen/bath space 786 sq ft, 2nd floor office space/conference room/bathroom 961 sq ft). Gas heaters in warehouse. HVAC in downstairs reception/kitchen/bath area. Easily expandable to Units 30 & 40 for additional warehouse space.
- Lease rate does not include utilities, property expenses or building services
- 1 Drive Bay
- Private Restrooms
- High Ceilings
- Exposed Ceiling
- Includes 1,600 SF of dedicated office space
- Central Air Conditioning
- Emergency Lighting
- Conference Rooms
- Outstanding Location-1 block from I-26 & AirportRd
Warehousing/Open space that is attached with possible access to units 10 or 40 to provide additional square footage. Concrete floor, exposed walls, beam ceiling. Outstanding location - one driveway off of airport rd, right next to I-26. Super easy freeway access and lots of retail, food, hotels, Lowes, Best Buy, etc within easy walking distance.
- Lease rate does not include utilities, property expenses or building services
- High Ceilings
- Superb Location - Just off of I-26 & Airport Rd
- Emergency Lighting
- Exposed Ceiling
- Superb Location - Just off of I-26 & Airport Rd
Open warehouse space with high ceilings and 1 large garage bay. Superb location just seconds away from I-26 and Airport Rd. Immediately next to the new Hyatt Hotel just off of Airport rd across from Cracker Barrel & Carrara's. Walking distance to many food outlets, Best Buy, Old Navy, Target, Lowes, etc.
- Lease rate does not include utilities, property expenses or building services
- Private Restrooms
- High Ceilings
- Superb location - next to I-26 & Airport Rd
- 1 Drive Bay
- Emergency Lighting
- Exposed Ceiling
Outstanding convenient Location - 1 block from Interstate 26 and Airport Rd in Asheville (Arden), NC. Approximately a quarter of a mile (1/4 mile) from Asheville Regional Airport. Large open warehouse space with private bathroom and office area. 2 loading docs. Surrounded by hotels, restaurants, retail - Such as: Target, Best Buy, Lowes, Cracker Barrel, Olive Garden, McDonald's, and many more.
- Lease rate does not include utilities, property expenses or building services
- Private Restrooms
- Exposed Ceiling
- Outstanding Location - Just off I26 & Airport Rd
- 2 Loading Docks
- High Ceilings
- Outstanding Location - Just off I26 & Airport Rd
| Space | Size | Term | Rental Rate | Space Use | Condition | Available |
| 1st Floor - 10 | 5,549 SF | Negotiable | $13.58 CAD/SF/YR $1.13 CAD/SF/MO $75,362 CAD/YR $6,280 CAD/MO | Flex | Partial Build-Out | Pending |
| 1st Floor - 30 | 2,214 SF | Negotiable | $12.22 CAD/SF/YR $1.02 CAD/SF/MO $27,062 CAD/YR $2,255 CAD/MO | Flex | Full Build-Out | Now |
| 1st Floor - 40 | 4,151 SF | Negotiable | $13.58 CAD/SF/YR $1.13 CAD/SF/MO $56,376 CAD/YR $4,698 CAD/MO | Flex | Full Build-Out | Pending |
| 1st Floor - 50 | 7,427 SF | Negotiable | $14.94 CAD/SF/YR $1.24 CAD/SF/MO $110,954 CAD/YR $9,246 CAD/MO | Flex | - | Pending |
1st Floor - 10
| Size |
| 5,549 SF |
| Term |
| Negotiable |
| Rental Rate |
| $13.58 CAD/SF/YR $1.13 CAD/SF/MO $75,362 CAD/YR $6,280 CAD/MO |
| Space Use |
| Flex |
| Condition |
| Partial Build-Out |
| Available |
| Pending |
1st Floor - 30
| Size |
| 2,214 SF |
| Term |
| Negotiable |
| Rental Rate |
| $12.22 CAD/SF/YR $1.02 CAD/SF/MO $27,062 CAD/YR $2,255 CAD/MO |
| Space Use |
| Flex |
| Condition |
| Full Build-Out |
| Available |
| Now |
1st Floor - 40
| Size |
| 4,151 SF |
| Term |
| Negotiable |
| Rental Rate |
| $13.58 CAD/SF/YR $1.13 CAD/SF/MO $56,376 CAD/YR $4,698 CAD/MO |
| Space Use |
| Flex |
| Condition |
| Full Build-Out |
| Available |
| Pending |
1st Floor - 50
| Size |
| 7,427 SF |
| Term |
| Negotiable |
| Rental Rate |
| $14.94 CAD/SF/YR $1.24 CAD/SF/MO $110,954 CAD/YR $9,246 CAD/MO |
| Space Use |
| Flex |
| Condition |
| - |
| Available |
| Pending |
1st Floor - 10
| Size | 5,549 SF |
| Term | Negotiable |
| Rental Rate | $13.58 CAD/SF/YR |
| Space Use | Flex |
| Condition | Partial Build-Out |
| Available | Pending |
Unit 10 Notes: Warehouse + office + reception space. Outstanding Location: 1 Block from I-26 & Airport Rd. Approximately 1/4 mile from Asheville Regional Airport. Near Lowes, Cracker Barrel, Target and many other retailers. Formerly R&D Plastics building. One Tall pull in drive bay. Approximate ceiling height is 17 feet in the warehouse. Kitchen space, multiple bathrooms, office space overlooking the warehouse, conference room, workshop space. Formerly manufacturing, currently warehousing, storage & distribution. Some high voltage electrical in place but to be updated by tenant if needed for use. Total Approximate square footage: 5549 sq ft. (Warehouse with utility room 3801 sq ft, 1st floor reception/kitchen/bath space 786 sq ft, 2nd floor office space/conference room/bathroom 961 sq ft). Gas heaters in warehouse. HVAC in downstairs reception/kitchen/bath area. Easily expandable to Units 30 & 40 for additional warehouse space.
- Lease rate does not include utilities, property expenses or building services
- Includes 1,600 SF of dedicated office space
- 1 Drive Bay
- Central Air Conditioning
- Private Restrooms
- Emergency Lighting
- High Ceilings
- Conference Rooms
- Exposed Ceiling
- Outstanding Location-1 block from I-26 & AirportRd
1st Floor - 30
| Size | 2,214 SF |
| Term | Negotiable |
| Rental Rate | $12.22 CAD/SF/YR |
| Space Use | Flex |
| Condition | Full Build-Out |
| Available | Now |
Warehousing/Open space that is attached with possible access to units 10 or 40 to provide additional square footage. Concrete floor, exposed walls, beam ceiling. Outstanding location - one driveway off of airport rd, right next to I-26. Super easy freeway access and lots of retail, food, hotels, Lowes, Best Buy, etc within easy walking distance.
- Lease rate does not include utilities, property expenses or building services
- Emergency Lighting
- High Ceilings
- Exposed Ceiling
- Superb Location - Just off of I-26 & Airport Rd
- Superb Location - Just off of I-26 & Airport Rd
1st Floor - 40
| Size | 4,151 SF |
| Term | Negotiable |
| Rental Rate | $13.58 CAD/SF/YR |
| Space Use | Flex |
| Condition | Full Build-Out |
| Available | Pending |
Open warehouse space with high ceilings and 1 large garage bay. Superb location just seconds away from I-26 and Airport Rd. Immediately next to the new Hyatt Hotel just off of Airport rd across from Cracker Barrel & Carrara's. Walking distance to many food outlets, Best Buy, Old Navy, Target, Lowes, etc.
- Lease rate does not include utilities, property expenses or building services
- 1 Drive Bay
- Private Restrooms
- Emergency Lighting
- High Ceilings
- Exposed Ceiling
- Superb location - next to I-26 & Airport Rd
1st Floor - 50
| Size | 7,427 SF |
| Term | Negotiable |
| Rental Rate | $14.94 CAD/SF/YR |
| Space Use | Flex |
| Condition | - |
| Available | Pending |
Outstanding convenient Location - 1 block from Interstate 26 and Airport Rd in Asheville (Arden), NC. Approximately a quarter of a mile (1/4 mile) from Asheville Regional Airport. Large open warehouse space with private bathroom and office area. 2 loading docs. Surrounded by hotels, restaurants, retail - Such as: Target, Best Buy, Lowes, Cracker Barrel, Olive Garden, McDonald's, and many more.
- Lease rate does not include utilities, property expenses or building services
- 2 Loading Docks
- Private Restrooms
- High Ceilings
- Exposed Ceiling
- Outstanding Location - Just off I26 & Airport Rd
- Outstanding Location - Just off I26 & Airport Rd
Property Overview
Warehouse/Manufacturing/Distribution/Retail space now available. 19,933/sf +/- of industrial space which can be converted to manufacturing, office or retail space. Can be sub-divided. Great location just off Airport Rd with Shared Traffic Light to easy in and out onto Airport Rd. Located just behind Popeye's and an Urgent Care site. Near Cracker Barrel and directly next to the new Hyatt Hotel. Building has been remodeled (2021). Renovations include: exterior painting, new skylights, new roll up doors, new insulation, updated restrooms, repainted offices. Ready to be occupied. Located approximately 1,000/ft from the I-26 on/off ramps and close proximity to the I-26/I-40/I-240 corridor. In the midst of major retail and restaurants (Lowes, Target, Marshalls, Ross, etc). There are approximately 15 spaces in the front and 35+ in the rear of the building. Two new drive-in doors on the front of the building and two new dock high doors in the rear. Can be used as warehouse, distribution or manufacturing facility with excess power capacity of 3- phase+ with some updating required. Building can also be used as flex space and can be divided into 4 spaces. Building is 1 exit from the new Pratt & Whitney Aircraft Engine Manufacturing facility. $14.00/sf NNN Electrical Information (some modifications have been made and updating is required - general info, to be verified): Group A (section near the road) 240v 400amp 3-phase Main panel 2- 240v 100amp 3-phase sub panel 480v 400amp 3-phase Main disconnect 1- 480v 200amp 3-phase disconnect 10- 480v 30amp 3-phase disconnects 1- 480v 60amp 3-phase disconnect 5- 480v 100amp 3-phase disconnects 1- 240v 200amp 3-phase disconnect GROUP B (section in the middle) 480v 400amp Main disconnect 6- 480v 60amp 3-phase disconnects 2- 480v 100amp 3-phase disconnects 5- 480v 30amp 3-phase disconnects 1- 480v 200amp 3-phase disconnect 240v Main Panel 400amp 2- 240v 30amp 3-phase disconnect 1- 240v 100amp 3-phase sub panel 240v 400 amp 3-phase Main disconnect
Property Facts
Presented by
Scott Barfield Realty
309 Rockwood Rd
Hmm, there seems to have been an error sending your message. Please try again.
Thanks! Your message was sent.





