Log In/Sign Up
Your email has been sent.
Features
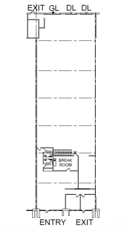
Clear Height
24’
Drive In Bays
1
Exterior Dock Doors
2
Standard Parking Spaces
107
All Available Space(1)
Display Rental Rate as
- Space
- Size
- Term
- Rental Rate
- Space Use
- Condition
- Available
Located within Peppertree Business Center.
- Sublease space available from current tenant
- Includes 1,000 SF of dedicated office space
- 2 Loading Docks
- Easy Access to Hwy 880
- Listed rate may not include certain utilities, building services and property expenses
- 1 Drive Bay
- 22’ - 24’ Clear Height
- Sprinklered
| Space | Size | Term | Rental Rate | Space Use | Condition | Available |
| 1st Floor | 7,523 SF | Feb 2030 | $22.18 CAD/SF/YR $1.85 CAD/SF/MO $166,889 CAD/YR $13,907 CAD/MO | Industrial | Full Build-Out | Now |
1st Floor
| Size |
| 7,523 SF |
| Term |
| Feb 2030 |
| Rental Rate |
| $22.18 CAD/SF/YR $1.85 CAD/SF/MO $166,889 CAD/YR $13,907 CAD/MO |
| Space Use |
| Industrial |
| Condition |
| Full Build-Out |
| Available |
| Now |
1 of 1
Videos
Matterport 3D Exterior
Matterport 3D Tour
Photos
Street View
Street
Map
1st Floor
| Size | 7,523 SF |
| Term | Feb 2030 |
| Rental Rate | $22.18 CAD/SF/YR |
| Space Use | Industrial |
| Condition | Full Build-Out |
| Available | Now |
Located within Peppertree Business Center.
- Sublease space available from current tenant
- Listed rate may not include certain utilities, building services and property expenses
- Includes 1,000 SF of dedicated office space
- 1 Drive Bay
- 2 Loading Docks
- 22’ - 24’ Clear Height
- Easy Access to Hwy 880
- Sprinklered
Warehouse Facility Facts
Building Size
45,000 SF
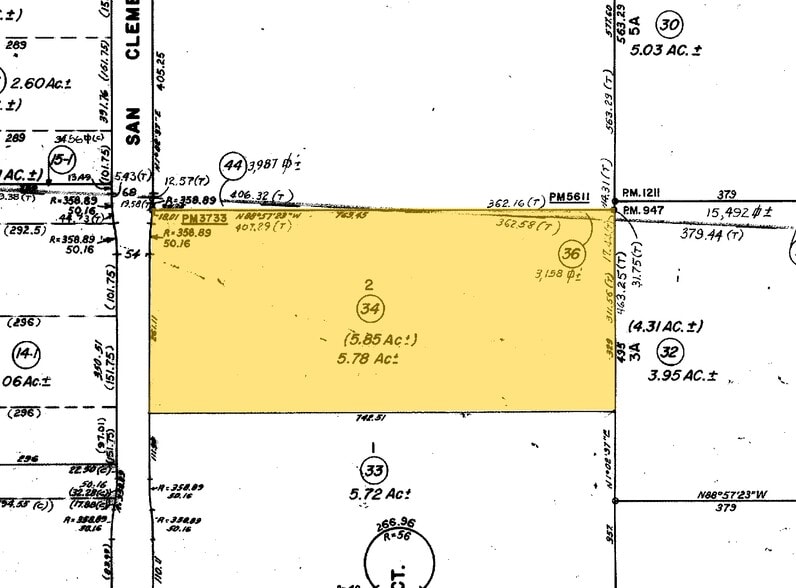
Lot Size
5.78 AC
Year Built
1983
Construction
Masonry
Sprinkler System
Wet
Power Supply
Volts: 277-480 Phase: 3
Zoning
I
Select Tenants
- Floor
- Tenant Name
- Industry
- 1st
- Sipi
- Wholesaler
- 1st
- Sunwest Group of Companies
- Professional, Scientific, and Technical Services
- 1st
- Upline Moving
- Construction
1 of 7
Videos
Matterport 3D Exterior
Matterport 3D Tour
Photos
Street View
Street
Map
Presented by
30944-30956 San Clemente St
Already a member? Log In
Hmm, there seems to have been an error sending your message. Please try again.
Thanks! Your message was sent.
Your message has been sent!
Activate your LoopNet account now to track properties, get real-time alerts, save time on future inquiries, and more.






