Your email has been sent.
Investment Highlights
- 6,874 SF building in downtown St. Charles
- Renovated in 2014, modern and well-maintained
- Low Kane County property taxes
- Fully built-out restaurant space – turnkey condition
- Second floor convertible into four 1-bedroom apartments
- Also available for lease at $25.00 psf NNN
Executive Summary
Zoned CBD-1 – Core Central Business District, the property’s second floor could be converted into four one-bedroom apartments, an option supported under current zoning. This unique feature provides flexibility for both owner-users and investors, offering the opportunity to diversify the rent roll with both commercial and residential tenants. A multi-tenant configuration lowers overall risk and enhances long-term stability by creating multiple income streams.
Strategically positioned to capitalize on the dynamic Chicago market and benefiting from low Kane County taxes, this property represents a compelling investment opportunity for those seeking a turnkey restaurant or retail space with the added upside of a mixed-use redevelopment play.
Financial Summary (Actual - 2025) |
Annual (CAD) | Annual Per SF (CAD) |
|---|---|---|
| Taxes |
$38,932
|
$5.66
|
| Operating Expenses |
$10,745
|
$1.56
|
| Total Expenses |
$49,677
|
$7.23
|
Financial Summary (Actual - 2025)
| Taxes (CAD) | |
|---|---|
| Annual | $38,932 |
| Annual Per SF | $5.66 |
| Operating Expenses (CAD) | |
|---|---|
| Annual | $10,745 |
| Annual Per SF | $1.56 |
| Total Expenses (CAD) | |
|---|---|
| Annual | $49,677 |
| Annual Per SF | $7.23 |
Property Facts
Amenities
- Restaurant
- Signage
- Tenant Controlled HVAC
- Air Conditioning
Space Availability
- Space
- Size
- Space Use
- Position
- Available
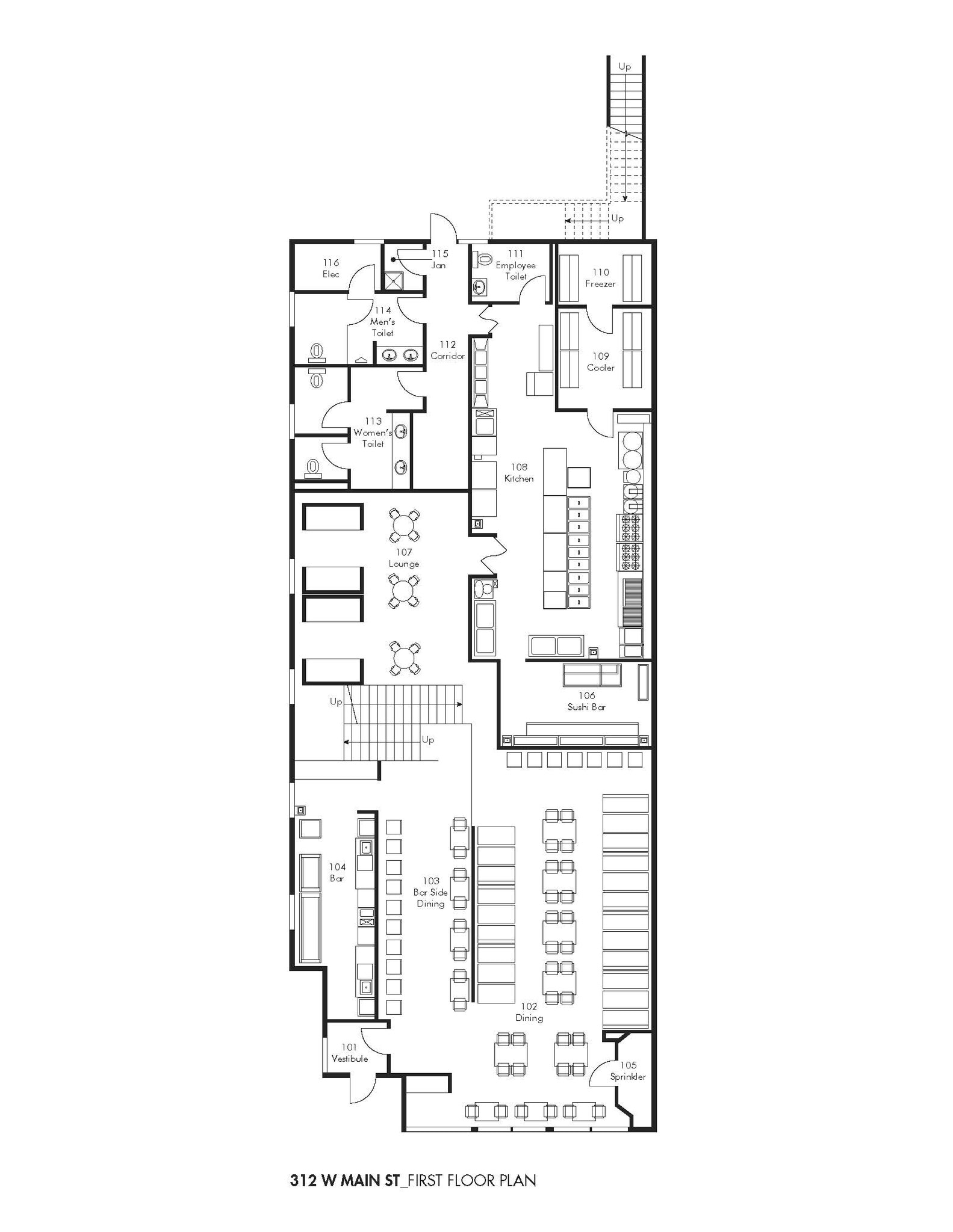
The subject property is a two-story building most recently operated as Shakou Sushi. The first floor is fully built out for restaurant use, featuring a full bar, dedicated sushi bar, commercial-grade kitchen with hood system, walk-in cooler and freezer, office, and separate men’s and women’s restrooms. The design is open to the second floor, creating an inviting atmosphere with natural flow between levels. The second floor is currently configured as a mezzanine-style dining area, providing additional seating and a second bar, along with dry storage and office space. Importantly, the second floor was originally built as apartments and could easily be converted back into four one-bedroom units under current CBD-1 zoning. This offers future owners or investors a unique opportunity to diversify income by adding residential tenants while retaining ground-floor commercial operations.
The subject property is a two-story building most recently operated as Shakou Sushi. The first floor is fully built out for restaurant use, featuring a full bar, dedicated sushi bar, commercial-grade kitchen with hood system, walk-in cooler and freezer, office, and separate men’s and women’s restrooms. The design is open to the second floor, creating an inviting atmosphere with natural flow between levels. The second floor is currently configured as a mezzanine-style dining area, providing additional seating and a second bar, along with dry storage and office space. Importantly, the second floor was originally built as apartments and could easily be converted back into four one-bedroom units under current CBD-1 zoning. This offers future owners or investors a unique opportunity to diversify income by adding residential tenants while retaining ground-floor commercial operations.
| Space | Size | Space Use | Position | Available |
| 312 | 3,437 SF | Restaurant | Outparcel | 30 Days |
| 2nd Floor | 3,437 SF | Restaurant | Outparcel | 30 Days |
312
| Size |
| 3,437 SF |
| Space Use |
| Restaurant |
| Position |
| Outparcel |
| Available |
| 30 Days |
2nd Floor
| Size |
| 3,437 SF |
| Space Use |
| Restaurant |
| Position |
| Outparcel |
| Available |
| 30 Days |
312
| Size | 3,437 SF |
| Space Use | Restaurant |
| Position | Outparcel |
| Available | 30 Days |
The subject property is a two-story building most recently operated as Shakou Sushi. The first floor is fully built out for restaurant use, featuring a full bar, dedicated sushi bar, commercial-grade kitchen with hood system, walk-in cooler and freezer, office, and separate men’s and women’s restrooms. The design is open to the second floor, creating an inviting atmosphere with natural flow between levels. The second floor is currently configured as a mezzanine-style dining area, providing additional seating and a second bar, along with dry storage and office space. Importantly, the second floor was originally built as apartments and could easily be converted back into four one-bedroom units under current CBD-1 zoning. This offers future owners or investors a unique opportunity to diversify income by adding residential tenants while retaining ground-floor commercial operations.
2nd Floor
| Size | 3,437 SF |
| Space Use | Restaurant |
| Position | Outparcel |
| Available | 30 Days |
The subject property is a two-story building most recently operated as Shakou Sushi. The first floor is fully built out for restaurant use, featuring a full bar, dedicated sushi bar, commercial-grade kitchen with hood system, walk-in cooler and freezer, office, and separate men’s and women’s restrooms. The design is open to the second floor, creating an inviting atmosphere with natural flow between levels. The second floor is currently configured as a mezzanine-style dining area, providing additional seating and a second bar, along with dry storage and office space. Importantly, the second floor was originally built as apartments and could easily be converted back into four one-bedroom units under current CBD-1 zoning. This offers future owners or investors a unique opportunity to diversify income by adding residential tenants while retaining ground-floor commercial operations.
Nearby Major Retailers
Property Taxes
| Parcel Number | 09-27-361-026 | Total Assessment | $454,913 CAD (2024) |
| Land Assessment | $90,921 CAD (2024) | Annual Taxes | $38,932 CAD ($5.66 CAD/SF) |
| Improvements Assessment | $363,992 CAD (2024) | Tax Year | 2025 Payable 2025 |
Property Taxes
Presented by
312 W Main St
Hmm, there seems to have been an error sending your message. Please try again.
Thanks! Your message was sent.






