Your email has been sent.
3125 James Slaughter Road - Atwater Village 12.85 Acres of Commercial Land Offered at $12,122,001 CAD in Fuquay-Varina, NC 27526



Investment Highlights
- Commercial portion of an approved and in progress ~430 unit residential development in booming Southern Wake County
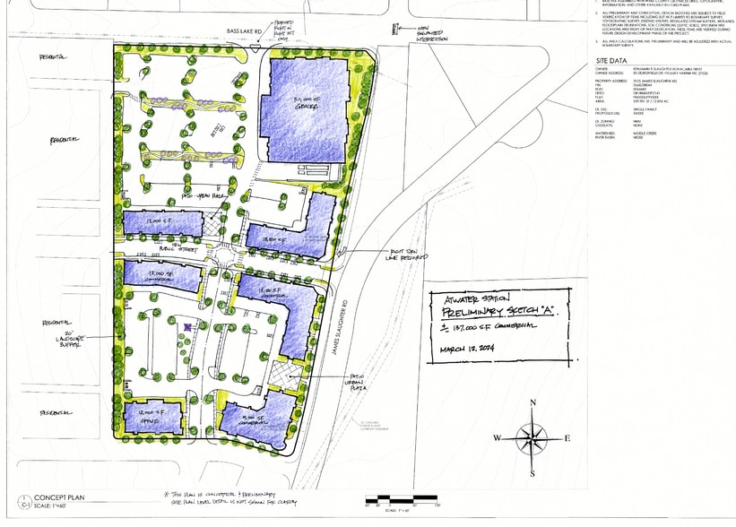
- Suits a shopping center of about 140,000 sf Grocery as anchor ideal (per town)
- Mostly cleared. Mature landscaping and features around exisitng home add value for a botique hotel or restaurant
- Demographic shifts favor a higher end development with potential for a botique hotel
Executive Summary
Data Room Click Here to Access
Property Facts
1 Lot Available
Lot
| Price | $12,122,001 CAD | Lot Size | 12.85 AC |
| Price Per AC | $943,346.34 CAD |
| Price | $12,122,001 CAD |
| Price Per AC | $943,346.34 CAD |
| Lot Size | 12.85 AC |
Approved for ~140,000 grocery anchored shopping center. Mostly cleared. Flat, no blue line streams. Corner. Booming area. See OM for more information.
Description
Prime opportunity for a 140,000 sf shopping center on 12.85 acres in rapidly developing southern Wake County. Atwater Square will be the commercial component of the 400+ Atwater Station development. Houses are going in, road and utility improvement complete. No blue line streams or wetlands. Mature landscaping around existing home offers value for a boutique hotel or high end restaurant. Town wants a Village Square sort of feel. Seller does not want to subdivide but will entertain any reasonable offer.
Property Taxes
| Parcel Number | 0668.03-23-8044-000 | Improvements Assessment | $932,171 CAD |
| Land Assessment | $960,669 CAD | Total Assessment | $1,892,839 CAD |
Property Taxes
Presented by
3125 James Slaughter Road - Atwater Village
Hmm, there seems to have been an error sending your message. Please try again.
Thanks! Your message was sent.

