Your email has been sent.
Investment Highlights
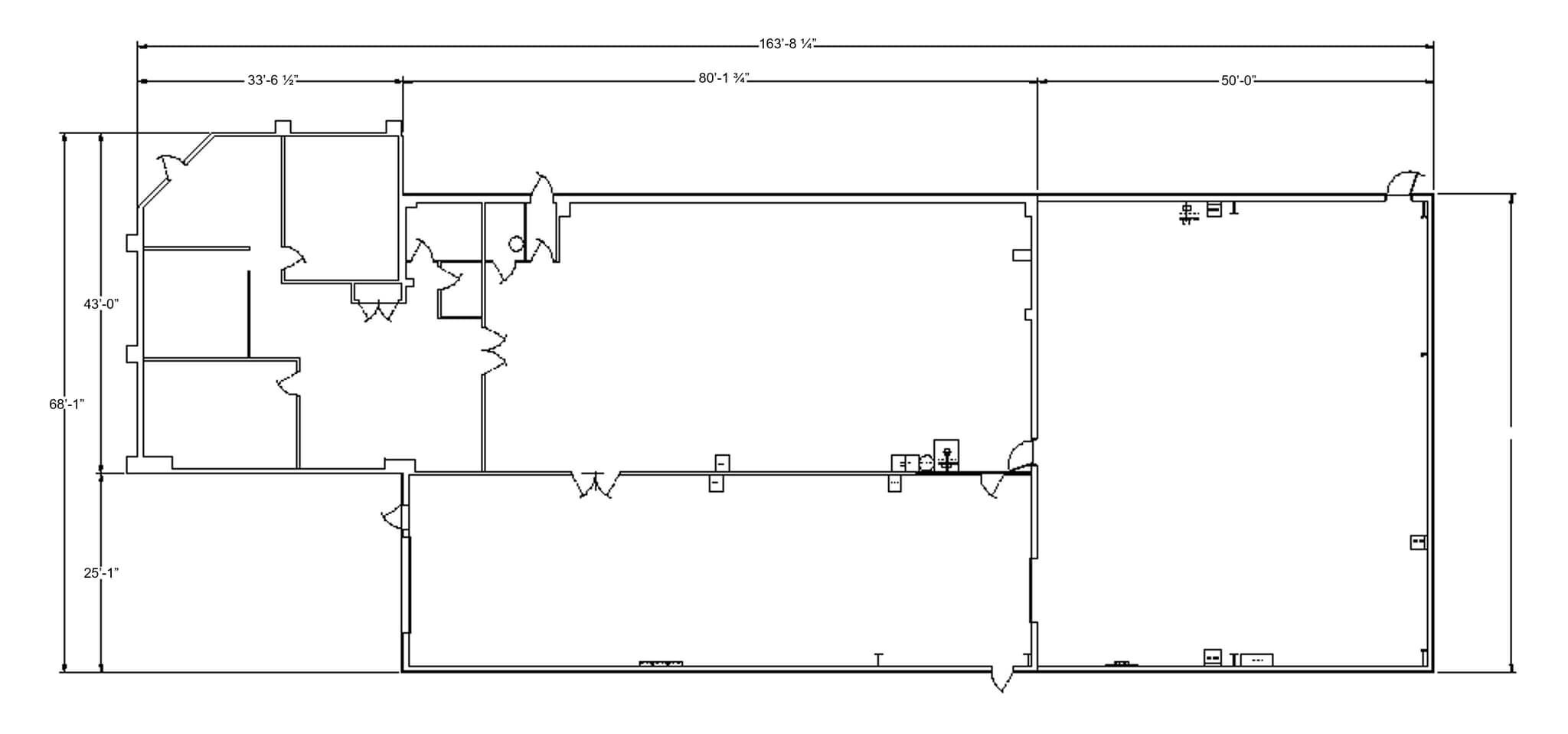
- Includes 1,860± SF of office, 2,590± SF open office/lab space, and 4,970± SF manufacturing/shop area
- Less than 1 mile from I-70, providing excellent access to regional and interstate transportation routes.
- Strong Power Capacity: 800 amps, 208V, 3-phase electrical service
Executive Summary
Functional Layout: Includes 1,860± SF of office, 2,590± SF open office/lab space, and 4,970± SF manufacturing/shop area, suitable for light manufacturing, R&D, or service users.
Efficient Building Features: 12’–13’ Clear height, one (1) drive-in door, three (3) ½-ton jib cranes in place, and 100% air conditioning throughout.
Strong Power Capacity: 800 amps, 208V, 3-phase electrical service supports power-intensive operations.
Strategic Location: Less than 1 mile from I-70, providing excellent access to regional and interstate transportation routes.
Taxes & Operating Expenses (Actual - 2026) Click Here to Access |
Annual (CAD) | Annual Per SF (CAD) |
|---|---|---|
| Taxes |
-
|
-
|
| Operating Expenses |
-
|
-
|
| Total Expenses |
$99,999
|
$9.99
|
Taxes & Operating Expenses (Actual - 2026) Click Here to Access
| Taxes (CAD) | |
|---|---|
| Annual | - |
| Annual Per SF | - |
| Operating Expenses (CAD) | |
|---|---|
| Annual | - |
| Annual Per SF | - |
| Total Expenses (CAD) | |
|---|---|
| Annual | $99,999 |
| Annual Per SF | $9.99 |
Property Facts
| Sale Type | Owner User | No. Stories | 1 |
| Property Type | Industrial | Year Built | 1996 |
| Property Subtype | Service | Tenancy | Single |
| Building Class | C | Parking Ratio | 1.91/1,000 SF |
| Lot Size | 1.38 AC | Clear Ceiling Height | 13’ |
| Rentable Building Area | 9,420 SF | No. Drive In / Grade-Level Doors | 1 |
| Zoning | C-4 - Designed to support a wide range of commercial, office, and mixed-use developments in the city's core. | ||
| Sale Type | Owner User |
| Property Type | Industrial |
| Property Subtype | Service |
| Building Class | C |
| Lot Size | 1.38 AC |
| Rentable Building Area | 9,420 SF |
| No. Stories | 1 |
| Year Built | 1996 |
| Tenancy | Single |
| Parking Ratio | 1.91/1,000 SF |
| Clear Ceiling Height | 13’ |
| No. Drive In / Grade-Level Doors | 1 |
| Zoning | C-4 - Designed to support a wide range of commercial, office, and mixed-use developments in the city's core. |
Amenities
- Air Conditioning
Space Availability
- Space
- Size
- Space Use
- Build-Out
- Available
9,420± SF Industrial/Flex Building situated on 1.382± acres. Functional Layout: Includes 1,860± SF of office, 2,590± SF open office/lab space, and 4,970± SF manufacturing/shop area, suitable for light manufacturing, R&D, or service users. Efficient Building Features: 12’–13’ Clear height, one (1) drive-in door, three (3) ½-ton jib cranes in place, and 100% air conditioning throughout. Strong Power Capacity: 800 amps, 208V, 3-phase electrical service supports power-intensive operations. Strategic Location: Less than 1 mile from I-70, providing excellent access to regional and interstate transportation routes.
| Space | Size | Space Use | Build-Out | Available |
| 1st Floor | 9,420 SF | Industrial | - | Now |
1st Floor
| Size |
| 9,420 SF |
| Space Use |
| Industrial |
| Build-Out |
| - |
| Available |
| Now |
1st Floor
| Size | 9,420 SF |
| Space Use | Industrial |
| Build-Out | - |
| Available | Now |
9,420± SF Industrial/Flex Building situated on 1.382± acres. Functional Layout: Includes 1,860± SF of office, 2,590± SF open office/lab space, and 4,970± SF manufacturing/shop area, suitable for light manufacturing, R&D, or service users. Efficient Building Features: 12’–13’ Clear height, one (1) drive-in door, three (3) ½-ton jib cranes in place, and 100% air conditioning throughout. Strong Power Capacity: 800 amps, 208V, 3-phase electrical service supports power-intensive operations. Strategic Location: Less than 1 mile from I-70, providing excellent access to regional and interstate transportation routes.
Property Taxes
| Parcel Number | M57-00714-0041 | Improvements Assessment | $231,475 CAD (2025) |
| Land Assessment | $30,702 CAD (2025) | Total Assessment | $262,177 CAD (2025) |
Property Taxes
Presented by
315 Huls Dr
Hmm, there seems to have been an error sending your message. Please try again.
Thanks! Your message was sent.





