Your email has been sent.
Park Highlights
- Frontage to Charleston Blvd and Close to Major Freeways
- 3 phase Power
- Proximity to the US-95 and I-15
- Freestanding Building just Minutes from US 95 and I 15
- Property Mangement Staff On-Site
- Frontage on Pecos Road
- Close Proximity to the US-95 and I-15
Park Facts
Features and Amenities
- 24 Hour Access
- Fenced Lot
- Property Manager on Site
- Skylights
All Available Spaces(8)
Display Rental Rate as
- Space
- Size
- Term
- Rental Rate
- Space Use
- Build-Out
- Available
This versatile space includes a welcoming reception area, two private offices for focused work, a conveniently located restroom, and expansive warehouse space equipped with a robust three-phase power system providing 200 amps, perfect for various business needs.
- Lease rate does not include utilities, property expenses or building services
- Space is in Excellent Condition
- Partitioned Offices
- Private Restrooms
- Includes 431 SF of dedicated office space
- 1 Drive Bay
- Reception Area
- Secure Storage
| Space | Size | Term | Rental Rate | Space Use | Build-Out | Available |
| 1st Floor - 102 | 1,440 SF | 2-5 Years | $19.01 CAD/SF/YR $1.58 CAD/SF/MO $27,374 CAD/YR $2,281 CAD/MO | Flex | Full Build-Out | 2026-06-01 |
3340 Sunrise Ave - 1st Floor - 102
- Space
- Size
- Term
- Rental Rate
- Space Use
- Build-Out
- Available
This unit features a welcoming reception area, one private office, a convenient restroom, and a spacious warehouse suitable for various storage needs.
- Lease rate does not include utilities, property expenses or building services
- 1 Drive Bay
- Private Restrooms
- Includes 455 SF of dedicated office space
- Space is in Excellent Condition
- One private office
| Space | Size | Term | Rental Rate | Space Use | Build-Out | Available |
| 1st Floor - 103 | 1,647 SF | 2-5 Years | $16.53 CAD/SF/YR $1.38 CAD/SF/MO $27,225 CAD/YR $2,269 CAD/MO | Industrial | Full Build-Out | Now |
3300 Sunrise Ave - 1st Floor - 103
- Space
- Size
- Term
- Rental Rate
- Space Use
- Build-Out
- Available
The space includes a reception area, a private office, a restroom, and a warehouse. It is equipped with a 100A, 3-phase power supply.
- Lease rate does not include utilities, property expenses or building services
- 1 Drive Bay
- One private office
- Includes 470 SF of dedicated office space
- Space is in Excellent Condition
| Space | Size | Term | Rental Rate | Space Use | Build-Out | Available |
| 1st Floor - 105-106 | 2,061 SF | 2-5 Years | $15.70 CAD/SF/YR $1.31 CAD/SF/MO $32,365 CAD/YR $2,697 CAD/MO | Industrial | Full Build-Out | Now |
61 N Pecos Rd - 1st Floor - 105-106
- Space
- Size
- Term
- Rental Rate
- Space Use
- Build-Out
- Available
Storefront-facing Mojave, with easy access to the 95 and 15 highways. The unit includes a reception area, two private offices, a restroom, and a warehouse. The space has 3-phase power with 200 amps available.
- Lease rate does not include utilities, property expenses or building services
- 1 Drive Bay
- Partitioned Offices
- Secure Storage
- Includes 624 SF of dedicated office space
- Space is in Excellent Condition
- Private Restrooms
- Two private offices
| Space | Size | Term | Rental Rate | Space Use | Build-Out | Available |
| 1st Floor - 106 | 1,680 SF | 2-5 Years | $19.84 CAD/SF/YR $1.65 CAD/SF/MO $33,324 CAD/YR $2,777 CAD/MO | Industrial | Full Build-Out | Now |
3100 E Charleston Blvd - 1st Floor - 106
- Space
- Size
- Term
- Rental Rate
- Space Use
- Build-Out
- Available
Spacious open office plus private office, restroom, and warehouse. Features 3-phase 100A power and 12' clear height for flexible commercial use.
- Lease rate does not include utilities, property expenses or building services
- 1 Drive Bay
- Includes 498 SF of dedicated office space
- One private office
| Space | Size | Term | Rental Rate | Space Use | Build-Out | Available |
| 1st Floor - 108 | 1,668 SF | 2-5 Years | $14.05 CAD/SF/YR $1.17 CAD/SF/MO $23,436 CAD/YR $1,953 CAD/MO | Industrial | Full Build-Out | Now |
21 N Pecos Rd - 1st Floor - 108
- Space
- Size
- Term
- Rental Rate
- Space Use
- Build-Out
- Available
This space includes a welcoming reception area, one private office, a restroom, and a spacious warehouse equipped with ample 3-phase power. Additionally, it offers convenient access for deliveries and is perfect for a variety of business needs.
- Rate includes utilities, building services and property expenses
- Space is in Excellent Condition
- Partitioned Offices
- Private Restrooms
- Includes 418 SF of dedicated office space
- 1 Drive Bay
- Reception Area
- Secure Storage
This unit features a welcoming reception area, three private offices, a restroom, and ample warehouse space, all with 100% A/C.
- Lease rate does not include utilities, property expenses or building services
- Space is in Excellent Condition
- Central Air Conditioning
- Reception Area
- Three Private Offices
- Includes 839 SF of dedicated office space
- 1 Drive Bay
- Partitioned Offices
- Private Restrooms
| Space | Size | Term | Rental Rate | Space Use | Build-Out | Available |
| 1st Floor - 109 | 1,606 SF | 2-5 Years | $19.01 CAD/SF/YR $1.58 CAD/SF/MO $30,529 CAD/YR $2,544 CAD/MO | Flex | Full Build-Out | 2026-06-01 |
| 1st Floor - 110 | 1,550 SF | 2-5 Years | $19.01 CAD/SF/YR $1.58 CAD/SF/MO $29,465 CAD/YR $2,455 CAD/MO | Flex | Full Build-Out | Now |
71 N Pecos Rd - 1st Floor - 109
71 N Pecos Rd - 1st Floor - 110
- Space
- Size
- Term
- Rental Rate
- Space Use
- Build-Out
- Available
This unit has a reception area, (1) private office, restroom, and a warehouse, making it an ideal space for both administrative work and storage needs.
- Lease rate does not include utilities, property expenses or building services
- 1 Drive Bay
- One private office
- Includes 397 SF of dedicated office space
- Space is in Excellent Condition
| Space | Size | Term | Rental Rate | Space Use | Build-Out | Available |
| 1st Floor - 110 | 1,320 SF | 2-5 Years | $19.01 CAD/SF/YR $1.58 CAD/SF/MO $25,093 CAD/YR $2,091 CAD/MO | Industrial | Full Build-Out | 2026-05-01 |
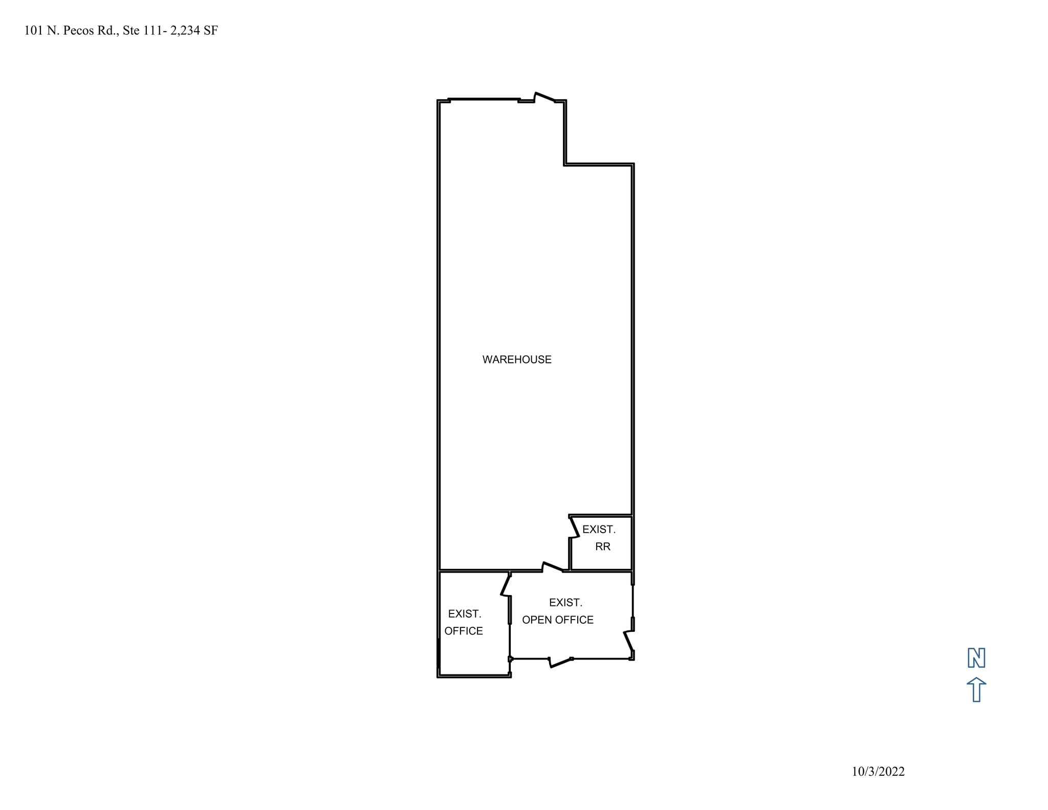
101 N Pecos Rd - 1st Floor - 110
3340 Sunrise Ave - 1st Floor - 102
| Size | 1,440 SF |
| Term | 2-5 Years |
| Rental Rate | $19.01 CAD/SF/YR |
| Space Use | Flex |
| Build-Out | Full Build-Out |
| Available | 2026-06-01 |
This versatile space includes a welcoming reception area, two private offices for focused work, a conveniently located restroom, and expansive warehouse space equipped with a robust three-phase power system providing 200 amps, perfect for various business needs.
- Lease rate does not include utilities, property expenses or building services
- Includes 431 SF of dedicated office space
- Space is in Excellent Condition
- 1 Drive Bay
- Partitioned Offices
- Reception Area
- Private Restrooms
- Secure Storage
3300 Sunrise Ave - 1st Floor - 103
| Size | 1,647 SF |
| Term | 2-5 Years |
| Rental Rate | $16.53 CAD/SF/YR |
| Space Use | Industrial |
| Build-Out | Full Build-Out |
| Available | Now |
This unit features a welcoming reception area, one private office, a convenient restroom, and a spacious warehouse suitable for various storage needs.
- Lease rate does not include utilities, property expenses or building services
- Includes 455 SF of dedicated office space
- 1 Drive Bay
- Space is in Excellent Condition
- Private Restrooms
- One private office
61 N Pecos Rd - 1st Floor - 105-106
| Size | 2,061 SF |
| Term | 2-5 Years |
| Rental Rate | $15.70 CAD/SF/YR |
| Space Use | Industrial |
| Build-Out | Full Build-Out |
| Available | Now |
The space includes a reception area, a private office, a restroom, and a warehouse. It is equipped with a 100A, 3-phase power supply.
- Lease rate does not include utilities, property expenses or building services
- Includes 470 SF of dedicated office space
- 1 Drive Bay
- Space is in Excellent Condition
- One private office
3100 E Charleston Blvd - 1st Floor - 106
| Size | 1,680 SF |
| Term | 2-5 Years |
| Rental Rate | $19.84 CAD/SF/YR |
| Space Use | Industrial |
| Build-Out | Full Build-Out |
| Available | Now |
Storefront-facing Mojave, with easy access to the 95 and 15 highways. The unit includes a reception area, two private offices, a restroom, and a warehouse. The space has 3-phase power with 200 amps available.
- Lease rate does not include utilities, property expenses or building services
- Includes 624 SF of dedicated office space
- 1 Drive Bay
- Space is in Excellent Condition
- Partitioned Offices
- Private Restrooms
- Secure Storage
- Two private offices
21 N Pecos Rd - 1st Floor - 108
| Size | 1,668 SF |
| Term | 2-5 Years |
| Rental Rate | $14.05 CAD/SF/YR |
| Space Use | Industrial |
| Build-Out | Full Build-Out |
| Available | Now |
Spacious open office plus private office, restroom, and warehouse. Features 3-phase 100A power and 12' clear height for flexible commercial use.
- Lease rate does not include utilities, property expenses or building services
- Includes 498 SF of dedicated office space
- 1 Drive Bay
- One private office
71 N Pecos Rd - 1st Floor - 109
| Size | 1,606 SF |
| Term | 2-5 Years |
| Rental Rate | $19.01 CAD/SF/YR |
| Space Use | Flex |
| Build-Out | Full Build-Out |
| Available | 2026-06-01 |
This space includes a welcoming reception area, one private office, a restroom, and a spacious warehouse equipped with ample 3-phase power. Additionally, it offers convenient access for deliveries and is perfect for a variety of business needs.
- Rate includes utilities, building services and property expenses
- Includes 418 SF of dedicated office space
- Space is in Excellent Condition
- 1 Drive Bay
- Partitioned Offices
- Reception Area
- Private Restrooms
- Secure Storage
71 N Pecos Rd - 1st Floor - 110
| Size | 1,550 SF |
| Term | 2-5 Years |
| Rental Rate | $19.01 CAD/SF/YR |
| Space Use | Flex |
| Build-Out | Full Build-Out |
| Available | Now |
This unit features a welcoming reception area, three private offices, a restroom, and ample warehouse space, all with 100% A/C.
- Lease rate does not include utilities, property expenses or building services
- Includes 839 SF of dedicated office space
- Space is in Excellent Condition
- 1 Drive Bay
- Central Air Conditioning
- Partitioned Offices
- Reception Area
- Private Restrooms
- Three Private Offices
101 N Pecos Rd - 1st Floor - 110
| Size | 1,320 SF |
| Term | 2-5 Years |
| Rental Rate | $19.01 CAD/SF/YR |
| Space Use | Industrial |
| Build-Out | Full Build-Out |
| Available | 2026-05-01 |
This unit has a reception area, (1) private office, restroom, and a warehouse, making it an ideal space for both administrative work and storage needs.
- Lease rate does not include utilities, property expenses or building services
- Includes 397 SF of dedicated office space
- 1 Drive Bay
- Space is in Excellent Condition
- One private office
Park Overview
The Spectrum of Las Vegas is a premier, centrally located business park offering exceptional visibility and seamless access to Downtown, Henderson, the Strip, and North Las Vegas. Featuring flexible M-Zoning, a wide array of office, industrial, and warehouse spaces, and robust 3-phase power, Spectrum supports a diverse range of business needs. Tenants benefit from on-site management, dock and grade-level loading, modern HVAC systems, and immediate access to major freeways. Experience unmatched connectivity, convenience, and operational flexibility in the heart of Las Vegas.
Presented by
The Spectrum of Las Vegas | Las Vegas, NV 89104
Hmm, there seems to have been an error sending your message. Please try again.
Thanks! Your message was sent.



