Log In/Sign Up
Your email has been sent.
3153 Rochester Rd
Troy, MI 48083
Retail Property For Lease
·
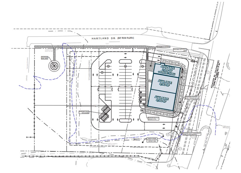
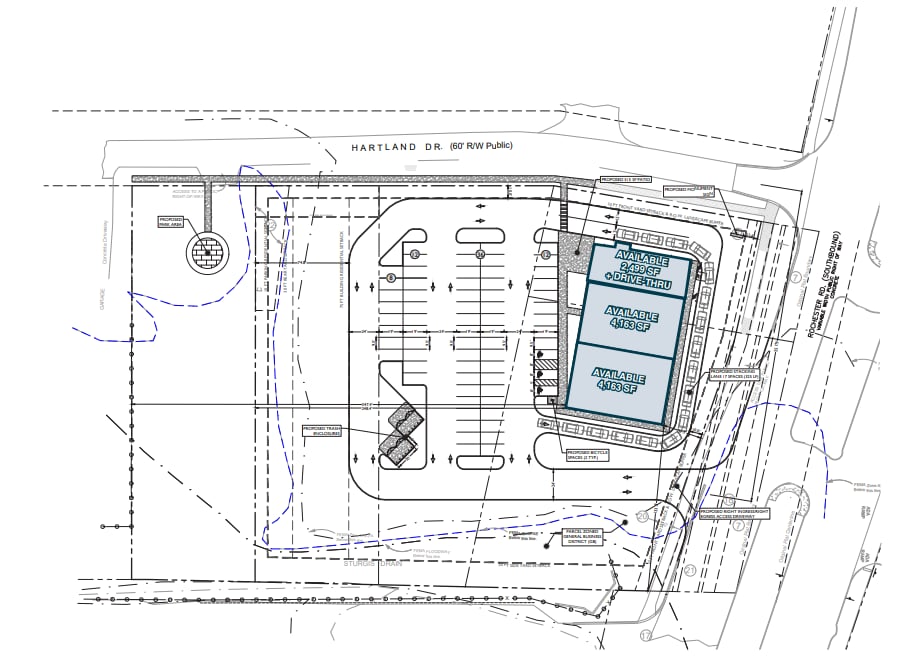
10,825 SF

Highlights
- Retail, restaurant and patio opportunities available for lease.
- Retail and daily-needs anchored power centers; several hotels and upscale restaurants; and numerous office buildings.
- Highly desired trade area as Big Beaver Road is home to Michigan’s top, upscale Somerset Mall.
Property Facts
| Total Space Available | 10,825 SF | Total Land Area | 2.82 AC |
| Property Type | Retail | Year Built | 2027 |
| Property Subtype | Fast Food | Construction Status | Proposed |
| Gross Leasable Area | 10,825 SF |
| Total Space Available | 10,825 SF |
| Property Type | Retail |
| Property Subtype | Fast Food |
| Gross Leasable Area | 10,825 SF |
| Total Land Area | 2.82 AC |
| Year Built | 2027 |
| Construction Status | Proposed |
About the Property
Proposed retail building in Troy, MI.
1 of 2
Videos
Matterport 3D Exterior
Matterport 3D Tour
Photos
Street View
Street
Map
