Your email has been sent.
Sublease Highlights
- 6,441 SF of professional office space
- Move-in ready
- Multiple private offices and open work areas
- Easy access to I-81 and downtown Harrisonburg
- Abundant natural light with large windows throughout
- Dedicated conference rooms and reception area
All Available Space(1)
Display Rental Rate as
- Space
- Size
- Term
- Rental Rate
- Space Use
- Build-Out
- Available
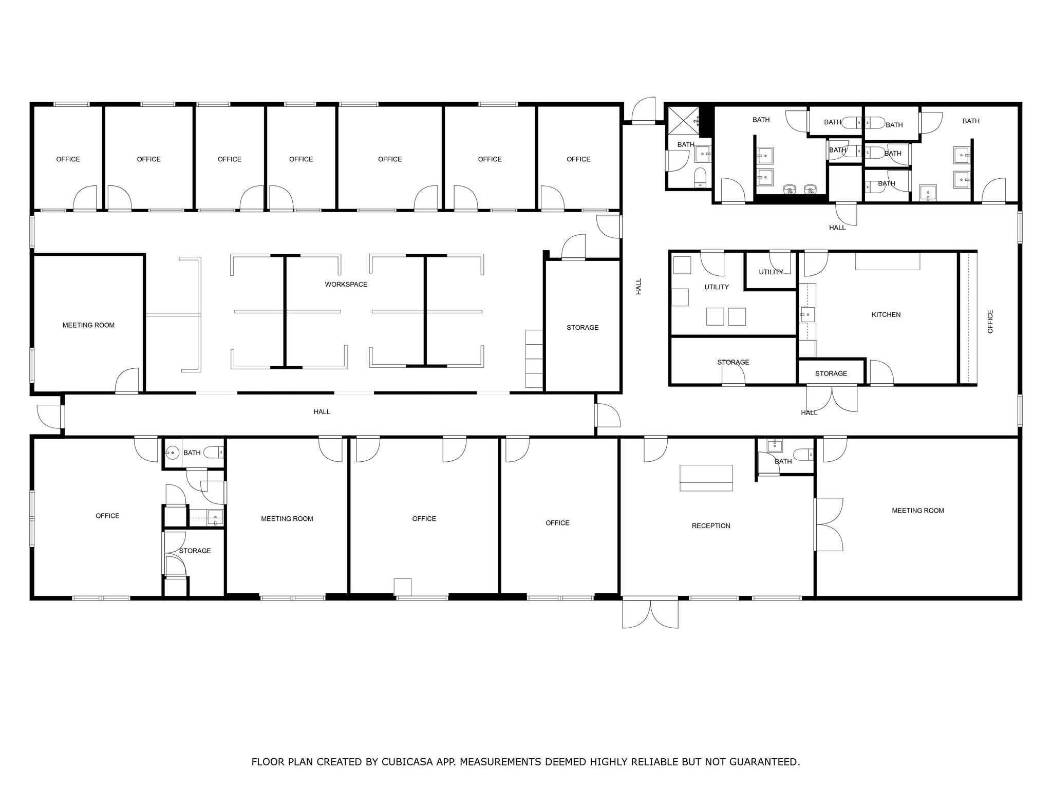
This 6,441 SF office suite offers a versatile and professional environment ideal for a wide range of business uses. The space features a functional layout with multiple private offices, open work areas, conference rooms, a reception area, and a kitchenette/break room. Large windows provide abundant natural light throughout the suite, creating a bright and welcoming atmosphere. Located just north of Harrisonburg, VA, the property offers excellent visibility and accessibility along Route 11 (N. Valley Pike), with quick access to I-81 and downtown. Ample on-site parking and flexible zoning make this an ideal location for medical, legal, tech, or administrative operations. The suite is move-in ready and can be customized to meet tenant needs.
- Sublease space available from current tenant
- Fully Built-Out as Standard Office
- Fits 17 - 52 People
- 3 Conference Rooms
- Space is in Excellent Condition
- Reception Area
- Fully Carpeted
- Drop Ceilings
- Recessed Lighting
- Emergency Lighting
- Hardwood Floors
- Wheelchair Accessible
- Lease rate does not include utilities, property expenses or building services
- Mostly Open Floor Plan Layout
- 12 Private Offices
- 12 Workstations
- Central Air and Heating
- Private Restrooms
- Security System
- Secure Storage
- Natural Light
- Open-Plan
- Smoke Detector
| Space | Size | Term | Rental Rate | Space Use | Build-Out | Available |
| 1st Floor | 6,441 SF | Oct 2031 | $28.07 CAD/SF/YR $2.34 CAD/SF/MO $180,769 CAD/YR $15,064 CAD/MO | Office | Full Build-Out | 60 Days |
1st Floor
| Size |
| 6,441 SF |
| Term |
| Oct 2031 |
| Rental Rate |
| $28.07 CAD/SF/YR $2.34 CAD/SF/MO $180,769 CAD/YR $15,064 CAD/MO |
| Space Use |
| Office |
| Build-Out |
| Full Build-Out |
| Available |
| 60 Days |
1st Floor
| Size | 6,441 SF |
| Term | Oct 2031 |
| Rental Rate | $28.07 CAD/SF/YR |
| Space Use | Office |
| Build-Out | Full Build-Out |
| Available | 60 Days |
This 6,441 SF office suite offers a versatile and professional environment ideal for a wide range of business uses. The space features a functional layout with multiple private offices, open work areas, conference rooms, a reception area, and a kitchenette/break room. Large windows provide abundant natural light throughout the suite, creating a bright and welcoming atmosphere. Located just north of Harrisonburg, VA, the property offers excellent visibility and accessibility along Route 11 (N. Valley Pike), with quick access to I-81 and downtown. Ample on-site parking and flexible zoning make this an ideal location for medical, legal, tech, or administrative operations. The suite is move-in ready and can be customized to meet tenant needs.
- Sublease space available from current tenant
- Lease rate does not include utilities, property expenses or building services
- Fully Built-Out as Standard Office
- Mostly Open Floor Plan Layout
- Fits 17 - 52 People
- 12 Private Offices
- 3 Conference Rooms
- 12 Workstations
- Space is in Excellent Condition
- Central Air and Heating
- Reception Area
- Private Restrooms
- Fully Carpeted
- Security System
- Drop Ceilings
- Secure Storage
- Recessed Lighting
- Natural Light
- Emergency Lighting
- Open-Plan
- Hardwood Floors
- Smoke Detector
- Wheelchair Accessible
Property Overview
Discover 6,441 square feet of professional office space located on the north side of Harrisonburg, VA, at 3156 N. Valley Pike. This well-maintained office suite offers a flexible layout ideal for a variety of business uses, including medical, legal, administrative, and tech operations. The space features multiple private offices, open work areas, conference rooms, a welcoming reception area, and a kitchenette/break room. Large windows throughout the suite provide abundant natural light, creating a bright and productive work environment. Situated just minutes from I-81 and downtown Harrisonburg, the property offers excellent accessibility and visibility along Route 11. Ample on-site surface parking ensures convenience for both employees and visitors. The surrounding area includes a mix of commercial and residential developments, offering a quiet yet connected setting for your business. Whether you're expanding, relocating, or launching a new office, this space is move-in ready and can be tailored to meet your operational needs.
- Signage
Property Facts
Select Tenants
- Floor
- Tenant Name
- Industry
- 1st
- Soli Organic
- Retailer
Presented by
Office Building | 3156 N Valley Pike
Hmm, there seems to have been an error sending your message. Please try again.
Thanks! Your message was sent.





