Your email has been sent.
Park Highlights
- Conveniently located on the Frisco / McKinney Border
- Building & Monument Signage available
- Close proximity to Methodist McKinney Hospital
- Newer Construction built in 2023
- Minutes from the Sam Rayburn Tollway
- Synergistic professional environment with a fully maintained landscape
Park Facts
All Available Spaces(3)
Display Rental Rate as
- Space
- Size
- Term
- Rental Rate
- Space Use
- Build-Out
- Available
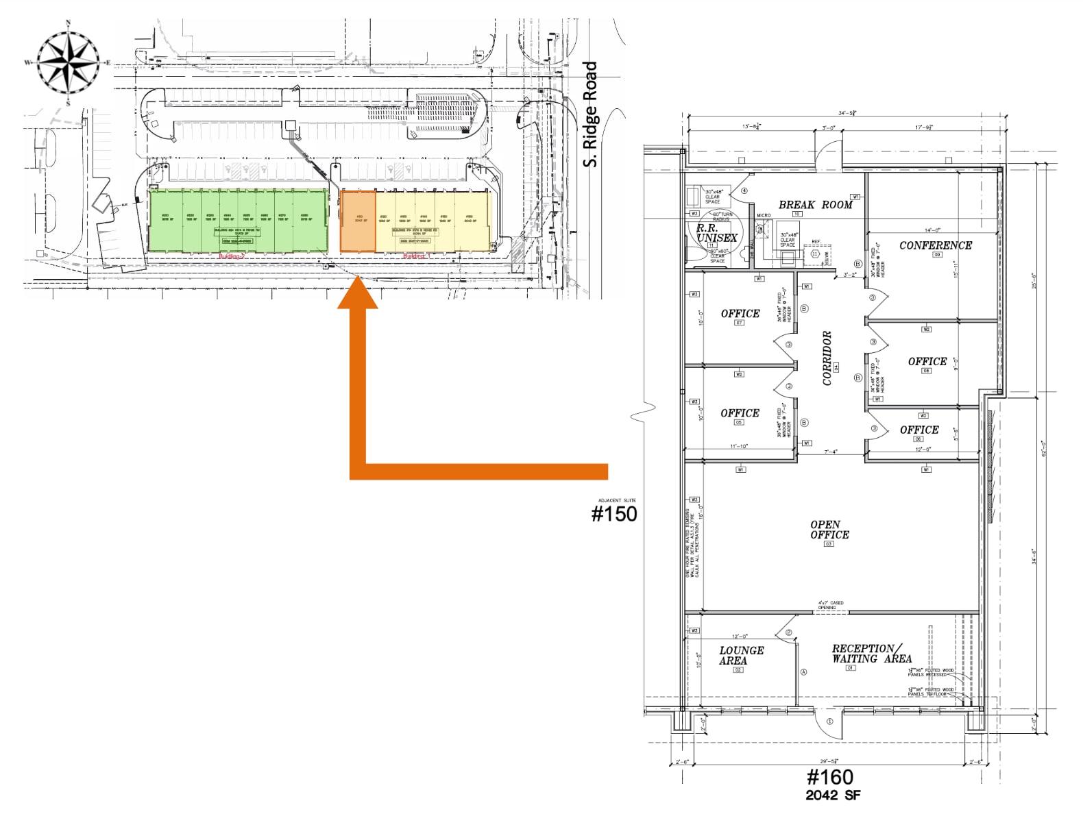
This corner professional office consists of approximately 2,402 SF. The stunning modern interior offers a very welcoming feel to both occupants and clients alike. This suite offers a large reception with waiting area, three private offices, a large open office perfect for workstations, one conference room, a game room (could be used as a training room or an additional open office), kitchen, storage closet, and a restroom. There is a secondary entrance / exit available at the rear of the suite. HVAC is Tenant controlled. Building and monument signage is available. Call today for a tour.
- Lease rate does not include utilities, property expenses or building services
- Fits 7 - 20 People
- 1 Conference Room
- Space is in Excellent Condition
- Reception Area
- Corner Space
- Recessed Lighting
- Hardwood Floors
- Wheelchair Accessible
- Corner professional office suite
- Fully Built-Out as Standard Office
- 3 Private Offices
- 1 Workstation
- Central Air and Heating
- Fully Carpeted
- High Ceilings
- After Hours HVAC Available
- Smoke Detector
- $32 - $34 + NNN for Lease
- Modern upscale finishes
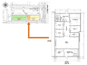
The shell suite consists of approximately 2,464 SF and divisible to 1,232 SF. Suites are individually metered for electric. HVAC is fully controlled by the Owner / Tenant. Building and Monument Signage are available. Perfect space for any professional to custom finish out to meet the needs of any business. Call today for a tour.
- Lease rate does not include utilities, property expenses or building services
- Plentiful Parking adjacent to suite
- $30 - $34 + NNN for Lease
- Wheelchair Accessible
- 1,232 SF - 2,464 SF available
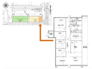
This corner professional office consists of approximately 2,402 SF. Enjoy this suite with its unique and upscale modern interior finishes. This suite offers a reception with waiting area with lounge area, four private offices, a large open office perfect for workstations, one conference room, kitchen, and a restroom with a shower. There is an additional rear entrance / exit at the rear of the suite. HVAC is Tenant controlled. Building and monument signage is available. Call today for a tour.
- Lease rate does not include utilities, property expenses or building services
- Fits 7 - 20 People
- 1 Conference Room
- Space is in Excellent Condition
- Reception Area
- Corner Space
- Recessed Lighting
- Hardwood Floors
- Wheelchair Accessible
- Corner professional office suite
- Fully Built-Out as Standard Office
- 4 Private Offices
- 1 Workstation
- Central Air and Heating
- Fully Carpeted
- High Ceilings
- After Hours HVAC Available
- Smoke Detector
- $32 - $34 + NNN for Lease
- Modern upscale finishes
| Space | Size | Term | Rental Rate | Space Use | Build-Out | Available |
| 1st Floor, Ste 110 | 2,402 SF | 3 Years | $43.70 CAD/SF/YR $3.64 CAD/SF/MO $104,970 CAD/YR $8,748 CAD/MO | Office | Full Build-Out | Now |
| 1st Floor, Ste 120 | 1,232-2,464 SF | 5 Years | $40.97 CAD/SF/YR $3.41 CAD/SF/MO $100,950 CAD/YR $8,412 CAD/MO | Office/Medical | Shell Space | Now |
| 1st Floor, Ste 160 | 2,402 SF | 3 Years | $43.70 CAD/SF/YR $3.64 CAD/SF/MO $104,970 CAD/YR $8,748 CAD/MO | Office | Full Build-Out | Now |
3170 Ridge Rd - 1st Floor - Ste 110
3170 Ridge Rd - 1st Floor - Ste 120
3170 Ridge Rd - 1st Floor - Ste 160
3170 Ridge Rd - 1st Floor - Ste 110
| Size | 2,402 SF |
| Term | 3 Years |
| Rental Rate | $43.70 CAD/SF/YR |
| Space Use | Office |
| Build-Out | Full Build-Out |
| Available | Now |
This corner professional office consists of approximately 2,402 SF. The stunning modern interior offers a very welcoming feel to both occupants and clients alike. This suite offers a large reception with waiting area, three private offices, a large open office perfect for workstations, one conference room, a game room (could be used as a training room or an additional open office), kitchen, storage closet, and a restroom. There is a secondary entrance / exit available at the rear of the suite. HVAC is Tenant controlled. Building and monument signage is available. Call today for a tour.
- Lease rate does not include utilities, property expenses or building services
- Fully Built-Out as Standard Office
- Fits 7 - 20 People
- 3 Private Offices
- 1 Conference Room
- 1 Workstation
- Space is in Excellent Condition
- Central Air and Heating
- Reception Area
- Fully Carpeted
- Corner Space
- High Ceilings
- Recessed Lighting
- After Hours HVAC Available
- Hardwood Floors
- Smoke Detector
- Wheelchair Accessible
- $32 - $34 + NNN for Lease
- Corner professional office suite
- Modern upscale finishes
3170 Ridge Rd - 1st Floor - Ste 120
| Size | 1,232-2,464 SF |
| Term | 5 Years |
| Rental Rate | $40.97 CAD/SF/YR |
| Space Use | Office/Medical |
| Build-Out | Shell Space |
| Available | Now |
The shell suite consists of approximately 2,464 SF and divisible to 1,232 SF. Suites are individually metered for electric. HVAC is fully controlled by the Owner / Tenant. Building and Monument Signage are available. Perfect space for any professional to custom finish out to meet the needs of any business. Call today for a tour.
- Lease rate does not include utilities, property expenses or building services
- Wheelchair Accessible
- Plentiful Parking adjacent to suite
- 1,232 SF - 2,464 SF available
- $30 - $34 + NNN for Lease
3170 Ridge Rd - 1st Floor - Ste 160
| Size | 2,402 SF |
| Term | 3 Years |
| Rental Rate | $43.70 CAD/SF/YR |
| Space Use | Office |
| Build-Out | Full Build-Out |
| Available | Now |
This corner professional office consists of approximately 2,402 SF. Enjoy this suite with its unique and upscale modern interior finishes. This suite offers a reception with waiting area with lounge area, four private offices, a large open office perfect for workstations, one conference room, kitchen, and a restroom with a shower. There is an additional rear entrance / exit at the rear of the suite. HVAC is Tenant controlled. Building and monument signage is available. Call today for a tour.
- Lease rate does not include utilities, property expenses or building services
- Fully Built-Out as Standard Office
- Fits 7 - 20 People
- 4 Private Offices
- 1 Conference Room
- 1 Workstation
- Space is in Excellent Condition
- Central Air and Heating
- Reception Area
- Fully Carpeted
- Corner Space
- High Ceilings
- Recessed Lighting
- After Hours HVAC Available
- Hardwood Floors
- Smoke Detector
- Wheelchair Accessible
- $32 - $34 + NNN for Lease
- Corner professional office suite
- Modern upscale finishes
Park Overview
Located on the border of Frisco and McKinney, Eldoridge Plaza consists of 2 professional / medical office buildings. It is located on Ridge Road just south of the signalized intersection at Eldorado Parkway and Ridge Road and minutes from the major arteries including the Sam Rayburn Tollway, the Dallas North Tollway, and Preston Road. Methodist McKinney Hospital and the McKinney Sports Complex are in close proximity to Eldoridge Plaza. Call today for a tour!
- 24 Hour Access
- Signage
- Tenant Controlled HVAC
- Wheelchair Accessible
Presented by
Eldoridge Plaza | McKinney, TX 75070
Hmm, there seems to have been an error sending your message. Please try again.
Thanks! Your message was sent.












