Log In/Sign Up
Your email has been sent.
3184 Pullman St
Costa Mesa, CA 92626
Bldg D · Flex Property For Lease
·
55,693 SF


Highlights
- John Wayne/Orange County Airport Adjacent
- Immediate access to 55,405,5 freeways and 241 toll road
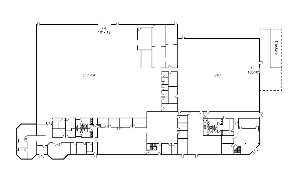
- ±25,260 SF of Existing Improved Area
- Situated at the 55/405 Freeway Interchange
- 1 dock-high loading position MP - Industrial Park Zoning 2 ground-level loading doors (10’x10’ + 10’x12’)
- Can Modify/Remove Improvements to Suit
Features
Clear Height
19’
Drive In Bays
2
Standard Parking Spaces
145
Property Overview
Located in the desirable Airport Area market, 3184 Pullman Street is a ±55,693SF high-image corporate HQ industrial building for lease. This prime location offers a deep talent pool, convenient access to Southern California’s main transportation arteries, and is home to a large number of corporate occupiers. View Website: www.3184pullman.com
Property Facts
Building Size
55,693 SF
Lot Size
1.14 AC
Year Built/Renovated
1973/2003
Construction
Reinforced Concrete
Power Supply
Amps: 2,500 Volts: 277-480
Zoning
MP, Costa Mesa - Industrial Park Zoning
1 of 5
Videos
Matterport 3D Exterior
Matterport 3D Tour
Photos
Street View
Street
Map
