Log In/Sign Up
Your email has been sent.
320 Hatcher Rd - Fully approved plans ready for development 0.68 Acres of Commercial Land Offered at $950,433 CAD in Phoenix, AZ 85020



Executive Summary
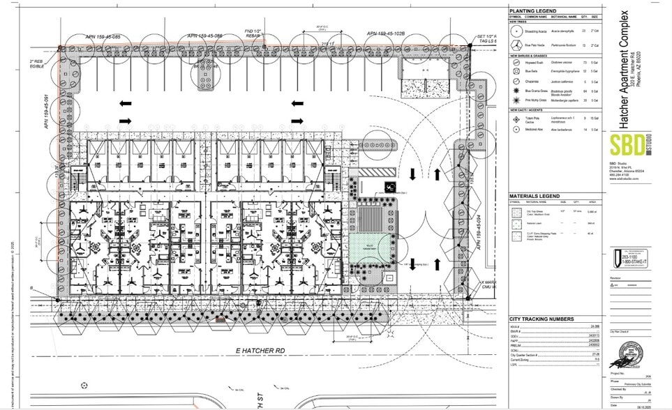
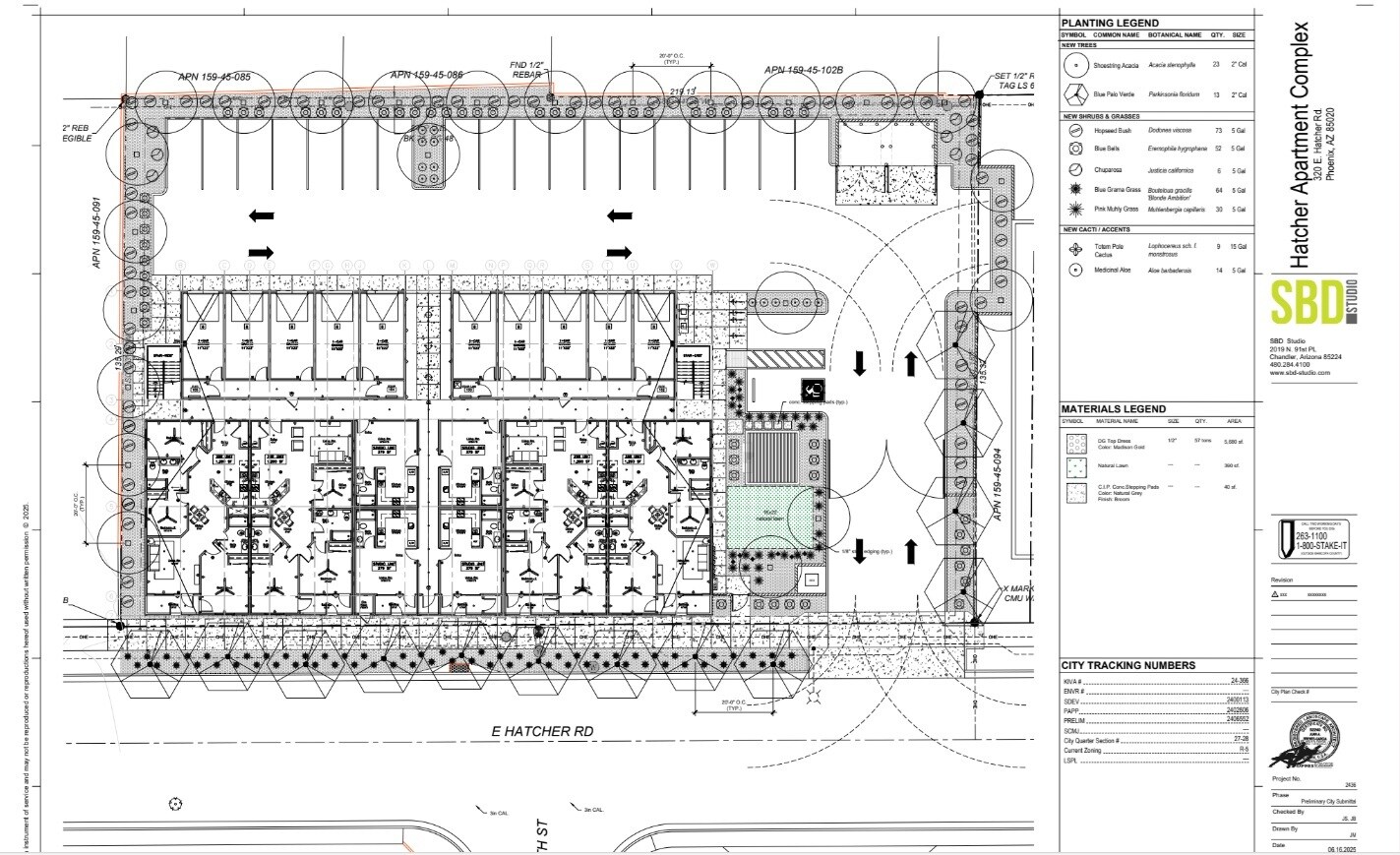
Shovel ready, fully approved project awaiting a developer to pull permits. Plan set conveys with sale. This 2 story, 20 unit multi-family project is zoned as R-5 High Density Multi-Family located within the Hatcher District Overlay that allows restaurants, office, and retail within new developments. There are 10 garages, 20 additional surface parking spaces, 4 three bed/two bath, 6 two bed/two bath, 2 one bed/one bath, and 8 studios. The development consists of 16,396 square feet.
Financial Summary (Pro Forma - 2026) |
Annual (CAD) | Annual Per AC (CAD) |
|---|---|---|
| Gross Rental Income |
$523,490
|
$769,838.94
|
| Other Income |
$12,308
|
$18,099.66
|
| Vacancy Loss |
$26,175
|
$38,491.95
|
| Effective Gross Income |
$509,624
|
$749,446.66
|
| Taxes |
$54,701
|
$80,442.94
|
| Operating Expenses |
$55,775
|
$82,021.63
|
| Total Expenses |
$110,476
|
$162,464.57
|
| Net Operating Income |
$399,148
|
$586,982.08
|
Financial Summary (Pro Forma - 2026)
| Gross Rental Income (CAD) | |
|---|---|
| Annual | $523,490 |
| Annual Per AC | $769,838.94 |
| Other Income (CAD) | |
|---|---|
| Annual | $12,308 |
| Annual Per AC | $18,099.66 |
| Vacancy Loss (CAD) | |
|---|---|
| Annual | $26,175 |
| Annual Per AC | $38,491.95 |
| Effective Gross Income (CAD) | |
|---|---|
| Annual | $509,624 |
| Annual Per AC | $749,446.66 |
| Taxes (CAD) | |
|---|---|
| Annual | $54,701 |
| Annual Per AC | $80,442.94 |
| Operating Expenses (CAD) | |
|---|---|
| Annual | $55,775 |
| Annual Per AC | $82,021.63 |
| Total Expenses (CAD) | |
|---|---|
| Annual | $110,476 |
| Annual Per AC | $162,464.57 |
| Net Operating Income (CAD) | |
|---|---|
| Annual | $399,148 |
| Annual Per AC | $586,982.08 |
Property Facts
| Price | $950,433 CAD | Property Subtype | Commercial |
| Sale Type | Investment | Proposed Use | |
| No. Lots | 1 | Total Lot Size | 0.68 AC |
| Property Type | Land | ||
| Zoning | R-5 - R-5, High Density Multi-Family | ||
| Price | $950,433 CAD |
| Sale Type | Investment |
| No. Lots | 1 |
| Property Type | Land |
| Property Subtype | Commercial |
| Proposed Use | |
| Total Lot Size | 0.68 AC |
| Zoning | R-5 - R-5, High Density Multi-Family |
1 Lot Available
Lot
| Price | $950,433 CAD | Lot Size | 0.68 AC |
| Price Per AC | $1,397,696.09 CAD |
| Price | $950,433 CAD |
| Price Per AC | $1,397,696.09 CAD |
| Lot Size | 0.68 AC |
0.678 Acres of R-5 multifamily with approved plans to build 20 unit apartment complex
Walk Score®
Very Walkable (84)
Bike Score®
Very Bikeable (74)
Property Taxes
| Parcel Numbers | Total Assessment | $26,890 CAD (2025) | |
| Land Assessment | $26,890 CAD (2025) | Annual Taxes | $54,701 CAD |
| Improvements Assessment | $0 CAD (2025) | Tax Year | 2026 |
Property Taxes
Parcel Numbers
Land Assessment
$26,890 CAD (2025)
Improvements Assessment
$0 CAD (2025)
Total Assessment
$26,890 CAD (2025)
Annual Taxes
$54,701 CAD
Tax Year
2026
1 of 11
Videos
Matterport 3D Exterior
Matterport 3D Tour
Photos
Street View
Street
Map
Presented by
320 Hatcher Rd - Fully approved plans ready for development
Already a member? Log In
Hmm, there seems to have been an error sending your message. Please try again.
Thanks! Your message was sent.

