Log In/Sign Up
Your email has been sent.
3200 N Carolina Ave
North Charleston, SC 29405
Office Property For Sale


Executive Summary
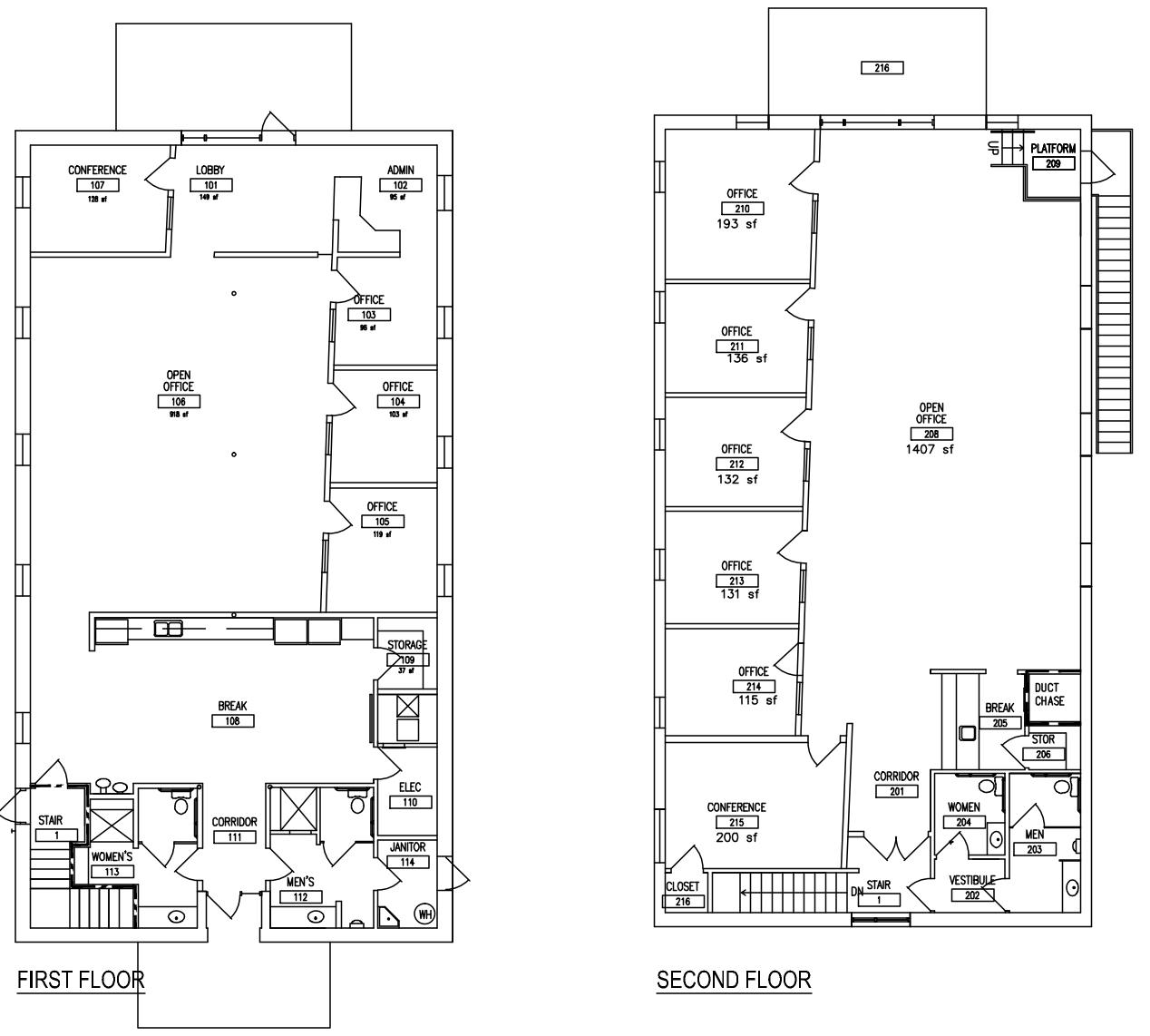
Freestanding two story building in an easy-to-find location off of Spruill Avenue located just minutes from the thriving Park Circle district. Complete interior renovation. The first floor includes a reception area, conference room, three private offices, an open work area, large kitchen that seats up to 20 people with pull down power and a projector. The bathrooms include a full shower in both men's & women's. The second floor includes five private offices, a conference room, open work area, kitchen and bathrooms. The property has an abundance of parking with over 5/1,000. Well landscaped parking is secured by gate entry system.
Property Facts
Sale Type
Investment or Owner User
Property Type
Building Size
5,562 SF
Building Class
B
Year Built/Renovated
1984/2015
Price
$2,462,112 CAD
Price Per SF
$442.67 CAD
Tenancy
Single
Building Height
2 Stories
Typical Floor Size
2,781 SF
Building FAR
0.41
Lot Size
0.31 AC
Opportunity Zone
Yes
Zoning
GC - general commercial development
Property Taxes
| Parcel Number | 469-12-00-271 | Improvements Assessment | $0 CAD |
| Land Assessment | $0 CAD | Total Assessment | $51,134 CAD |
Property Taxes
Parcel Number
469-12-00-271
Land Assessment
$0 CAD
Improvements Assessment
$0 CAD
Total Assessment
$51,134 CAD
1 of 30
Videos
Matterport 3D Exterior
Matterport 3D Tour
Photos
Street View
Street
Map
