Log In/Sign Up
Your email has been sent.
Investment Highlights
- 8,528 SF Commercial Building For Sale or Lease
- Woodward Avenue Frontage
- Zoned General Business
- Well-Maintained Facility
- Flexible Floorplan
- Close Proximity to I-696
Executive Summary
Split-level retail building with great Woodward Ave frontage, minutes north of I -696.
Property Facts
Sale Type
Investment or Owner User
Property Type
Retail
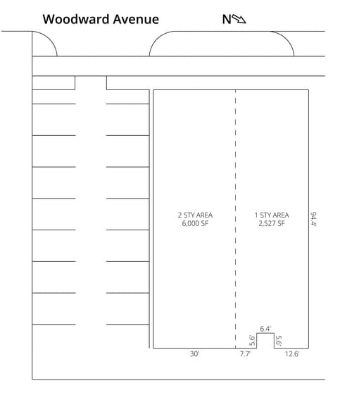
Building Size
8,528 SF
Building Class
C
Year Built
1962
Price
$2,888,938 CAD
Price Per SF
$338.76 CAD
Tenancy
Single
Building Height
2 Stories
Building FAR
0.65
Lot Size
0.30 AC
Zoning
GB - General Business
Parking
16 Spaces (1.88 Spaces per 1,000 SF Leased)
Frontage
135’ on Woodward Ave
Amenities
- Signage
Space Availability
- Space
- Size
- Space Use
- Position
- Available
Split-level retail building with great Woodward Ave frontage, minutes north of I -696.
| Space | Size | Space Use | Position | Available |
| 1st Floor | 8,528 SF | Retail | End Cap | Now |
1st Floor
| Size |
| 8,528 SF |
| Space Use |
| Retail |
| Position |
| End Cap |
| Available |
| Now |
1st Floor
| Size | 8,528 SF |
| Space Use | Retail |
| Position | End Cap |
| Available | Now |
Split-level retail building with great Woodward Ave frontage, minutes north of I -696.
Moderately walkable
60/100
Very drivable
80/100
Limited public transit
30/100
Fairly bikeable
40/100
Nearby Major Retailers
Property Taxes
| Parcel Number | 25-06-252-011 | Improvements Assessment | $0 CAD |
| Land Assessment | $0 CAD | Total Assessment | $860,387 CAD |
Property Taxes
Parcel Number
25-06-252-011
Land Assessment
$0 CAD
Improvements Assessment
$0 CAD
Total Assessment
$860,387 CAD
1 of 4
Videos
Matterport 3D Exterior
Matterport 3D Tour
Photos
Street View
Street
Map
Presented by
32128 Woodward Ave
Already a member? Log In
Hmm, there seems to have been an error sending your message. Please try again.
Thanks! Your message was sent.



