Log In/Sign Up
Your email has been sent.
3214 Douglas St
Saanich, BC V8Z 3K6
Retail Property For Lease
·
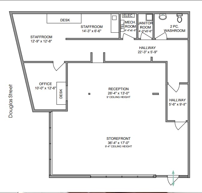
2,189 SF


Highlights
- 35,000+ average daily traffic
- Adjacent to Mayfair Shopping Centre
- Prime Douglas Street exposure
- Standalone podium signage
- Flexible C-2 General Commercial zoning
Property Facts
| Total Space Available | 2,189 SF | Year Built | 1980 |
| Property Type | Retail | Parking Ratio | 4.12/1,000 SF |
| Gross Leasable Area | 13,590 SF | Cross Streets | Dupplin |
| Total Space Available | 2,189 SF |
| Property Type | Retail |
| Gross Leasable Area | 13,590 SF |
| Year Built | 1980 |
| Parking Ratio | 4.12/1,000 SF |
| Cross Streets | Dupplin |
About the Property
The property is adjacent to Mayfair Shopping Centre, one of the region’s premier retail destinations, creating a strong draw for both local and regional shoppers. The surrounding area is a vibrant commercial hub with a mix of national retailers, restaurants, and essential services, making it an ideal location for businesses seeking high visibility and convenience.
- Bus Line
- Pylon Sign
- Signage
1 of 12
Videos
Matterport 3D Exterior
Matterport 3D Tour
Photos
Street View
Street
Map
