Your email has been sent.
SPACE AVAILABILITY (1)
Display Rental Rate as
- SPACE
- SIZE
- TERM
- RENTAL RATE
- RENT TYPE
| Space | Size | Term | Rental Rate | Rent Type | ||
| 1st Floor, Ste D | 1,490 SF | Negotiable | $30.99 CAD/SF/YR $2.58 CAD/SF/MO $46,174 CAD/YR $3,848 CAD/MO | Modified Gross |
1st Floor, Ste D
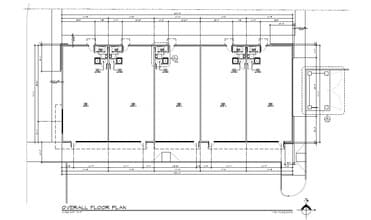
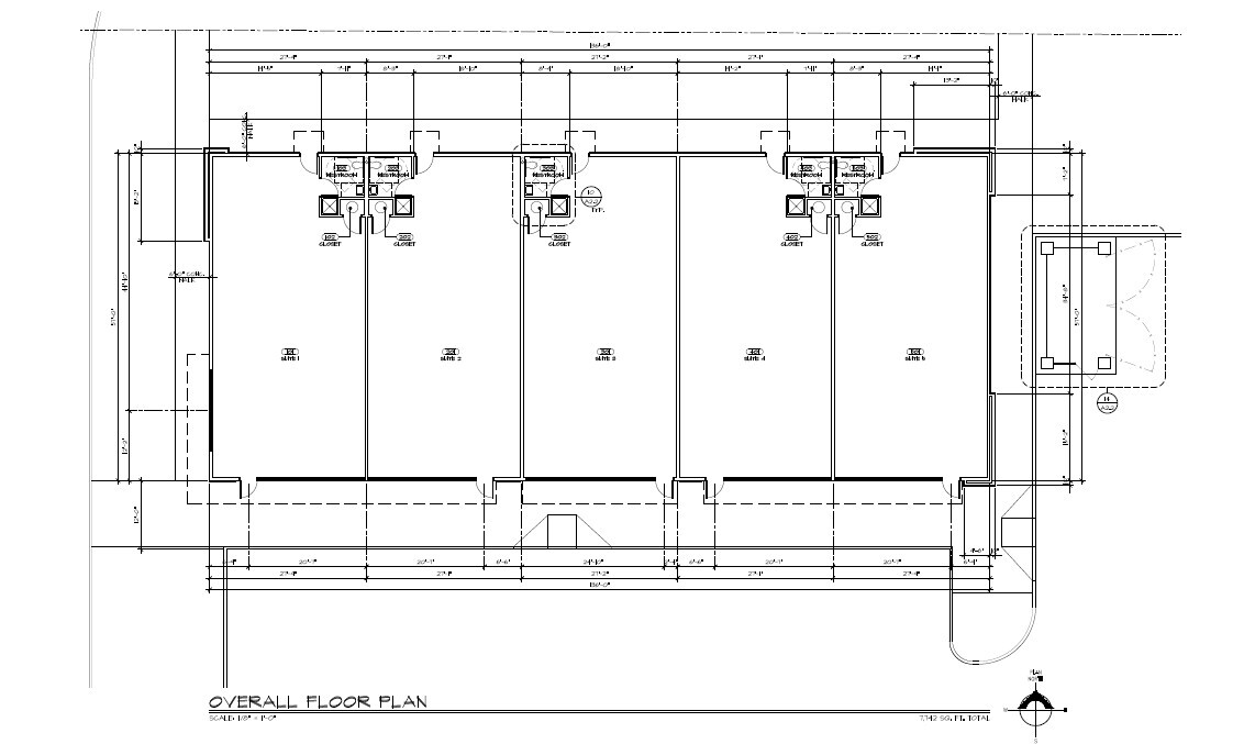
±1,539 SF inline retail suite within a well-maintained multi-tenant building Prominent signage opportunity facing Lancaster Rd Ample shared parking and convenient access from Lancaster Rd Dedicated restroom within Suite D Ideal for retail, service, or professional office use
- Listed rate may not include certain utilities, building services and property expenses
Rent Types
The rent amount and type that the tenant (lessee) will be responsible to pay to the landlord (lessor) throughout the lease term is negotiated prior to both parties signing a lease agreement. The rent type will vary depending upon the services provided. For example, triple net rents are typically lower than full service rents due to additional expenses the tenant is required to pay in addition to the base rent. Contact the listing broker for a full understanding of any associated costs or additional expenses for each rent type.
1. Full Service: A rental rate that includes normal building standard services as provided by the landlord within a base year rental.
2. Double Net (NN): Tenant pays for only two of the building expenses; the landlord and tenant determine the specific expenses prior to signing the lease agreement.
3. Triple Net (NNN): A lease in which the tenant is responsible for all expenses associated with their proportional share of occupancy of the building.
4. Modified Gross: Modified Gross is a general type of lease rate where typically the tenant will be responsible for their proportional share of one or more of the expenses. The landlord will pay the remaining expenses. See the below list of common Modified Gross rental rate structures: 4. Plus All Utilities: A type of Modified Gross Lease where the tenant is responsible for their proportional share of utilities in addition to the rent. 4. Plus Cleaning: A type of Modified Gross Lease where the tenant is responsible for their proportional share of cleaning in addition to the rent. 4. Plus Electric: A type of Modified Gross Lease where the tenant is responsible for their proportional share of the electrical cost in addition to the rent. 4. Plus Electric & Cleaning: A type of Modified Gross Lease where the tenant is responsible for their proportional share of the electrical and cleaning cost in addition to the rent. 4. Plus Utilities and Char: A type of Modified Gross Lease where the tenant is responsible for their proportional share of the utilities and cleaning cost in addition to the rent. 4. Industrial Gross: A type of Modified Gross lease where the tenant pays one or more of the expenses in addition to the rent. The landlord and tenant determine these prior to signing the lease agreement.
5. Tenant Electric: The landlord pays for all services and the tenant is responsible for their usage of lights and electrical outlets in the space they occupy.
6. Negotiable or Upon Request: Used when the leasing contact does not provide the rent or service type.
7. TBD: To be determined; used for buildings for which no rent or service type is known, commonly utilized when the buildings are not yet built.
SELECT TENANTS AT 324 W LANCASTER RD, HAYDEN, ID 83835
- TENANT
- DESCRIPTION
- US LOCATIONS
- REACH
- Belle's Brunch House
- Restaurant
- 1
- -
- The Bee's Knee's Whiskey Bar
- Drinks/Juices
- 1
- Local
| TENANT | DESCRIPTION | US LOCATIONS | REACH |
| Belle's Brunch House | Restaurant | 1 | - |
| The Bee's Knee's Whiskey Bar | Drinks/Juices | 1 | Local |
PROPERTY FACTS
| Total Space Available | 1,490 SF | Gross Leasable Area | 7,752 SF |
| Property Type | Retail | Year Built | 2019 |
| Total Space Available | 1,490 SF |
| Property Type | Retail |
| Gross Leasable Area | 7,752 SF |
| Year Built | 2019 |
ABOUT THE PROPERTY
This ±1,539 SF inline retail suite is located within the Lancaster Market Center.? Situated at the intersection of Lancaster Road and Highway 95, the property offers high visibility and steady foot traffic from the adjacent fuel station and convenience store.? The suite features a dedicated restroom, prominent signage opportunities facing Lancaster Rd, and ample shared parking.? Its proximity to the Coeur d’Alene Airport and nearby residential developments, along with easy access to US-95, makes it ideal for retail, service, or professional office use.? Building Highlights: ±1,539 SF inline retail suite within a well-maintained multi-tenant building Prominent signage opportunity facing Lancaster Rd Ample shared parking and convenient access from Lancaster Rd Dedicated restroom within Suite D Ideal for retail, service, or professional office use Located in a high-traffic area with steady customer flow from adjacent businesses Close proximity to Coeur d’Alene Airport and three new housing developments Easy access to US-95
Presented by
324 W Lancaster Rd
Hmm, there seems to have been an error sending your message. Please try again.
Thanks! Your message was sent.






